Информационная система
«Ёшкин Кот»

Скачать базу одним архивом
Скачать обновления
История создания базы
Карта сайта

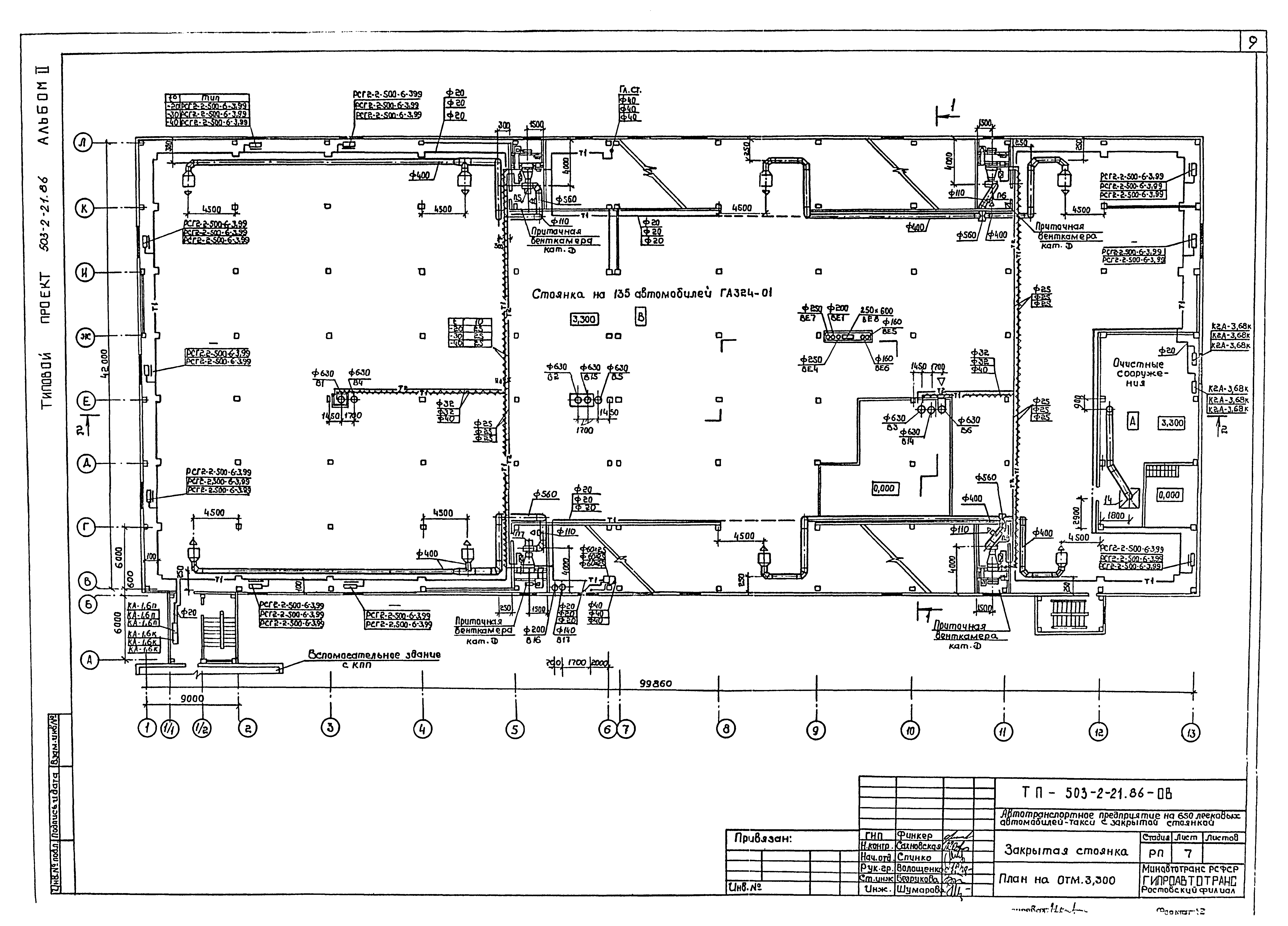
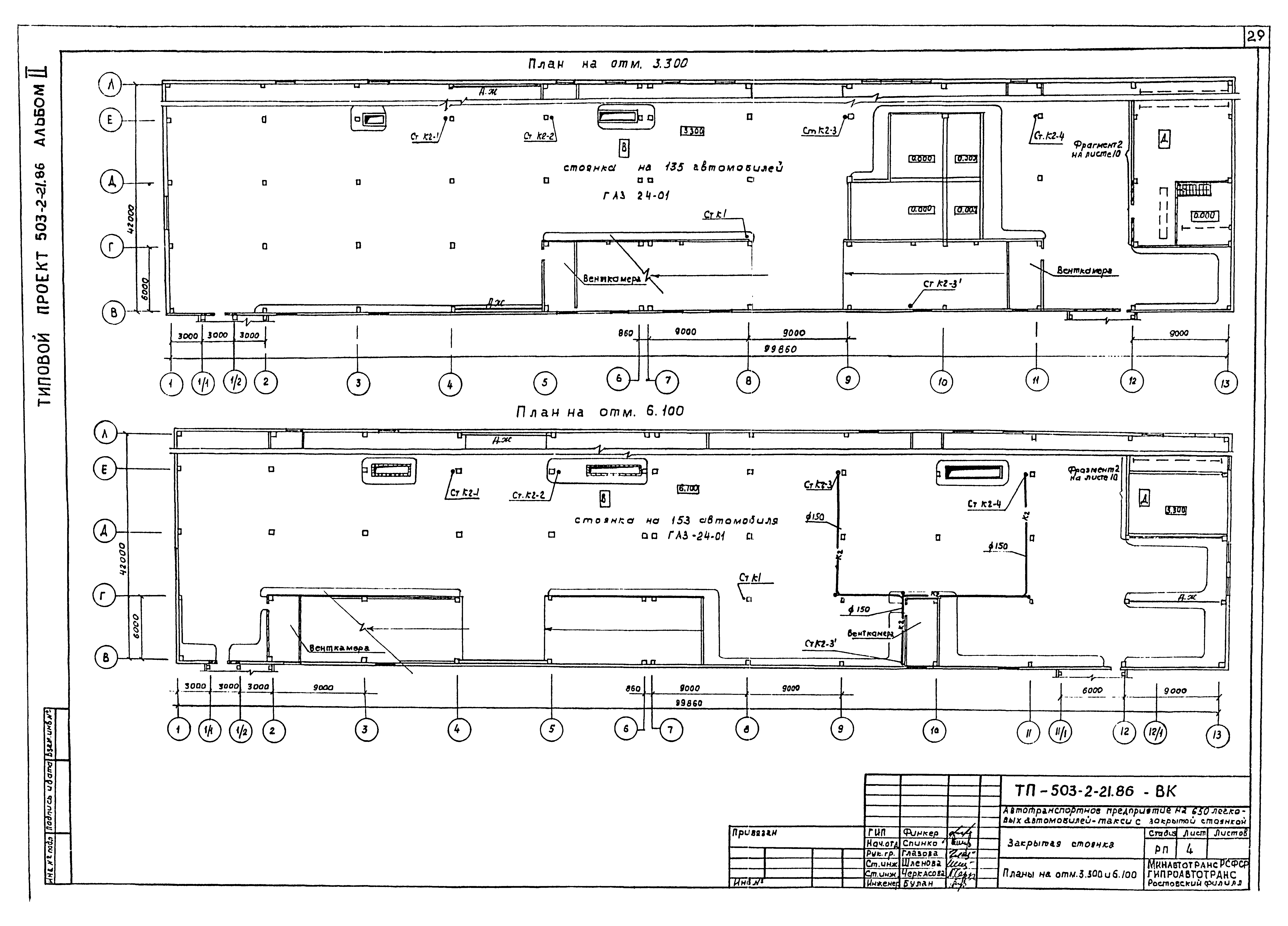
Скачать Типовой проект 503-2-21.86 Альбом II. Отопление, вентиляция. Внутренние водопровод и канализация. Автоматическое пожаротушение

Дата актуализации: 10.08.2017

Типовой проект 503-2-21.86

Альбом II. Отопление, вентиляция. Внутренние водопровод и канализация. Автоматическое пожаротушение

Обозначение: Типовой проект 503-2-21.86
Обозначение англ: 503-2-21.86
Статус:не определен законодательством
Название рус.:Альбом II. Отопление, вентиляция. Внутренние водопровод и канализация. Автоматическое пожаротушение
Дата добавления в базу:01.02.2017
Дата актуализации:05.05.2017
Дата введения:01.03.1987
Разработан: Ростовский филиал Гипроавтотранса Минавтотранса РСФСР
Утверждён:30.09.1986 Минавтотранс РСФСР (Russian Federation Minavtotrans 22)
Издан: ЦИТП Госстроя СССР (CITP, Gosstroy (USSR) 1988 г. )
Расположен в:Техническая документация Строительство Справочные документы Типовые строительные конструкции, изделия и узлы Общероссийский строительный каталог Промышленные предприятия, здания и сооружения Предприятия, здания и сооружения транспорта Транспорт автомобильный Предприятия автотранспортные, гаражи и стоянки для легковых автомобилей, автобусов и мотоциклов
Заменяет собой:
  • Типовой проект 503-212
Типовой проект 503-2-21.86Типовой проект 503-2-21.86Типовой проект 503-2-21.86Типовой проект 503-2-21.86Типовой проект 503-2-21.86Типовой проект 503-2-21.86Типовой проект 503-2-21.86Типовой проект 503-2-21.86Типовой проект 503-2-21.86Типовой проект 503-2-21.86Типовой проект 503-2-21.86Типовой проект 503-2-21.86Типовой проект 503-2-21.86Типовой проект 503-2-21.86Типовой проект 503-2-21.86Типовой проект 503-2-21.86Типовой проект 503-2-21.86Типовой проект 503-2-21.86Типовой проект 503-2-21.86Типовой проект 503-2-21.86Типовой проект 503-2-21.86Типовой проект 503-2-21.86Типовой проект 503-2-21.86Типовой проект 503-2-21.86Типовой проект 503-2-21.86Типовой проект 503-2-21.86Типовой проект 503-2-21.86Типовой проект 503-2-21.86Типовой проект 503-2-21.86Типовой проект 503-2-21.86Типовой проект 503-2-21.86Типовой проект 503-2-21.86Типовой проект 503-2-21.86Типовой проект 503-2-21.86Типовой проект 503-2-21.86Типовой проект 503-2-21.86Типовой проект 503-2-21.86Типовой проект 503-2-21.86Типовой проект 503-2-21.86Типовой проект 503-2-21.86Типовой проект 503-2-21.86Типовой проект 503-2-21.86Типовой проект 503-2-21.86Типовой проект 503-2-21.86Типовой проект 503-2-21.86Типовой проект 503-2-21.86Типовой проект 503-2-21.86Типовой проект 503-2-21.86Типовой проект 503-2-21.86Типовой проект 503-2-21.86Типовой проект 503-2-21.86Типовой проект 503-2-21.86Типовой проект 503-2-21.86Типовой проект 503-2-21.86Типовой проект 503-2-21.86Типовой проект 503-2-21.86Типовой проект 503-2-21.86Типовой проект 503-2-21.86Типовой проект 503-2-21.86Типовой проект 503-2-21.86Типовой проект 503-2-21.86Типовой проект 503-2-21.86

© 2013 Ёшкин Кот :-) Карта сайта