Информационная система
«Ёшкин Кот»

Скачать базу одним архивом
Скачать обновления
История создания базы
Карта сайта

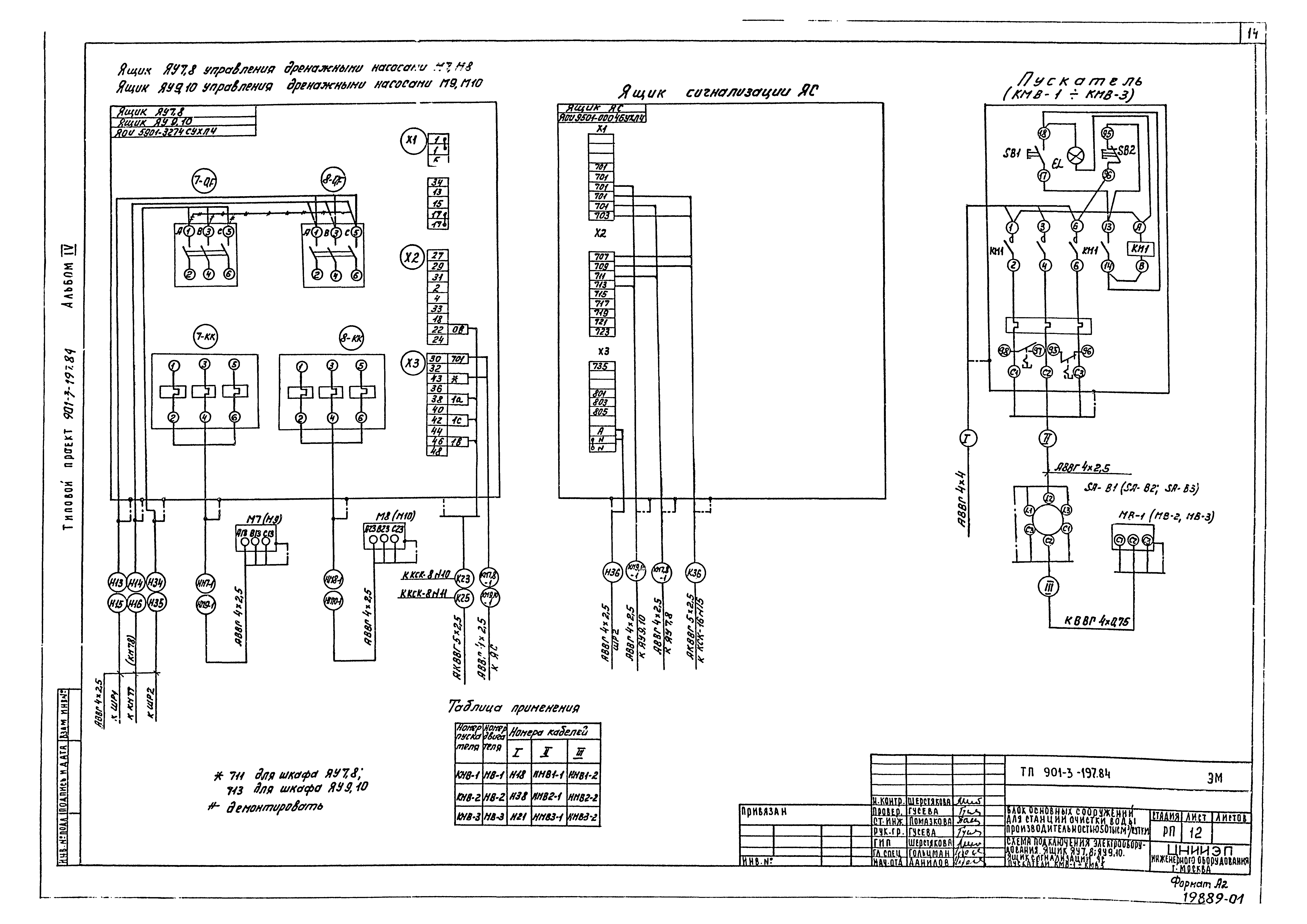
Скачать Типовой проект 901-3-197.84 Альбом IV. Электротехническая часть. Связь и сигнализация. Автоматизация

Дата актуализации: 10.08.2017

Типовой проект 901-3-197.84

Альбом IV. Электротехническая часть. Связь и сигнализация. Автоматизация

Обозначение: Типовой проект 901-3-197.84
Обозначение англ: 901-3-197.84
Статус:не определен законодательством
Название рус.:Альбом IV. Электротехническая часть. Связь и сигнализация. Автоматизация
Дата добавления в базу:01.02.2017
Дата актуализации:05.05.2017
Дата введения:21.05.1984
Разработан: ЦНИИЭП инженерного оборудования
Утверждён:31.01.1984 Госгражданстрой (Gosgrazhdanstroy 31)
Издан: ЦИТП Госстроя СССР (CITP, Gosstroy (USSR) 1985 г. )
Расположен в:Техническая документация Строительство Справочные документы Типовые строительные конструкции, изделия и узлы Общероссийский строительный каталог Промышленные предприятия, здания и сооружения Здания и сооружения санитарно-технические Водоснабжение Очистные сооружения Станции очистки воды
Типовой проект 901-3-197.84Типовой проект 901-3-197.84Типовой проект 901-3-197.84Типовой проект 901-3-197.84Типовой проект 901-3-197.84Типовой проект 901-3-197.84Типовой проект 901-3-197.84Типовой проект 901-3-197.84Типовой проект 901-3-197.84Типовой проект 901-3-197.84Типовой проект 901-3-197.84Типовой проект 901-3-197.84Типовой проект 901-3-197.84Типовой проект 901-3-197.84Типовой проект 901-3-197.84Типовой проект 901-3-197.84Типовой проект 901-3-197.84Типовой проект 901-3-197.84Типовой проект 901-3-197.84Типовой проект 901-3-197.84Типовой проект 901-3-197.84Типовой проект 901-3-197.84Типовой проект 901-3-197.84Типовой проект 901-3-197.84Типовой проект 901-3-197.84Типовой проект 901-3-197.84Типовой проект 901-3-197.84Типовой проект 901-3-197.84Типовой проект 901-3-197.84Типовой проект 901-3-197.84Типовой проект 901-3-197.84Типовой проект 901-3-197.84Типовой проект 901-3-197.84Типовой проект 901-3-197.84Типовой проект 901-3-197.84Типовой проект 901-3-197.84Типовой проект 901-3-197.84Типовой проект 901-3-197.84Типовой проект 901-3-197.84Типовой проект 901-3-197.84

© 2013 Ёшкин Кот :-) Карта сайта