| ||||||||||||||||||||||||||
Скачать Типовые проектные решения 903-1-0257.1.87 Альбом 1. Решения тепломеханические. Автоматизация. Спецификации оборудования. Ведомости потребности в материалахДата актуализации: 10.08.2017
|
| Обозначение: | Типовые проектные решения 903-1-0257.1.87 |
| Обозначение англ: | 903-1-0257.1.87 |
| Статус: | cправочные материалы, мп, тпр |
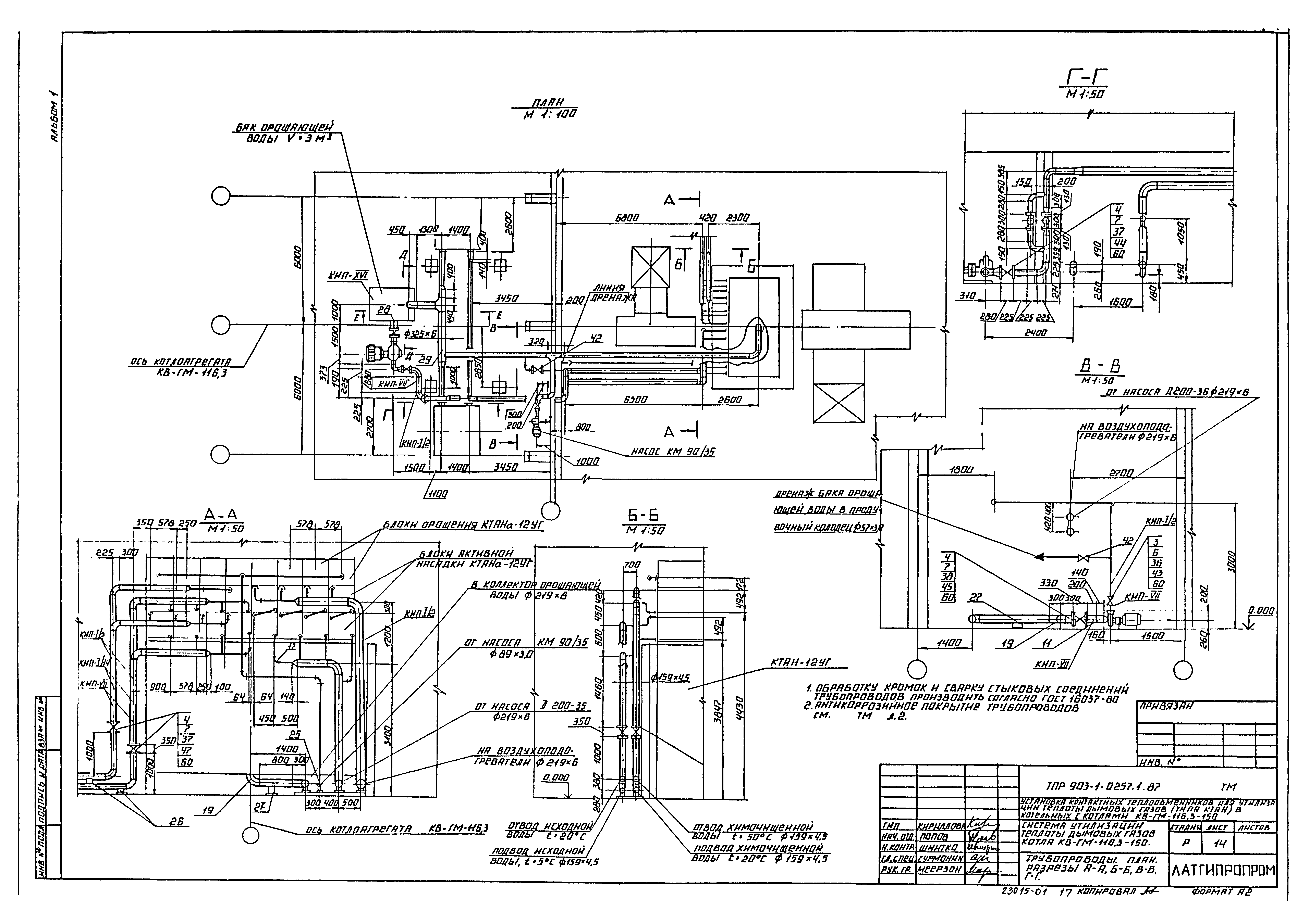
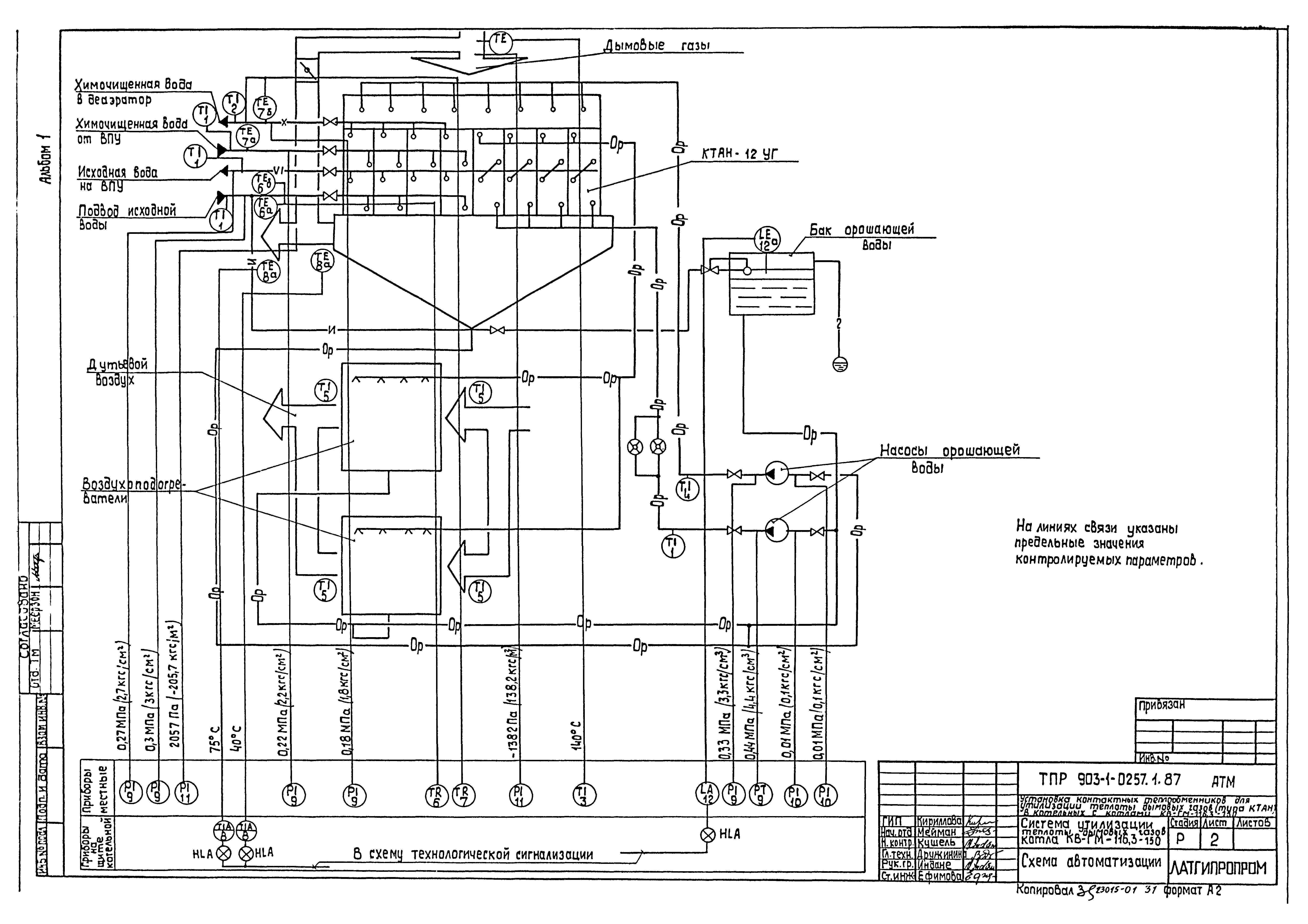
| Название рус.: | Альбом 1. Решения тепломеханические. Автоматизация. Спецификации оборудования. Ведомости потребности в материалах |
| Дата добавления в базу: | 01.02.2017 |
| Дата актуализации: | 05.05.2017 |
| Дата введения: | 22.01.1988 |
| Разработан: | Латгипропром |
| Утверждён: | 22.01.1988 Госстрой Латвийской ССР (11) |
| Издан: | ЦИТП Госстроя СССР (CITP, Gosstroy (USSR) 1989 г. ) |
| Расположен в: |



































