Информационная система
«Ёшкин Кот»

Скачать базу одним архивом
Скачать обновления
История создания базы
Карта сайта

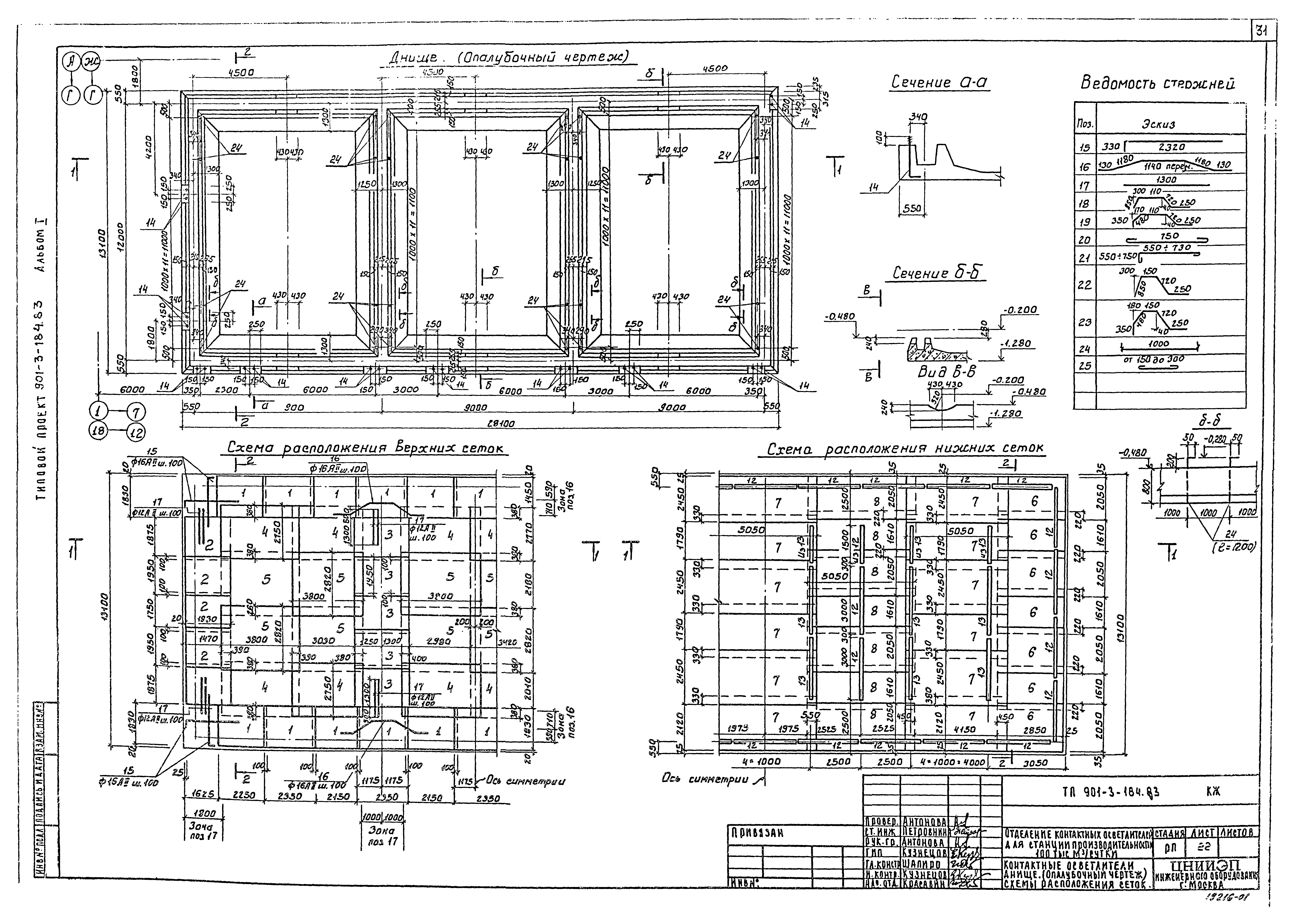
Скачать Типовой проект 901-3-184.83 Альбом I. Архитектурно-строительная часть отделения контактных осветлителей

Дата актуализации: 10.08.2017

Типовой проект 901-3-184.83

Альбом I. Архитектурно-строительная часть отделения контактных осветлителей

Обозначение: Типовой проект 901-3-184.83
Обозначение англ: 901-3-184.83
Статус:не определен законодательством
Название рус.:Альбом I. Архитектурно-строительная часть отделения контактных осветлителей
Дата добавления в базу:01.02.2017
Дата актуализации:05.05.2017
Дата введения:23.09.1983
Разработан: ЦНИИЭП инженерного оборудования
Утверждён:31.10.1980 Госгражданстрой (Gosgrazhdanstroy 297)
Издан: ЦИТП Госстроя СССР (CITP, Gosstroy (USSR) 1984 г. )
Расположен в:Техническая документация Строительство Справочные документы Типовые строительные конструкции, изделия и узлы Общероссийский строительный каталог Промышленные предприятия, здания и сооружения Здания и сооружения санитарно-технические Водоснабжение Очистные сооружения Станции очистки воды
Типовой проект 901-3-184.83Типовой проект 901-3-184.83Типовой проект 901-3-184.83Типовой проект 901-3-184.83Типовой проект 901-3-184.83Типовой проект 901-3-184.83Типовой проект 901-3-184.83Типовой проект 901-3-184.83Типовой проект 901-3-184.83Типовой проект 901-3-184.83Типовой проект 901-3-184.83Типовой проект 901-3-184.83Типовой проект 901-3-184.83Типовой проект 901-3-184.83Типовой проект 901-3-184.83Типовой проект 901-3-184.83Типовой проект 901-3-184.83Типовой проект 901-3-184.83Типовой проект 901-3-184.83Типовой проект 901-3-184.83Типовой проект 901-3-184.83Типовой проект 901-3-184.83Типовой проект 901-3-184.83Типовой проект 901-3-184.83Типовой проект 901-3-184.83Типовой проект 901-3-184.83Типовой проект 901-3-184.83Типовой проект 901-3-184.83Типовой проект 901-3-184.83Типовой проект 901-3-184.83Типовой проект 901-3-184.83Типовой проект 901-3-184.83Типовой проект 901-3-184.83Типовой проект 901-3-184.83Типовой проект 901-3-184.83Типовой проект 901-3-184.83Типовой проект 901-3-184.83Типовой проект 901-3-184.83Типовой проект 901-3-184.83Типовой проект 901-3-184.83Типовой проект 901-3-184.83Типовой проект 901-3-184.83Типовой проект 901-3-184.83Типовой проект 901-3-184.83Типовой проект 901-3-184.83Типовой проект 901-3-184.83Типовой проект 901-3-184.83Типовой проект 901-3-184.83Типовой проект 901-3-184.83Типовой проект 901-3-184.83Типовой проект 901-3-184.83Типовой проект 901-3-184.83Типовой проект 901-3-184.83Типовой проект 901-3-184.83Типовой проект 901-3-184.83Типовой проект 901-3-184.83Типовой проект 901-3-184.83

© 2013 Ёшкин Кот :-) Карта сайта