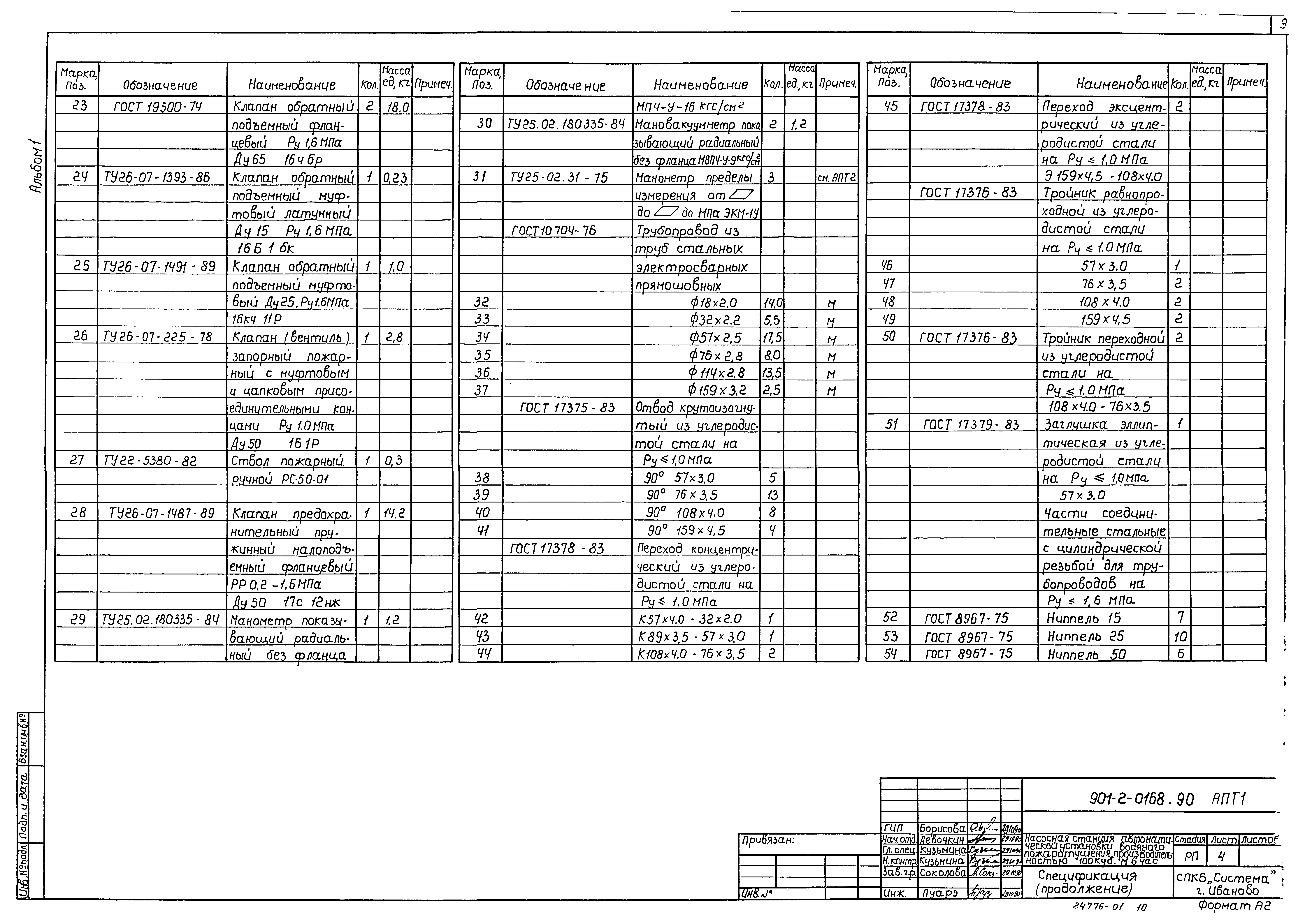
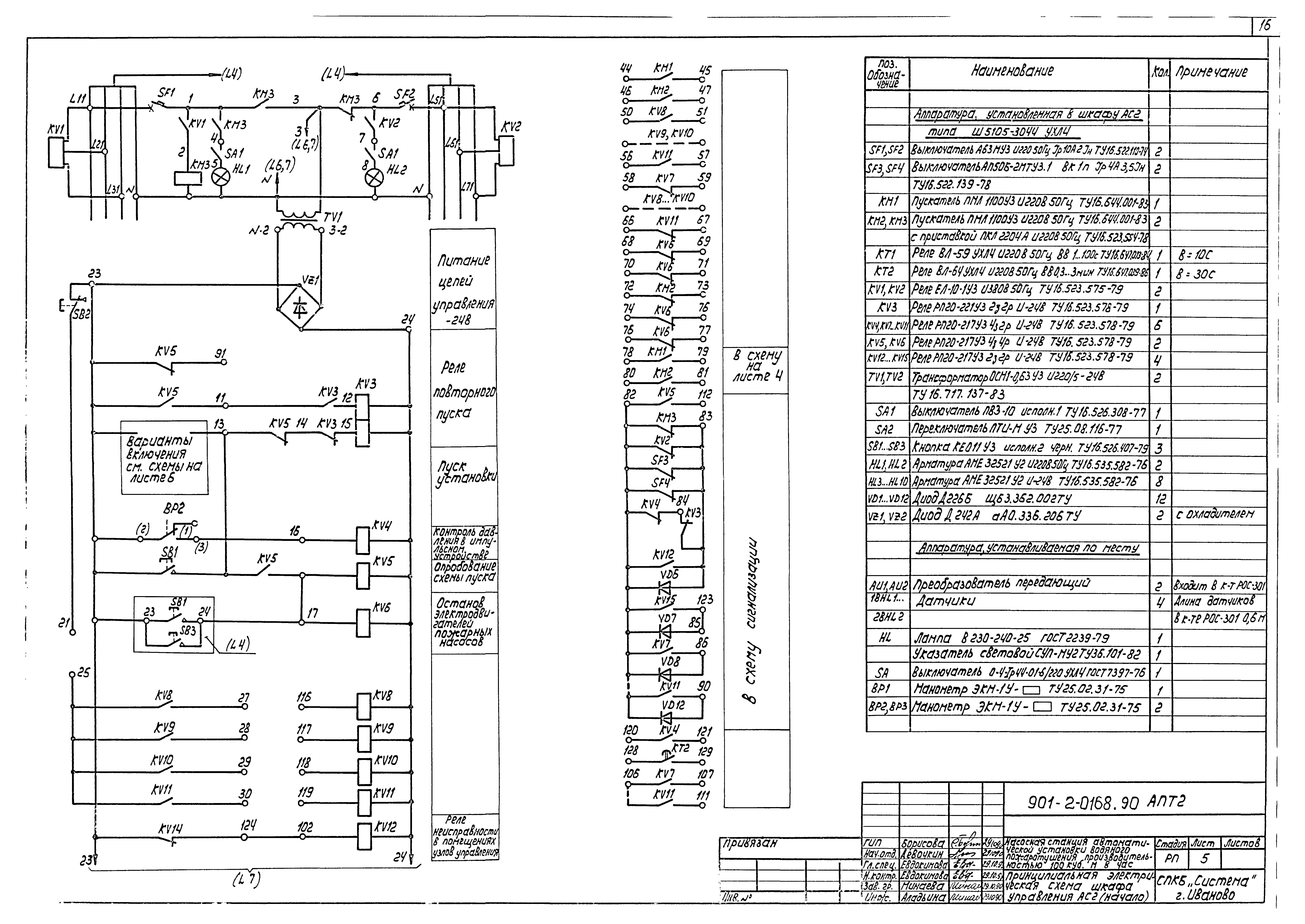
Скачать Типовые проектные решения 901-2-0168.90 Альбом I. Общая пояснительная записка. Технологические решения. Электроуправление, электроосвещениеДата актуализации: 10.08.2017 Типовые проектные решения 901-2-0168.90
Альбом I. Общая пояснительная записка. Технологические решения. Электроуправление, электроосвещение| Обозначение: | Типовые проектные решения 901-2-0168.90 | | Обозначение англ: | 901-2-0168.90 | | Статус: | не определен законодательством | | Название рус.: | Альбом I. Общая пояснительная записка. Технологические решения. Электроуправление, электроосвещение | | Дата добавления в базу: | 01.02.2017 | | Дата актуализации: | 05.05.2017 | | Дата введения: | 29.10.1990 | | Разработан: | СПКБ Система
| | Утверждён: | 29.10.1990 СПКБ Система г. Иваново (22)
| | Издан: | ЦИТП Госстроя СССР (CITP, Gosstroy (USSR) 1991 г. )
| | Расположен в: |
| | Заменяет собой: | - Типовой проект 901-2-139.85
|
                       
|