| ||||||||||||||||||||||||
Скачать Типовые проектные решения 705-5-057с.89 Альбом 1. Пояснительная записка. Конструкции металлическиеДата актуализации: 10.08.2017
|
| Обозначение: | Типовые проектные решения 705-5-057с.89 |
| Обозначение англ: | 705-5-057с.89 |
| Статус: | cправочные материалы, мп, тпр |
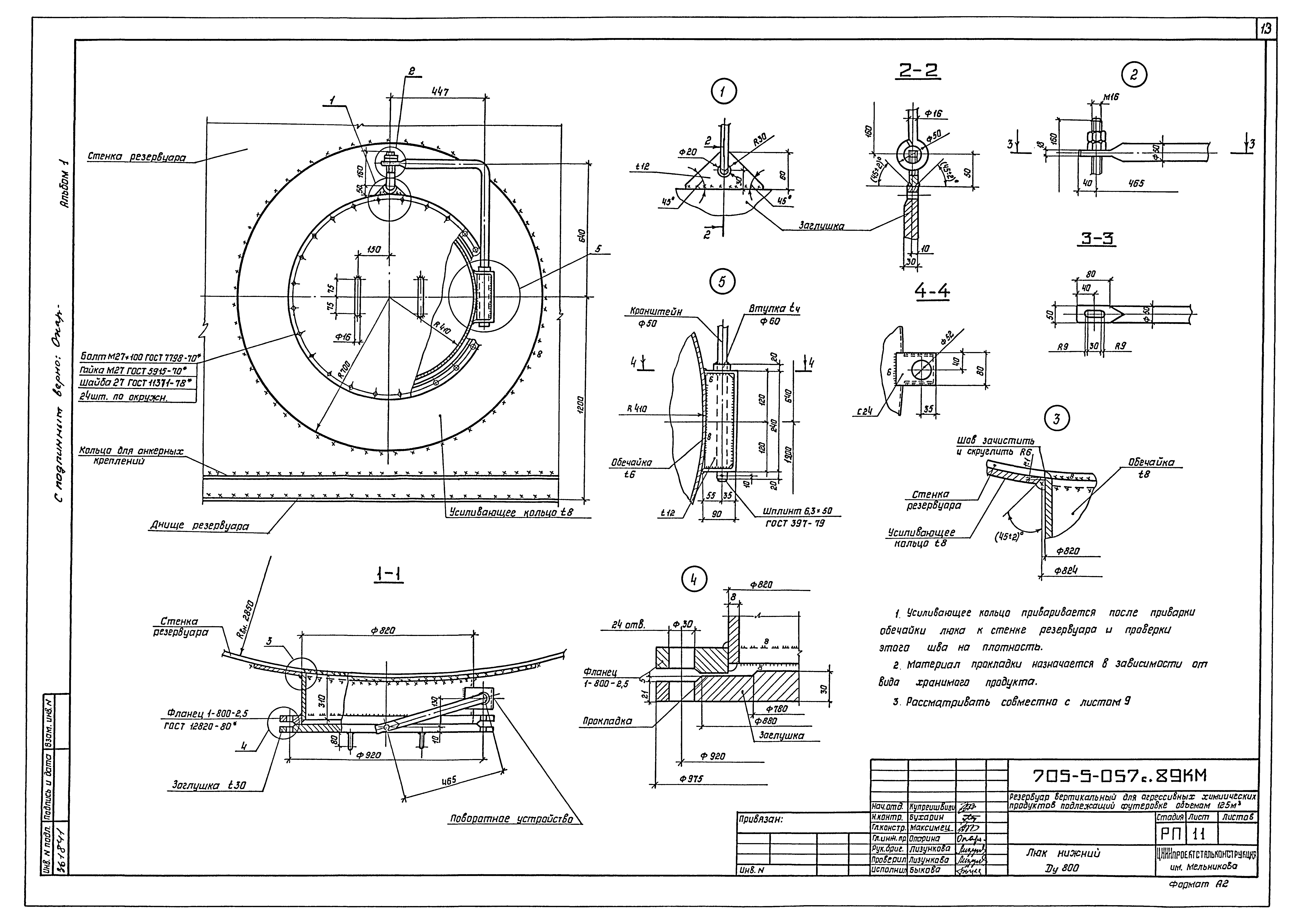
| Название рус.: | Альбом 1. Пояснительная записка. Конструкции металлические |
| Дата добавления в базу: | 01.02.2017 |
| Дата актуализации: | 05.05.2017 |
| Разработан: | ЦНИИпроектстальконструкция Гипрококс |
| Утверждён: | 31.07.1989 Министерство металлургии СССР (USSR Ministry of Metallurgy 62) |
| Расположен в: | |
| Заменяет собой: |
|
















