Информационная система
«Ёшкин Кот»

Скачать базу одним архивом
Скачать обновления
История создания базы
Карта сайта

Скачать ГОСТ EN 12600-2015 Стекло и изделия из него. Метод испытания на стойкость к удару двойной шиной

Дата актуализации: 10.08.2017

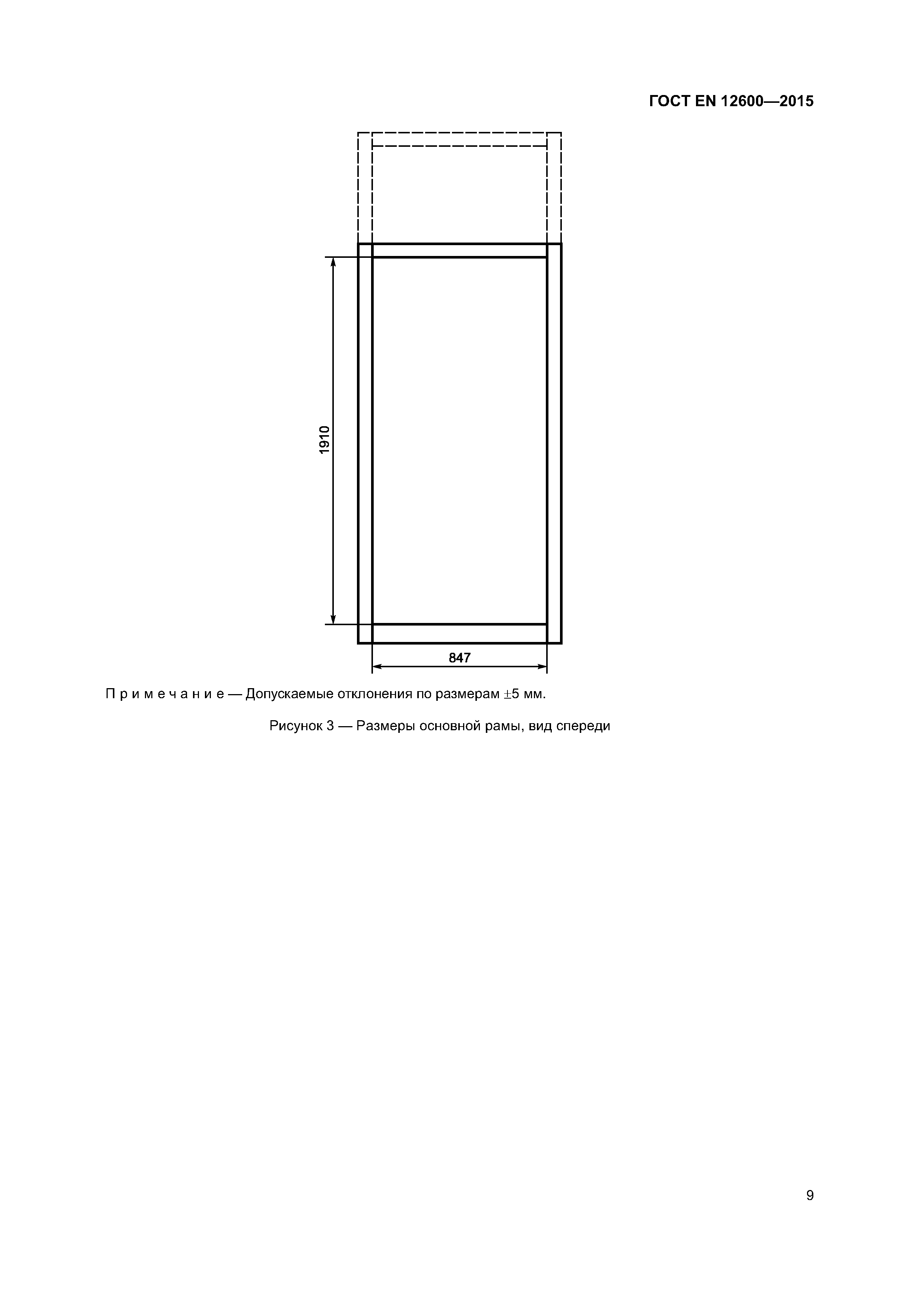
ГОСТ EN 12600-2015

Стекло и изделия из него. Метод испытания на стойкость к удару двойной шиной

Обозначение: ГОСТ EN 12600-2015
Обозначение англ: 12600-2015
Статус:введен впервые
Название рус.:Стекло и изделия из него. Метод испытания на стойкость к удару двойной шиной
Название англ.:Glass and glass products. Test method for resistance to impact dual-tyres
Дата добавления в базу:01.02.2017
Дата актуализации:05.05.2017
Дата введения:01.04.2017
Область применения:Стандарт устанавливает метод испытания ударным телом для отдельных плоских стекол, применяемых в строительстве. Метод предназначен для классификации изделий из стекла по трем основным классам с учетом характеристик воздействия и образовавшихся осколков. Стандарт не устанавливает требования к применению и долговечности.
Оглавление:1 Область применения
2 Нормативные ссылки
3 Термины и определения
4 Требования к испытанию
5 Метод испытания
   5.1 Испытательное оборудование
   5.2 Образцы для испытаний
   5.3 Проведение испытаний
6 Классификация
   6.1 Общие положения
   6.2 Классификация
   6.3 Характер разрушения
7 Протокол испытаний
Приложение А (обязательное) Испытание на проникание шара
Приложение В (обязательное) Калибровка испытательного стенда
Приложение С (обязательное) Термины и определения видов стекла
Приложение D (обязательное) Пример испытательного оборудования
Приложение ДА (справочное) Сведения о соответствии ссылочных международных и европейских региональных стандартов межгосударственным стандартам
Разработан: ОАО Институт стекла
ТК 41 Стекло
Утверждён:27.10.2015 Межгосударственный Совет по стандартизации, метрологии и сертификации (Inter-Governmental Council on Standardization, Metrology, and Certification 81-П)
03.03.2016 Федеральное агентство по техническому регулированию и метрологии (107-ст)
Издан: Стандартинформ (2016 г. )
Расположен в:Техническая документация Электроэнергия СТРОИТЕЛЬНЫЕ МАТЕРИАЛЫ И СТРОИТЕЛЬСТВО Строительные материалы Строительные материалы прочие СТЕКОЛЬНАЯ И КЕРАМИЧЕСКАЯ ПРОМЫШЛЕННОСТЬ Стекло Изделия из стекла Стекло для строительства зданий Экология СТРОИТЕЛЬНЫЕ МАТЕРИАЛЫ И СТРОИТЕЛЬСТВО Строительные материалы Строительные материалы прочие СТЕКОЛЬНАЯ И КЕРАМИЧЕСКАЯ ПРОМЫШЛЕННОСТЬ Стекло Изделия из стекла Стекло для строительства зданий Строительство Стандарты Другие государственные стандарты, применяемые в строительстве Стекольная и керамическая промышленность
Нормативные ссылки:
ГОСТ EN 12600-2015ГОСТ EN 12600-2015ГОСТ EN 12600-2015ГОСТ EN 12600-2015ГОСТ EN 12600-2015ГОСТ EN 12600-2015ГОСТ EN 12600-2015ГОСТ EN 12600-2015ГОСТ EN 12600-2015ГОСТ EN 12600-2015ГОСТ EN 12600-2015ГОСТ EN 12600-2015ГОСТ EN 12600-2015ГОСТ EN 12600-2015ГОСТ EN 12600-2015ГОСТ EN 12600-2015ГОСТ EN 12600-2015ГОСТ EN 12600-2015ГОСТ EN 12600-2015ГОСТ EN 12600-2015ГОСТ EN 12600-2015ГОСТ EN 12600-2015ГОСТ EN 12600-2015ГОСТ EN 12600-2015ГОСТ EN 12600-2015ГОСТ EN 12600-2015ГОСТ EN 12600-2015ГОСТ EN 12600-2015ГОСТ EN 12600-2015ГОСТ EN 12600-2015ГОСТ EN 12600-2015ГОСТ EN 12600-2015ГОСТ EN 12600-2015ГОСТ EN 12600-2015ГОСТ EN 12600-2015ГОСТ EN 12600-2015

© 2013 Ёшкин Кот :-) Карта сайта