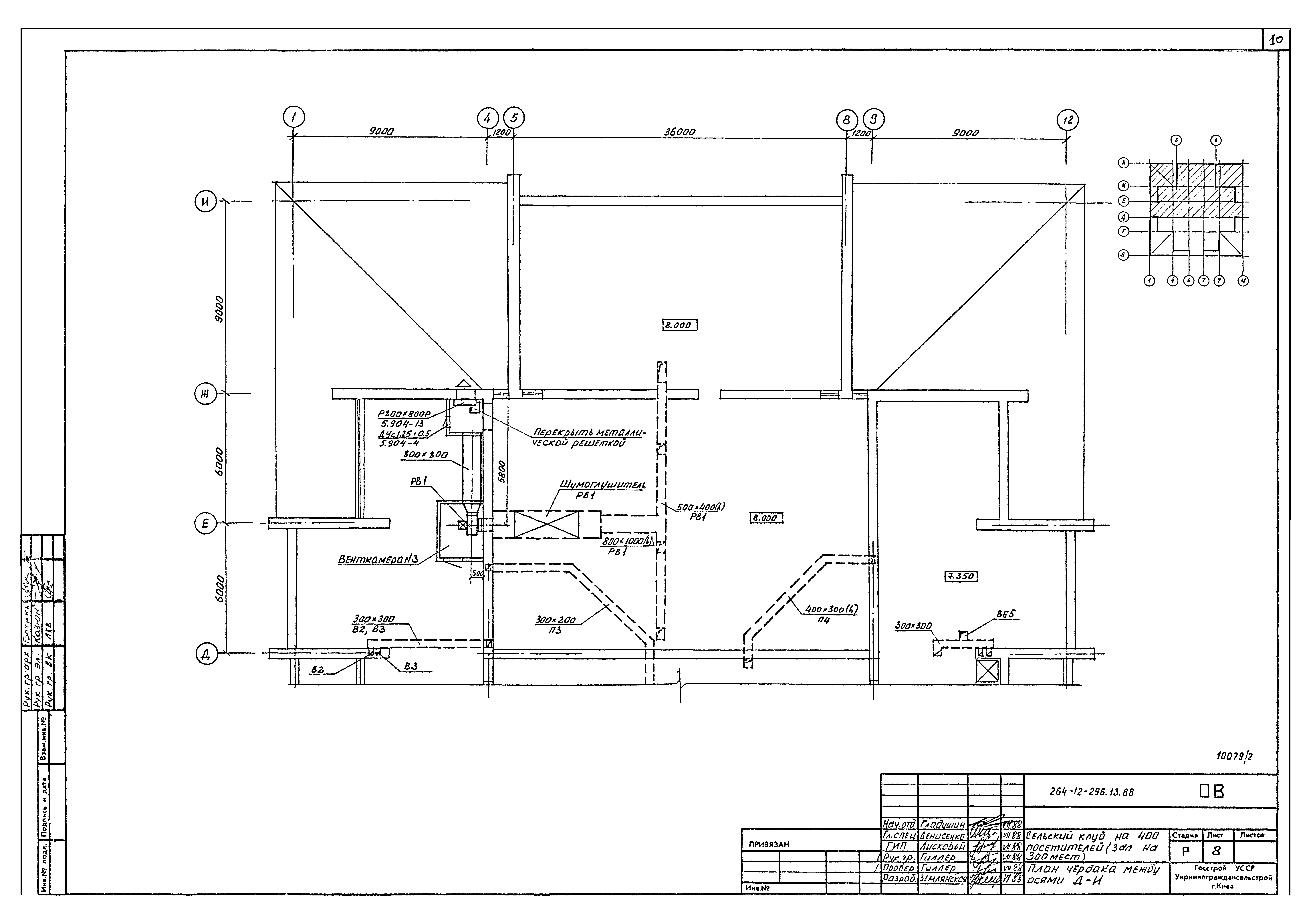
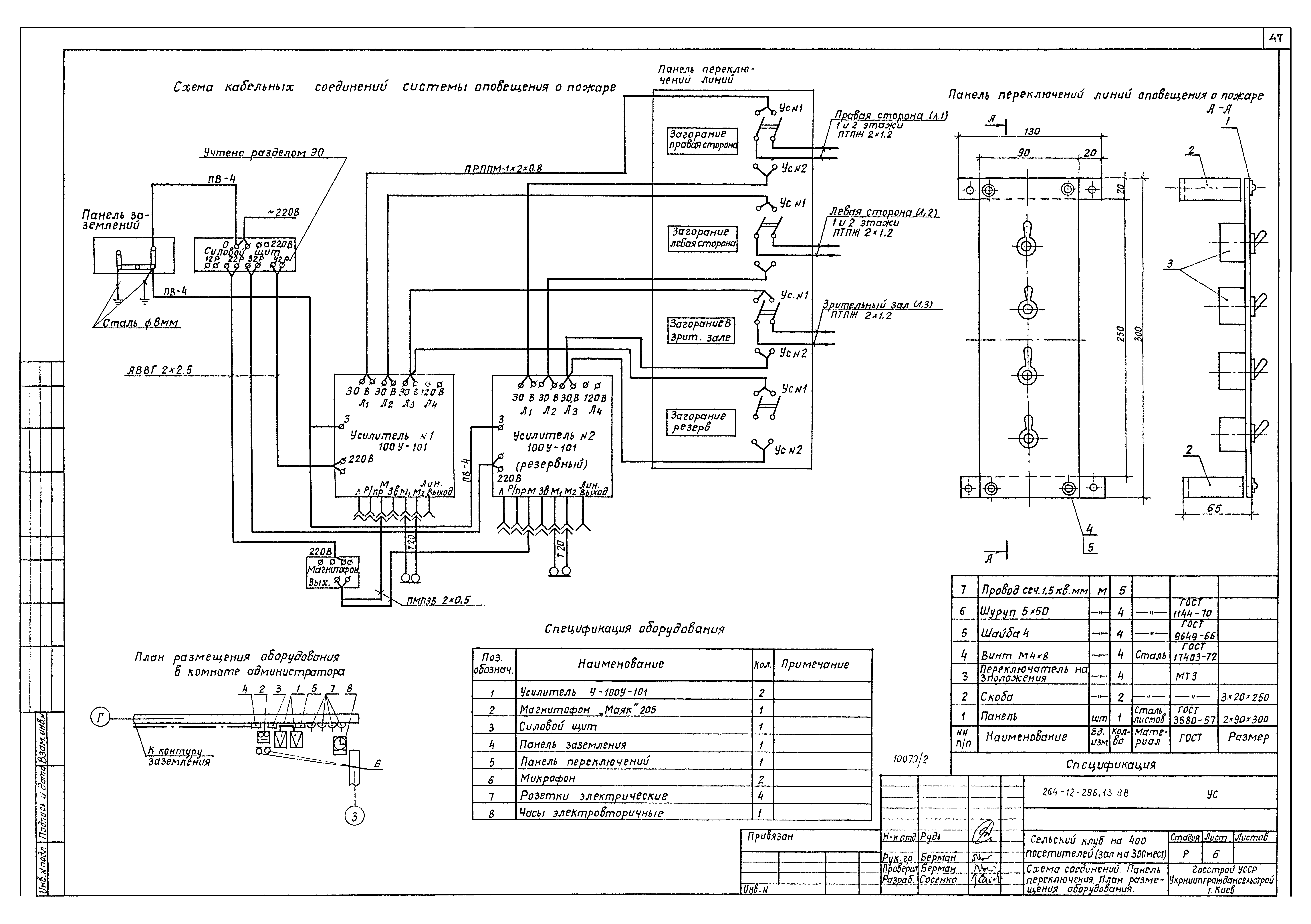
Скачать Типовой проект 264-12-296.13.88 Альбом II. Санитарно-технические и электро-технические чертежиДата актуализации: 10.08.2017 Типовой проект 264-12-296.13.88
Альбом II. Санитарно-технические и электро-технические чертежиОбозначение: | Типовой проект 264-12-296.13.88 | Обозначение англ: | 264-12-296.13.88 | Статус: | действует | Название рус.: | Альбом II. Санитарно-технические и электро-технические чертежи | Дата добавления в базу: | 01.02.2017 | Дата актуализации: | 05.05.2017 | Разработан: | УкрНИИПграждансельстроя
| Утверждён: | 29.12.1987 Госстрой УССР (UkrSSR Gosstroy 152)
| Издан: | ЦИТП Госстроя СССР (CITP, Gosstroy (USSR) 1988 г. )
| Расположен в: |
|
                                                             
|