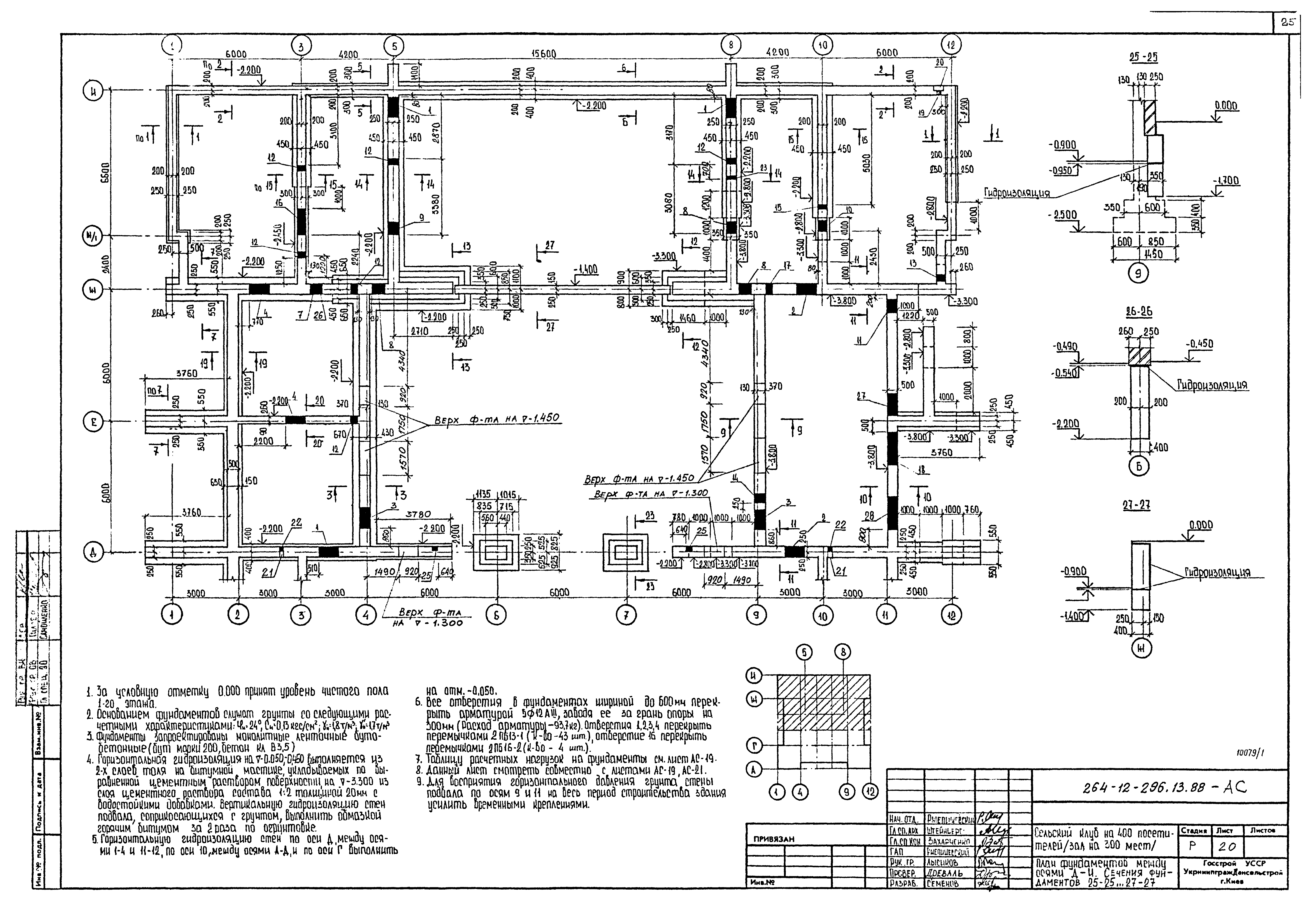
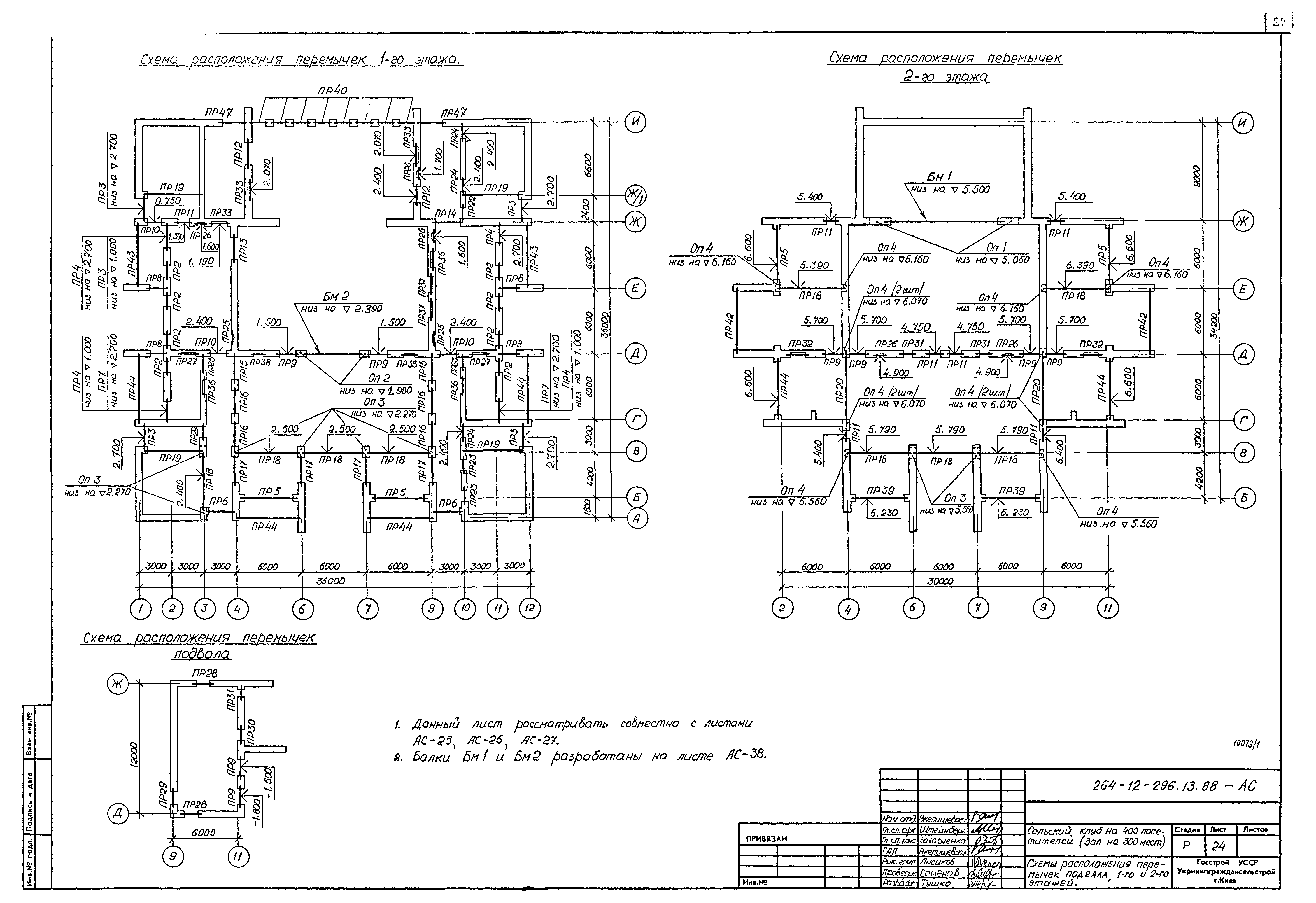
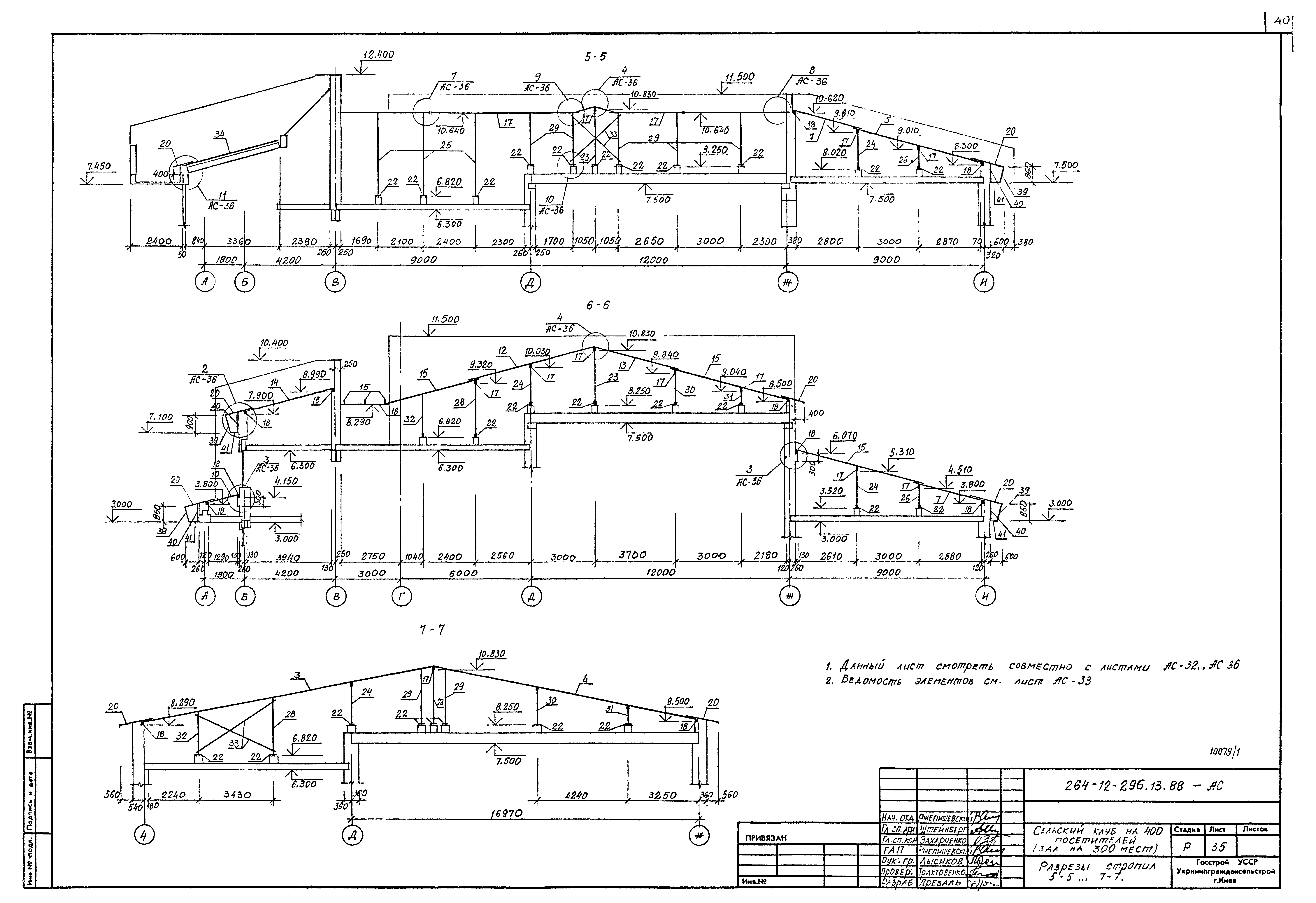
Скачать Типовой проект 264-12-296.13.88 Альбом I. Архитектурно-строительные и технологические чертежиДата актуализации: 10.08.2017 Типовой проект 264-12-296.13.88
Альбом I. Архитектурно-строительные и технологические чертежиОбозначение: | Типовой проект 264-12-296.13.88 | Обозначение англ: | 264-12-296.13.88 | Статус: | действует | Название рус.: | Альбом I. Архитектурно-строительные и технологические чертежи | Дата добавления в базу: | 01.02.2017 | Дата актуализации: | 05.05.2017 | Разработан: | УкрНИИПграждансельстроя
| Утверждён: | 29.12.1987 Госстрой УССР (UkrSSR Gosstroy 152)
| Издан: | ЦИТП Госстроя СССР (CITP, Gosstroy (USSR) 1988 г. )
| Расположен в: |
|
                                                                                
|