Информационная система
«Ёшкин Кот»

Скачать базу одним архивом
Скачать обновления
История создания базы
Карта сайта

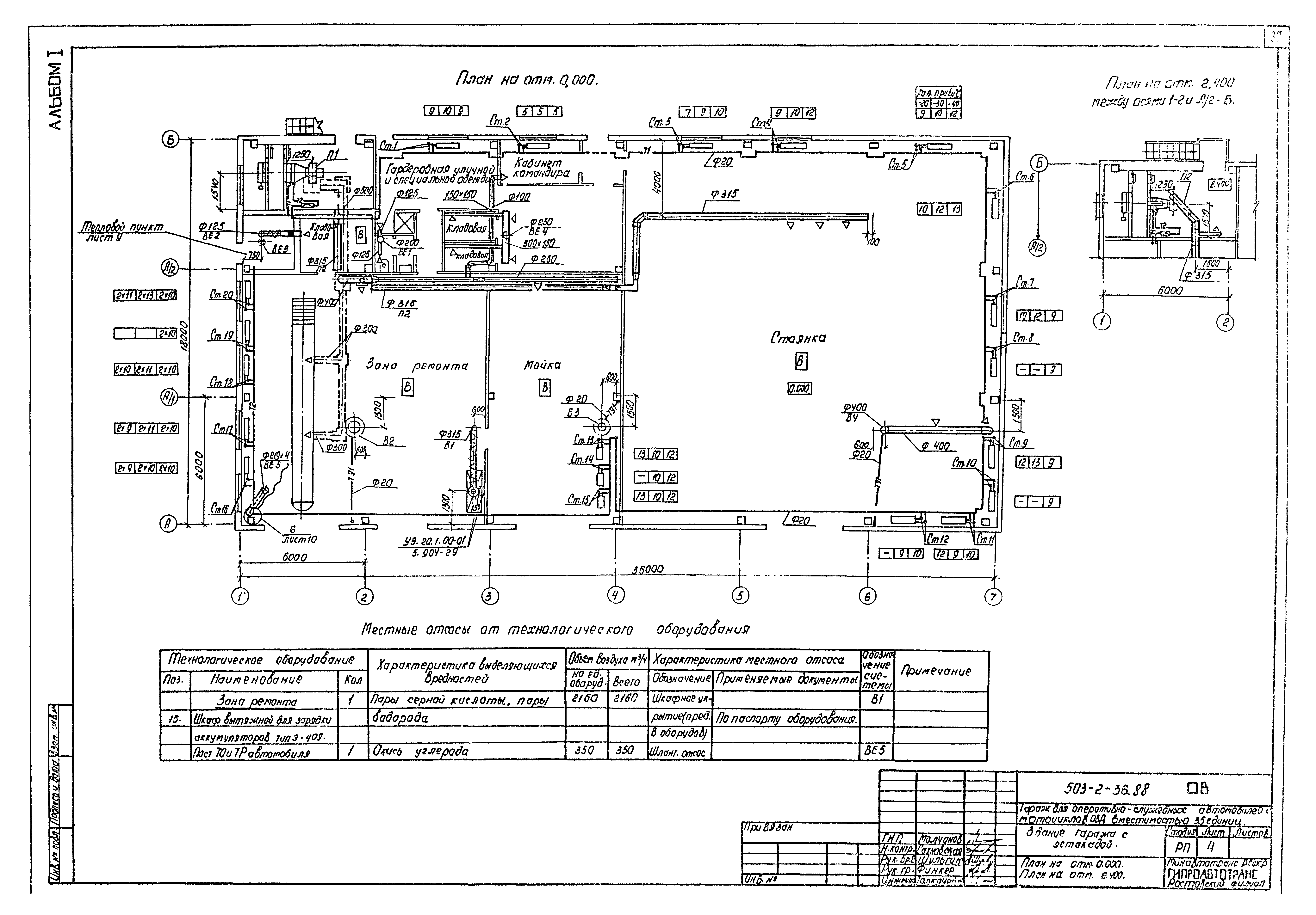
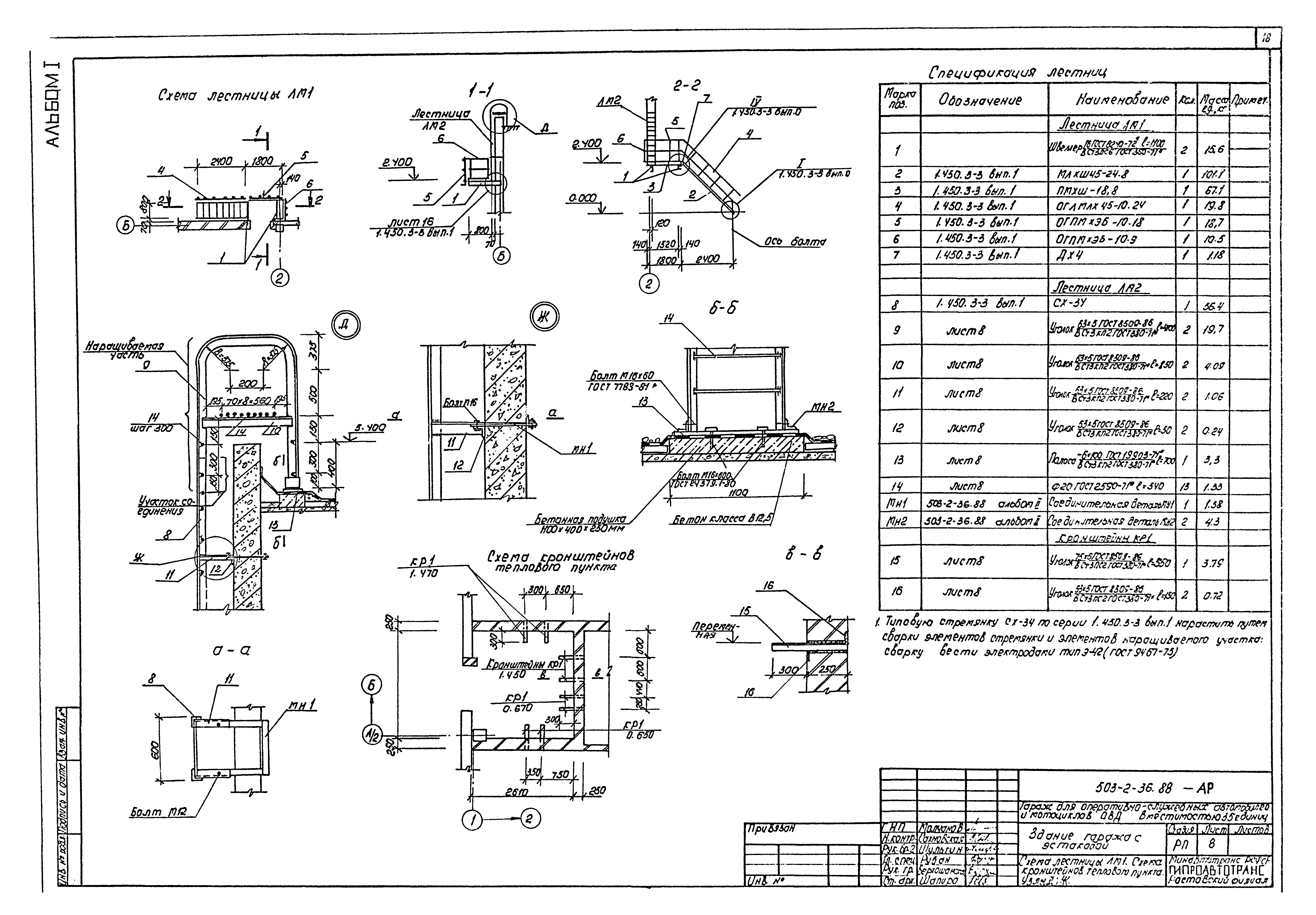
Скачать Типовой проект 503-2-36.88 Альбом I. Пояснительная записка. Технология производства. Архитектурные решения. Конструкции железобетонные. Отопление, вентиляция. Внутренние водопровод и канализация. Силовое электрооборудование. Электрическое освещение. Автоматизация санитарно-технических систем. Связь и сигнализация. Пожарная сигнализация

Дата актуализации: 10.08.2017

Типовой проект 503-2-36.88

Альбом I. Пояснительная записка. Технология производства. Архитектурные решения. Конструкции железобетонные. Отопление, вентиляция. Внутренние водопровод и канализация. Силовое электрооборудование. Электрическое освещение. Автоматизация санитарно-технических систем. Связь и сигнализация. Пожарная сигнализация

Обозначение: Типовой проект 503-2-36.88
Обозначение англ: 503-2-36.88
Статус:не определен законодательством
Название рус.:Альбом I. Пояснительная записка. Технология производства. Архитектурные решения. Конструкции железобетонные. Отопление, вентиляция. Внутренние водопровод и канализация. Силовое электрооборудование. Электрическое освещение. Автоматизация санитарно-технических систем. Связь и сигнализация. Пожарная сигнализация
Дата добавления в базу:01.02.2017
Дата актуализации:05.05.2017
Дата введения:11.11.1988
Разработан: Ростовский филиал Гипроавтотранса Минавтотранса РСФСР
Горьковский филиал Гипроавтотранса
Утверждён:11.11.1988 Министерство внутренних дел СССР (USSR Ministry of Internal Affairs 102-88)
Издан: ЦИТП Госстроя СССР (CITP, Gosstroy (USSR) 1990 г. )
Расположен в:Техническая документация Строительство Справочные документы Типовые строительные конструкции, изделия и узлы Общероссийский строительный каталог Промышленные предприятия, здания и сооружения Предприятия, здания и сооружения транспорта Транспорт автомобильный Предприятия автотранспортные, гаражи и стоянки для легковых автомобилей, автобусов и мотоциклов
Заменяет собой:
Типовой проект 503-2-36.88Типовой проект 503-2-36.88Типовой проект 503-2-36.88Типовой проект 503-2-36.88Типовой проект 503-2-36.88Типовой проект 503-2-36.88Типовой проект 503-2-36.88Типовой проект 503-2-36.88Типовой проект 503-2-36.88Типовой проект 503-2-36.88Типовой проект 503-2-36.88Типовой проект 503-2-36.88Типовой проект 503-2-36.88Типовой проект 503-2-36.88Типовой проект 503-2-36.88Типовой проект 503-2-36.88Типовой проект 503-2-36.88Типовой проект 503-2-36.88Типовой проект 503-2-36.88Типовой проект 503-2-36.88Типовой проект 503-2-36.88Типовой проект 503-2-36.88Типовой проект 503-2-36.88Типовой проект 503-2-36.88Типовой проект 503-2-36.88Типовой проект 503-2-36.88Типовой проект 503-2-36.88Типовой проект 503-2-36.88Типовой проект 503-2-36.88Типовой проект 503-2-36.88Типовой проект 503-2-36.88Типовой проект 503-2-36.88Типовой проект 503-2-36.88Типовой проект 503-2-36.88Типовой проект 503-2-36.88Типовой проект 503-2-36.88Типовой проект 503-2-36.88Типовой проект 503-2-36.88Типовой проект 503-2-36.88Типовой проект 503-2-36.88Типовой проект 503-2-36.88Типовой проект 503-2-36.88Типовой проект 503-2-36.88Типовой проект 503-2-36.88Типовой проект 503-2-36.88Типовой проект 503-2-36.88Типовой проект 503-2-36.88Типовой проект 503-2-36.88Типовой проект 503-2-36.88Типовой проект 503-2-36.88Типовой проект 503-2-36.88Типовой проект 503-2-36.88Типовой проект 503-2-36.88Типовой проект 503-2-36.88Типовой проект 503-2-36.88Типовой проект 503-2-36.88Типовой проект 503-2-36.88Типовой проект 503-2-36.88Типовой проект 503-2-36.88Типовой проект 503-2-36.88Типовой проект 503-2-36.88Типовой проект 503-2-36.88Типовой проект 503-2-36.88Типовой проект 503-2-36.88Типовой проект 503-2-36.88Типовой проект 503-2-36.88Типовой проект 503-2-36.88Типовой проект 503-2-36.88Типовой проект 503-2-36.88Типовой проект 503-2-36.88Типовой проект 503-2-36.88Типовой проект 503-2-36.88

© 2013 Ёшкин Кот :-) Карта сайта