| ||||||||||||||||||||||||||||||||||||
Скачать НД 2-020101-012 Правила классификационных освидетельствований судов в эксплуатации (редакция 2016 года)Дата актуализации: 10.08.2017
|
| Обозначение: | НД 2-020101-012 |
| Обозначение англ: | ND 2-020101-012 |
| Статус: | заменен |
| Название рус.: | Правила классификационных освидетельствований судов в эксплуатации (редакция 2016 года) |
| Дата добавления в базу: | 01.02.2017 |
| Дата актуализации: | 05.05.2017 |
| Дата введения: | 01.01.2017 |
| Область применения: | В Правилах учтены унифицированные требования, интерпретации и рекомендации Международной ассоциации классификационных обществ и соответствующие резолюции Международной морской организации. Правила предназначены для инспекторского состава, экипажей судов и судовладельцев. |
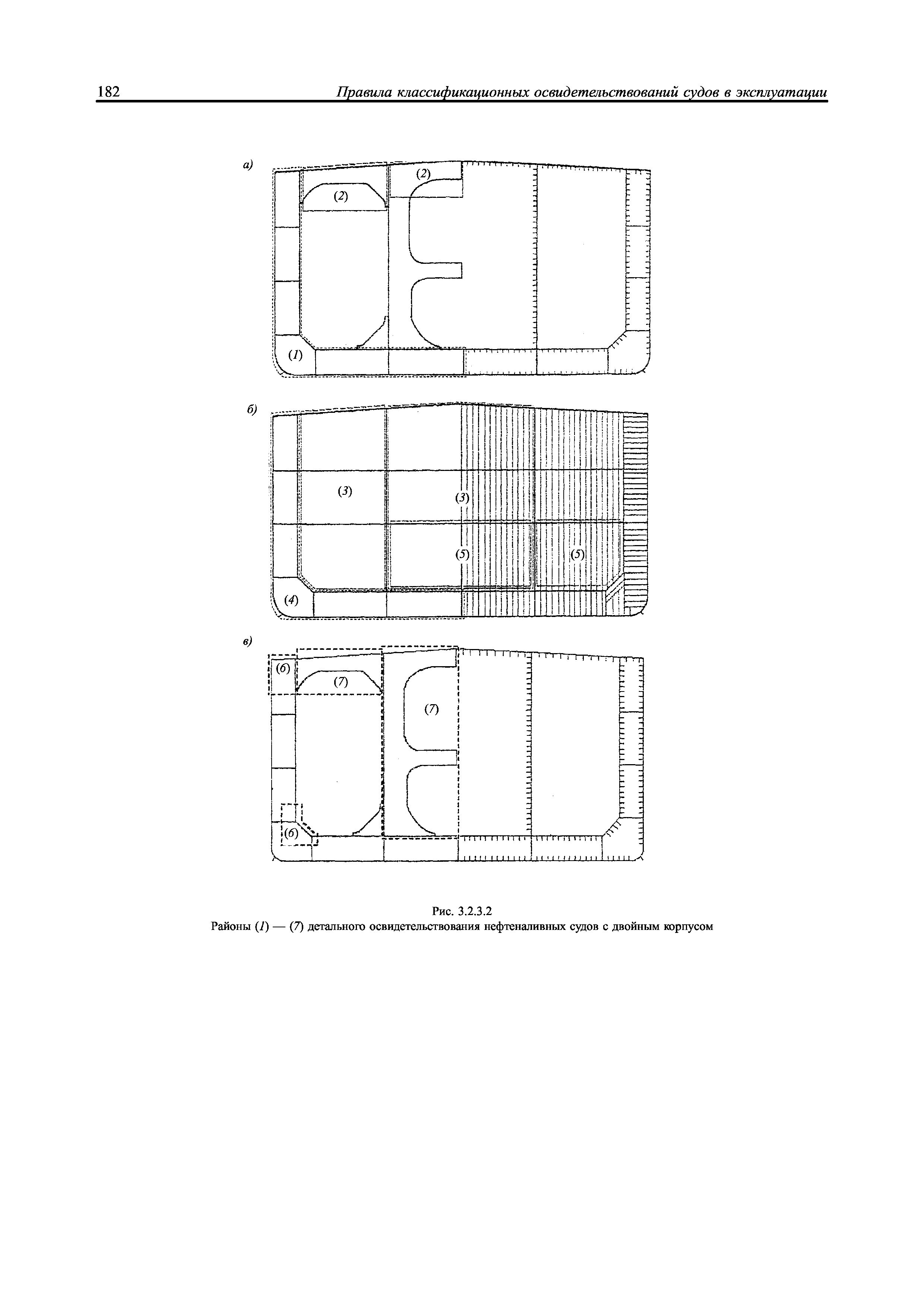
| Оглавление: | Часть I. Общие положения 1 Область распространения 2 Определения и пояснения 3 Виды классификационных освидетельствований 4 Обеспечение проведения освидетельствований 5 Определение технического состояния судна 6 Судовая техническая документация 7 Требования к поставщикам услуг Часть II. Периодичность и объемы освидетельствований 1 Первоначальное освидетельствование 2 Периодическое освидетельствование 3 Внеочередные освидетельствования 4 Другие освидетельствования Часть III. Дополнительные освидетельствования судов в зависимости от их назначения и материала корпуса 1 Общие положения Приложение 1.3. Руководство по оценке технического состояния корпусов судов (ЕSР) в связи с подготовкой к очередному расширенному освидетельствованию корпуса Приложение 1.3-1 Программа освидетельствования Приложение 1.3-2 Чек-лист планирования освидетельствования Приложение 1.4. Форма отчета об осмотре, проведенном судовладельцем 2 Освидетельствования нефтеналивных и комбинированных судов Приложение 2.8. Принципы составления отчета о состоянии корпуса Приложение 2.9-1. Метод выборочных замеров толщин для оценки продольной прочности и методы ремонта Приложение 2.9-2. Критерии расчета момента сопротивления миделевого сечения корпуса судна Приложение 2.9-3. Предел уменьшения минимальной продольной прочности судов в эксплуатации 3 Освидетельствования нефтеналивных судов с двойным корпусом Приложение 3.8. Принципы составления отчета о состоянии корпуса Приложение 3.9-1. Метод выборочных замеров толщин для оценки продольной прочности и методы ремонта Приложение 3.9-2. Критерии расчета момента сопротивления миделевого сечения корпуса судна Приложение 3.9-3. Предел уменьшения минимальной продольной прочности судов в эксплуатации 4 Освидетельствования химовозов Приложение 4.8. Принципы составления отчета о состоянии корпуса 5 Освидетельствования навалочных судов Приложение 5.2-1. Критерии оценки состояния шоковых закрытий и комингсов Приложение 5.2-2. Сроки соответствия навалочных судов требованиям правил ХII/12 и ХII/13 Конвенции СОЛАС-74/78 Приложение 5.8. Принципы составления отчета о состоянии корпуса Приложение 5.9-1. Руководство по оценке возможности перевозки навалочных грузов высокой плотности на существующих навалочных судах в соответствии с требованиями к прочности поперечной переборки между грузовыми трюмами № 1 и № 2 Приложение 5.9-2. Руководство по замене/подкреплению поперечной водонепроницаемой переборки с вертикальными гофрами между грузовыми трюмами № 1 и № 2 Приложение 5.9-3. Руководство по замеру толщин вертикальной гофрированной поперечной водонепроницаемой переборки между грузовыми трюмами № 1 и № 2 Приложение 5.12. Руководство по замеру толщин шпангоутов и шпангоутных книц навалочных судов с одинарными бортами 6 Освидетельствования навалочных судов с двойным корпусом 7 Освидетельствования корпуса определенных типов судов, перевозящих сухие генеральные грузы 8 Освидетельствования газовозов 9 Освидетельствования пассажирских судов 10 Освидетельствования судов специального назначения 11 Освидетельствования судов, перевозящих ненавалочные опасные грузы 12 Освидетельствование судов на пригодность для перевозки незерновых навалочных грузов 13 Освидетельствование плавучих доков, стоечных судов и барж 14 Освидетельствование корпусов железобетонных судов 15 Освидетельствование корпусов судов из стеклопластика 16 Освидетельствования судов, перевозящих упакованное отработавшее ядерное топливо, плутоний и высокорадиоактивные отходы 17 Требования к освидетельствованиям носовых, бортовых, кормовых дверей, аппарелей и внутренних дверей накатных судов (судов типа ро-ро) 18 Освидетельствование рыболовных судов 19 Освидетельствование корпуса, оборудования и механизмов ПБУ и МСП Часть IV. Освидетельствования холодильных установок 1 Общие положения 2 Проведение и объемы периодических освидетельствований 3 Ежегодное освидетельствование 4 Очередное освидетельствование 5 Первоначальное освидетельствование 6 Определение технического состояния Приложение 1. Перечень судовой технической документации Приложение 2. Инструкция по определению технического состояния, обновлению и ремонту корпусов морских судов Приложение 3. Перечень документов, рекомендуемых к использованию при ремонте корпуса |
| Разработан: | Российский морской регистр судоходства |
| Утверждён: | 30.12.2015 Российский морской регистр судоходства |
| Издан: | Российский морской регистр судоходства (2016 г. ) |
| Расположен в: | |
| Список изменений: | |
| Заменяет собой: | |
| Чем заменён: |


















































































































































































































































































































































































































































































































































Текстовое изменение 340-21-861ц от 01.01.2016





Текстовое изменение 340-21-885ц от 15.04.2016





























Текстовое изменение 340-21-887ц от 18.04.2016













Текстовое изменение 340-21-891ц от 01.07.2016

Текстовое изменение 340-21-896ц от 01.07.2016













Текстовое изменение 340-21-898ц от 30.05.2016




















































Текстовое изменение 340-21-900ц от 31.05.2016







Текстовое изменение 340-21-925ц от 08.08.2016

Текстовое изменение 340-21-934ц от 15.09.2016



Текстовое изменение 340-21-938ц от 04.10.2016


