| ||||||||||||||||||||||||||||||
Скачать НП 1.2-71 Помещения жилых корпусов гостиницДата актуализации: 10.08.2017
|
| Обозначение: | НП 1.2-71 |
| Обозначение англ: | NP 1.2-71 |
| Статус: | не действует |
| Название рус.: | Помещения жилых корпусов гостиниц |
| Дата добавления в базу: | 01.02.2017 |
| Дата актуализации: | 05.05.2017 |
| Область применения: | Издание нормалей предназначено для практического использования при проектировании жилых и общественных зданий. Нормалями предусматривается применение планировочных элементов для полносборного строительства зданий крупнопанельной и каркасной конструкции, а также зданий с несущими стенами из кирпича или блоков. |
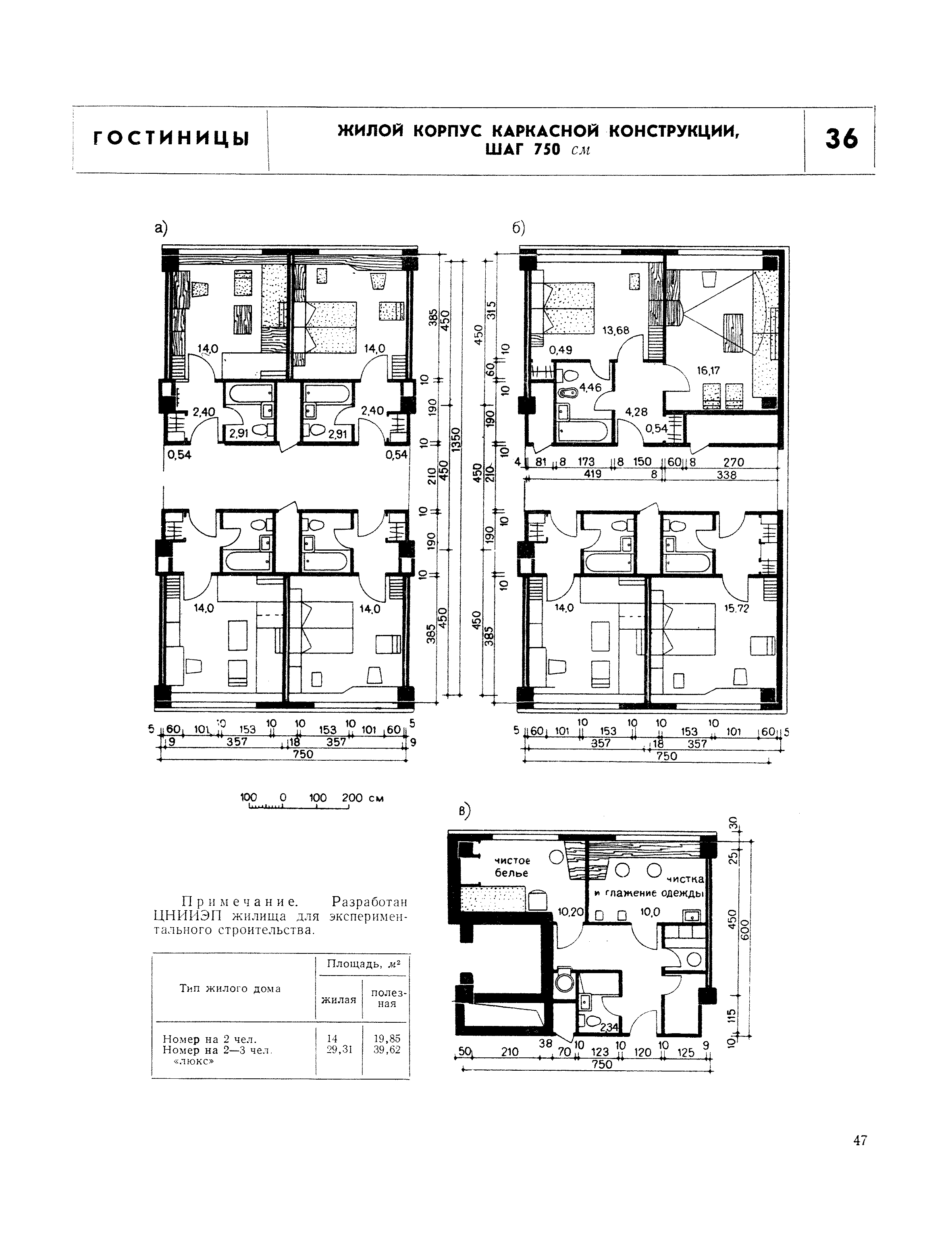
| Оглавление: | Введение Раздел 1. Помещения жилых корпусов, оборудование, мебель 1. Исходные данные, состав и площади основных помещений 2. Исходные габариты 3. Жилой номер. Наборы мебели 4. Жилой номер. Типы мебели 5. Жилой номер. Типы мебели 6. Жилой номер. Группировка мебели 7. Жилой номер. Встроенные шкафы 8. Жилой номер на одного человека. Расстановка мебели 9. Жилой номер на двух человек. Расстановка мебели 10. Санитарный узел. Оборудование 11. Жилой номер. Санитарный узел 12. Санитарные узлы, общие поэтажные 13. Душевые, общие поэтажные 14. Передняя жилого номера 15. Поэтажный холл. Группировка мебели и примеры планировке Раздел 2. Лестницы, лифты 16. Основные параметры лестниц 17. Типы и параметры обычных пассажирских лифтов 18. Типы и параметры обычных пассажирских лифтов 19. Типы в параметры обычных пассажирских лифтов 20. Типы и параметры обычных пассажирских лифтов 21. Типы п параметры скоростных пассажирских лифтов 22. Типы и параметры скоростных пассажирских лифтов Раздел 3. Примеры планировки групп помещений и жилых корпусов 23. Жилой номер с умывальником на одного человека 24. Жилой номер с санитарным узлом на одного человека 25. Жилой номер на двух человек 26. Жилой номер на двух-трех человек (люкс) 27. Туристский номер на трех человек 28. Туристский номер на четырех человек 29. Туристский номер на пять человек 30. Туристский номер на шесть человек 31. Обслуживающие помещения в зданиях гостиниц 32. Жилой корпус с поперечными несущими стенами, шаг 330 см 33. Жилой корпус с поперечными несущими стенами, шаг 600 см 34. Жилой корпус с продольными несущими стенами, шаг 600 см 35. Жилой корпус каркасной конструкции, шаг 600 см 36. Жилой корпус каркасной конструкции, шаг 750 см |
| Разработан: | ГипроНИИ Академии наук СССР ЦНИИЭП граждансельстрой ЦНИИЭП зрелищных зданий и спортивных сооружений Госгражданстроя Гипровуз Гособразования СССР Гипротеатр Минкультуры СССР КиевЗНИИЭП Союзспортпроект Спорткомитета СССР Гипроторг ЦНИИЭП лечебно-курортных зданий Госгражданстроя Гипроздрав Гипропрос ЦНИИЭП торговых зданий Госгражданстроя СССР ЦНИИЭП учебных зданий ЦНИИЭП жилища МНИИТЭП ГАПУ г. Москвы |
| Утверждён: | ЦНИИЭП жилища Госгражданстроя |
| Издан: | Издательство литературы по строительству (1971 г. ) |
| Расположен в: | |
| Нормативные ссылки: |
|
















































