Информационная система
«Ёшкин Кот»

Скачать базу одним архивом
Скачать обновления
История создания базы
Карта сайта

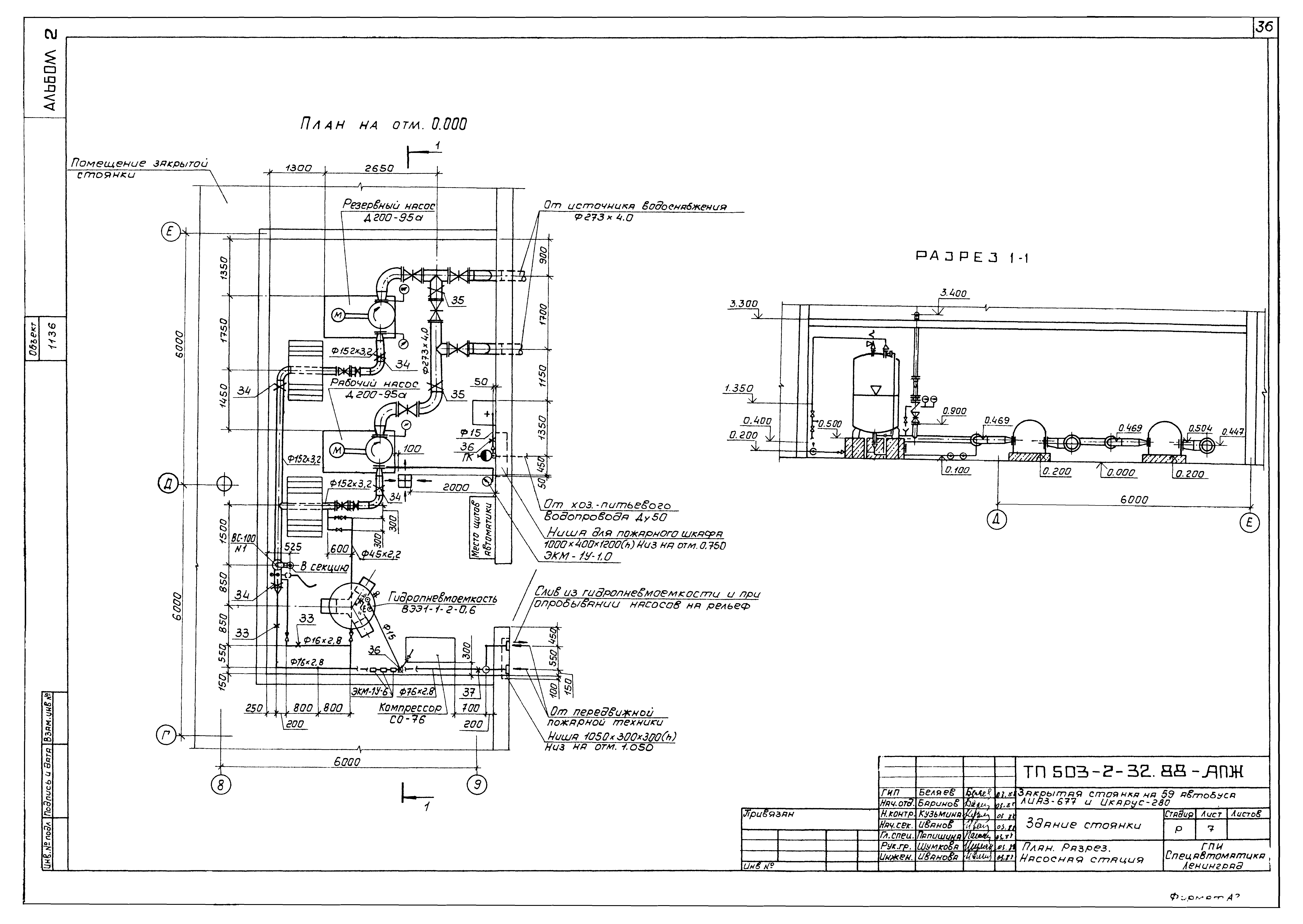
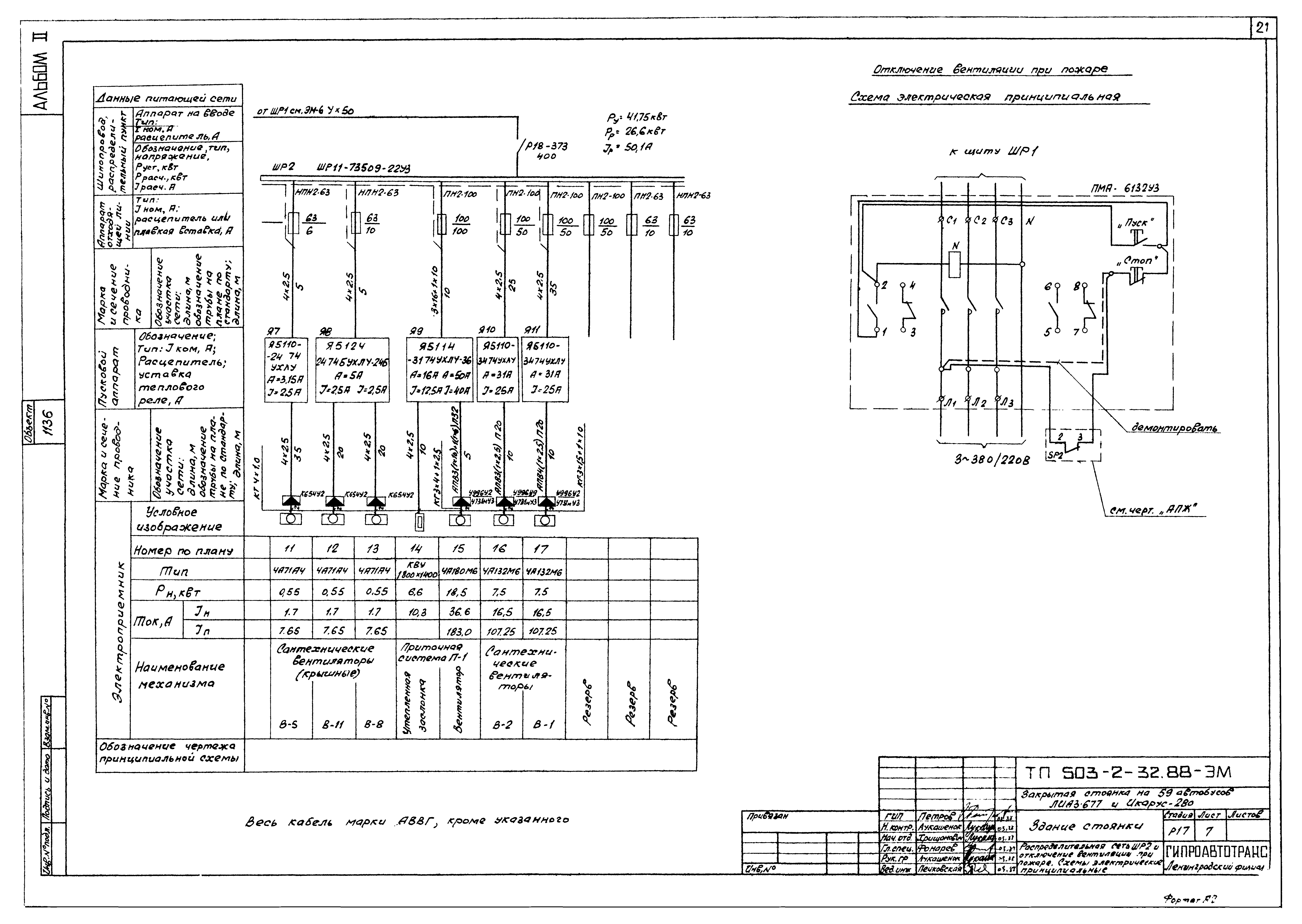
Скачать Типовой проект 503-2-32.88 Альбом 2. Отопление и вентиляция. Внутренний водопровод и канализация. Электрическое освещение и силовое электрооборудование. Связь и сигнализация. Автоматизация. Автоматическое пожаротушение

Дата актуализации: 10.08.2017

Типовой проект 503-2-32.88

Альбом 2. Отопление и вентиляция. Внутренний водопровод и канализация. Электрическое освещение и силовое электрооборудование. Связь и сигнализация. Автоматизация. Автоматическое пожаротушение

Обозначение: Типовой проект 503-2-32.88
Обозначение англ: 503-2-32.88
Статус:не определен законодательством
Название рус.:Альбом 2. Отопление и вентиляция. Внутренний водопровод и канализация. Электрическое освещение и силовое электрооборудование. Связь и сигнализация. Автоматизация. Автоматическое пожаротушение
Дата добавления в базу:12.02.2016
Дата актуализации:05.05.2017
Дата введения:26.05.1988
Разработан: Ленинградский филиал Гипроавтотранс
Утверждён:26.05.1988 Минавтотранс РСФСР (Russian Federation Minavtotrans 6)
Расположен в:Техническая документация Строительство Справочные документы Типовые строительные конструкции, изделия и узлы Общероссийский строительный каталог Промышленные предприятия, здания и сооружения Предприятия, здания и сооружения транспорта Транспорт автомобильный Предприятия автотранспортные, гаражи и стоянки для легковых автомобилей, автобусов и мотоциклов
Заменяет собой:
  • Типовой проект 503-2-5
Типовой проект 503-2-32.88Типовой проект 503-2-32.88Типовой проект 503-2-32.88Типовой проект 503-2-32.88Типовой проект 503-2-32.88Типовой проект 503-2-32.88Типовой проект 503-2-32.88Типовой проект 503-2-32.88Типовой проект 503-2-32.88Типовой проект 503-2-32.88Типовой проект 503-2-32.88Типовой проект 503-2-32.88Типовой проект 503-2-32.88Типовой проект 503-2-32.88Типовой проект 503-2-32.88Типовой проект 503-2-32.88Типовой проект 503-2-32.88Типовой проект 503-2-32.88Типовой проект 503-2-32.88Типовой проект 503-2-32.88Типовой проект 503-2-32.88Типовой проект 503-2-32.88Типовой проект 503-2-32.88Типовой проект 503-2-32.88Типовой проект 503-2-32.88Типовой проект 503-2-32.88Типовой проект 503-2-32.88Типовой проект 503-2-32.88Типовой проект 503-2-32.88Типовой проект 503-2-32.88Типовой проект 503-2-32.88Типовой проект 503-2-32.88Типовой проект 503-2-32.88Типовой проект 503-2-32.88Типовой проект 503-2-32.88Типовой проект 503-2-32.88Типовой проект 503-2-32.88Типовой проект 503-2-32.88Типовой проект 503-2-32.88Типовой проект 503-2-32.88Типовой проект 503-2-32.88Типовой проект 503-2-32.88Типовой проект 503-2-32.88Типовой проект 503-2-32.88Типовой проект 503-2-32.88Типовой проект 503-2-32.88Типовой проект 503-2-32.88Типовой проект 503-2-32.88Типовой проект 503-2-32.88Типовой проект 503-2-32.88Типовой проект 503-2-32.88Типовой проект 503-2-32.88Типовой проект 503-2-32.88

© 2013 Ёшкин Кот :-) Карта сайта