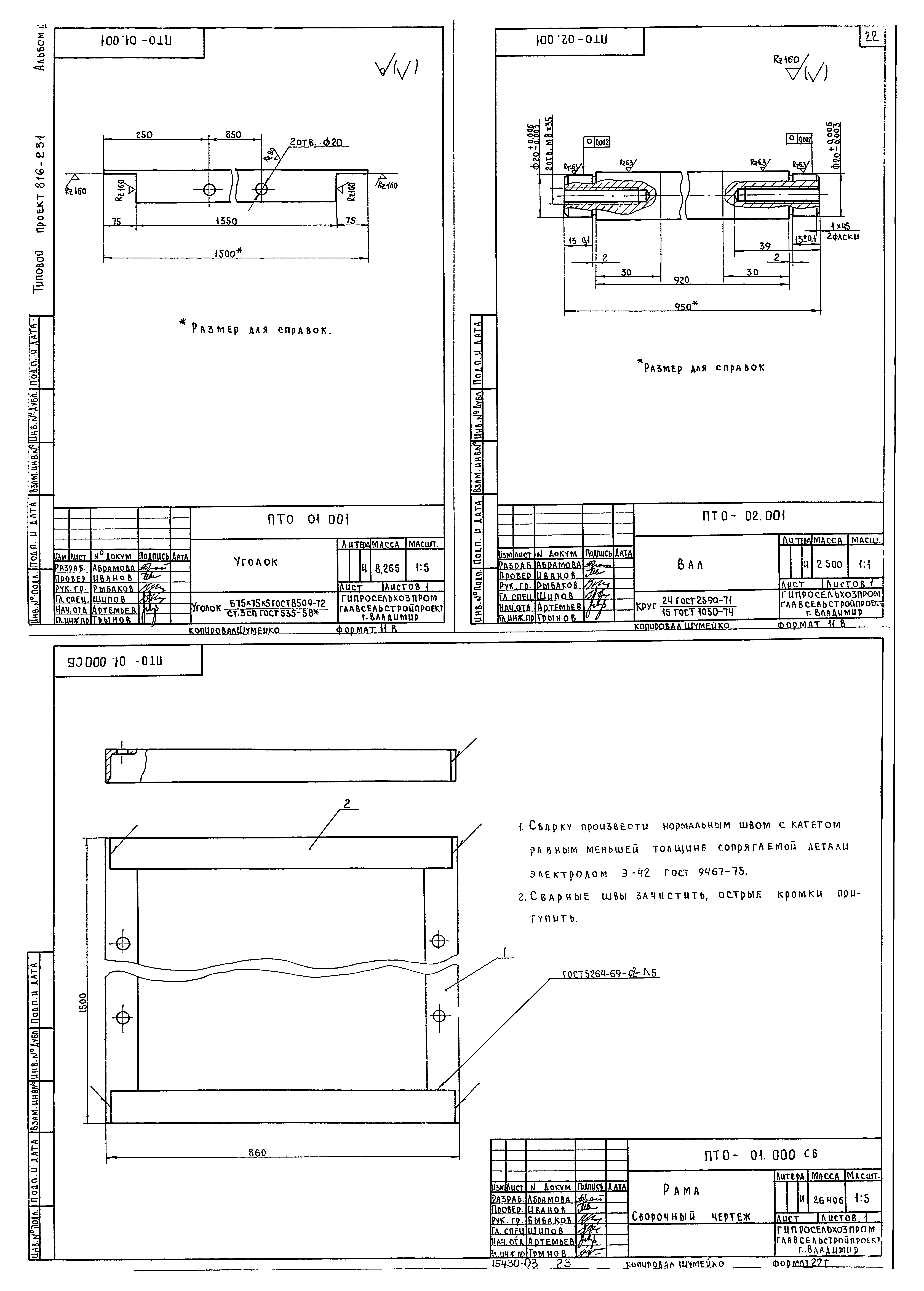
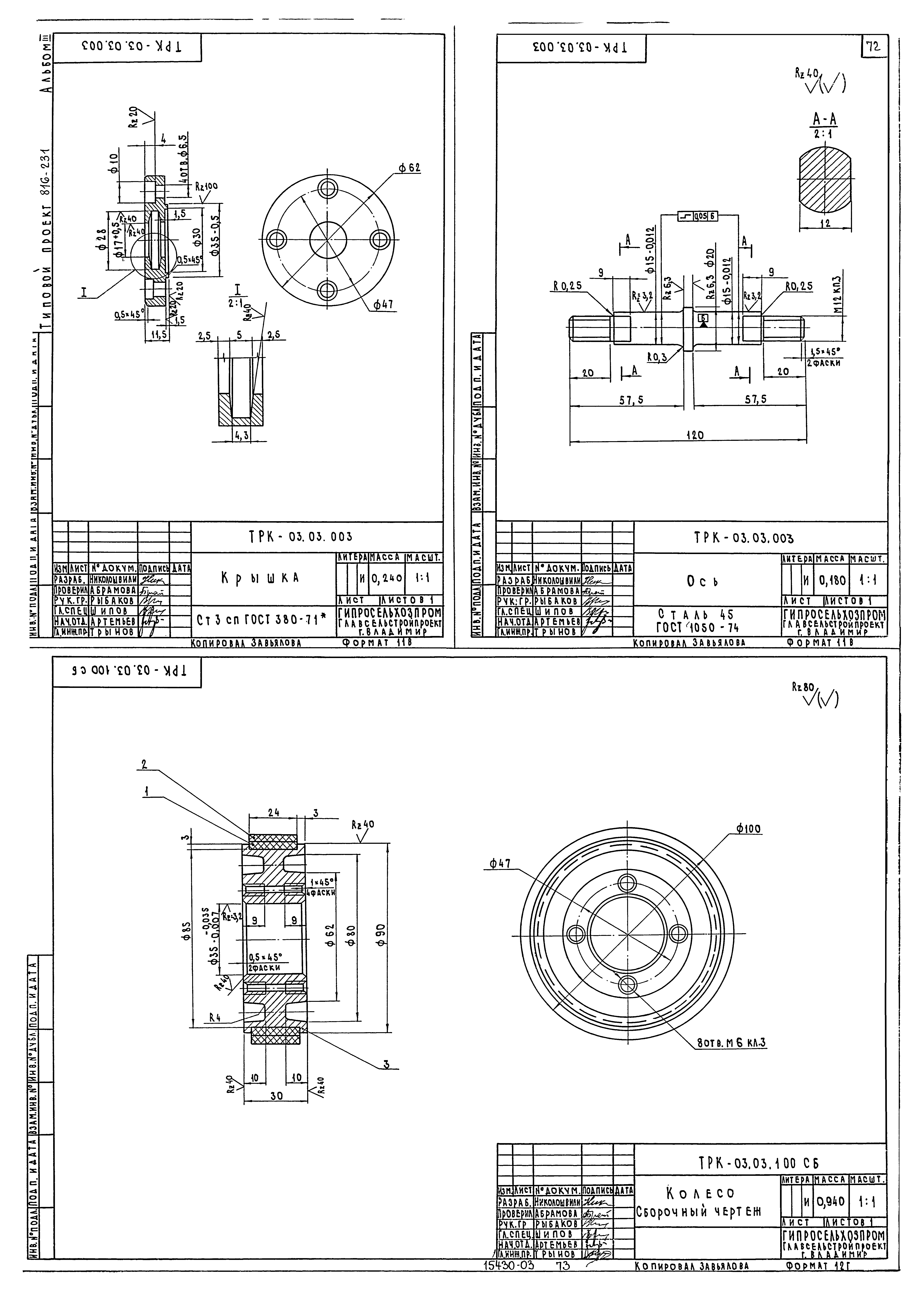
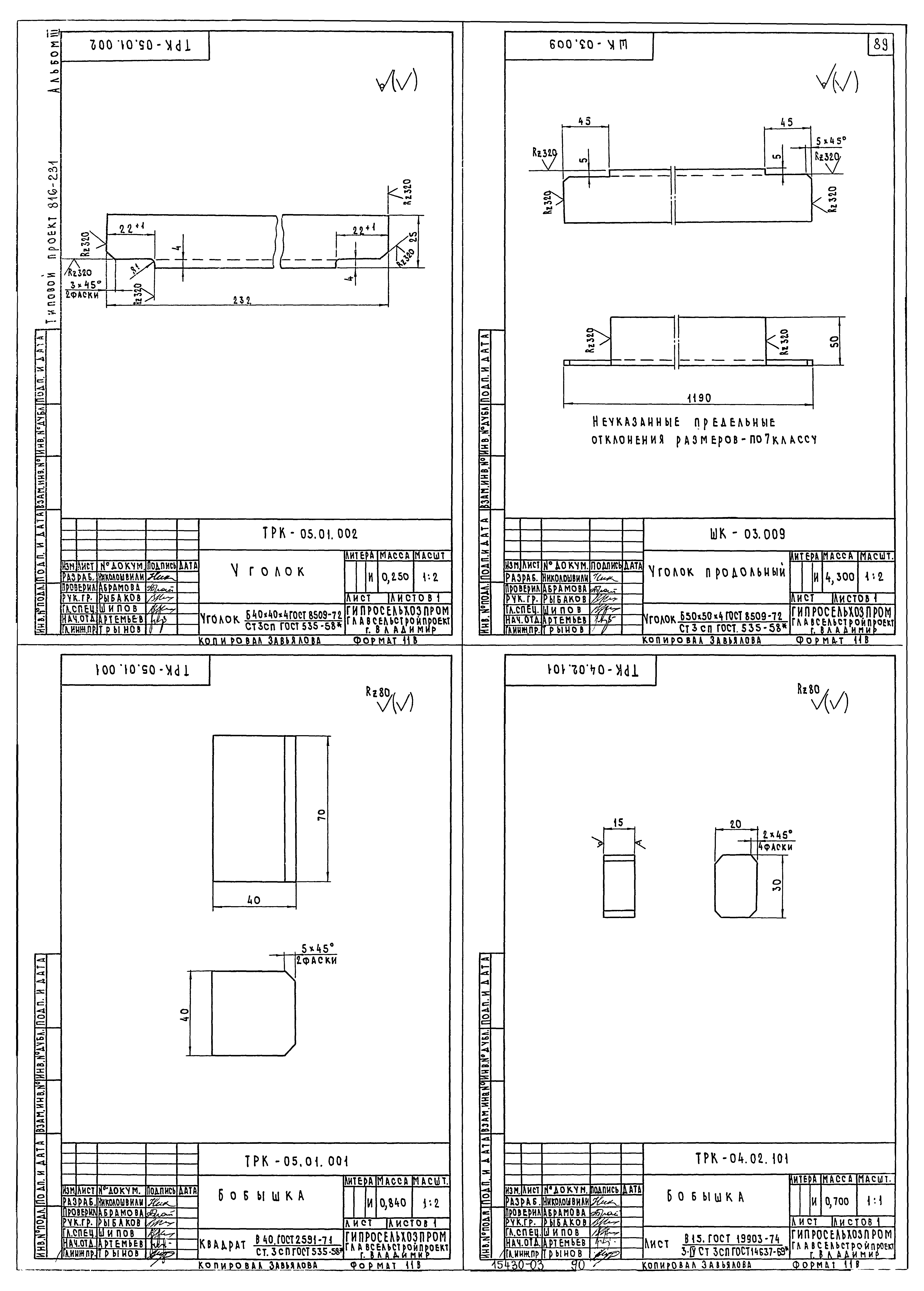
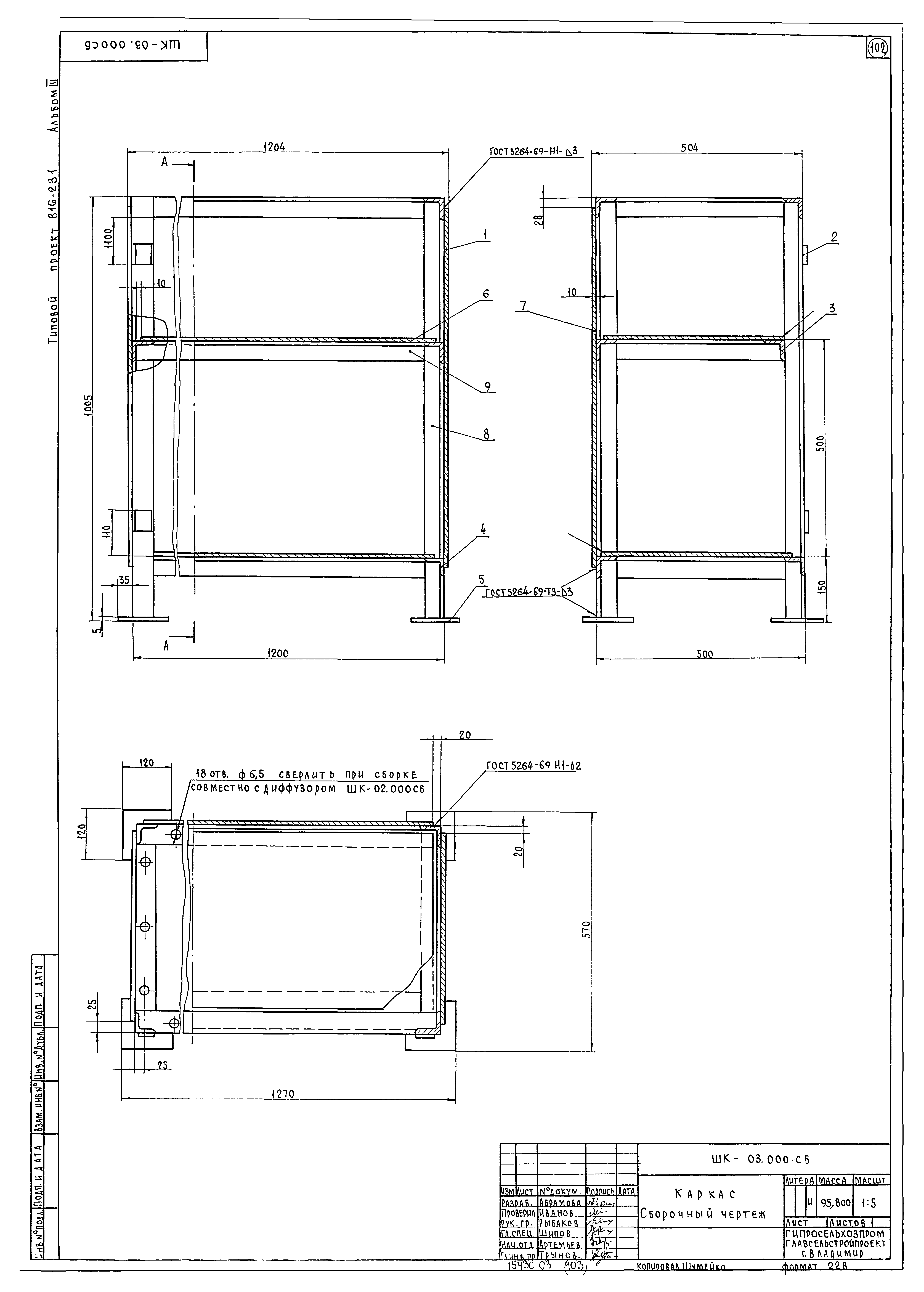
Скачать Типовой проект 816-231 Альбом III. Нестандартизированное оборудованиеДата актуализации: 10.08.2017 Типовой проект 816-231
Альбом III. Нестандартизированное оборудованиеОбозначение: | Типовой проект 816-231 | Обозначение англ: | 816-231 | Статус: | действует | Название рус.: | Альбом III. Нестандартизированное оборудование | Дата добавления в базу: | 12.02.2016 | Дата актуализации: | 05.05.2017 | Разработан: | Гипросельхозпром
| Утверждён: | 14.03.1977 Минсельхоз СССР (USSR Minselkhoz 20/35)
| Издан: | ЦИТП Госстроя СССР (CITP, Gosstroy (USSR) 1980 г. )
| Расположен в: |
|
                                                                                                      
|