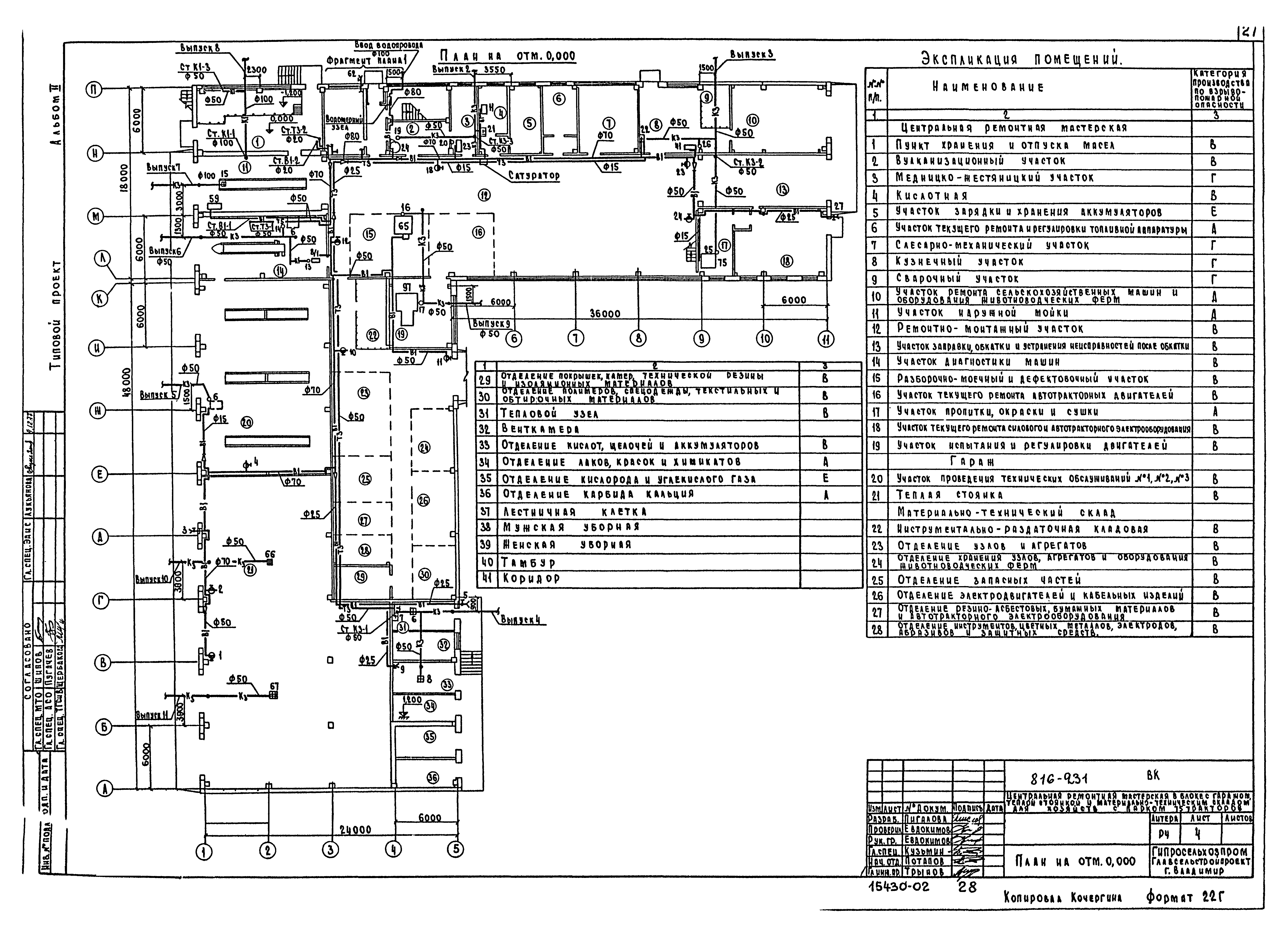
Скачать Типовой проект 816-231 Альбом II. Отопление и вентиляция. Внутренний водопровод и канализация. Электротехнические решения. Связь и сигнализация. Автоматизация санитарно-технических системДата актуализации: 10.08.2017 Типовой проект 816-231
Альбом II. Отопление и вентиляция. Внутренний водопровод и канализация. Электротехнические решения. Связь и сигнализация. Автоматизация санитарно-технических системОбозначение: | Типовой проект 816-231 | Обозначение англ: | 816-231 | Статус: | действует | Название рус.: | Альбом II. Отопление и вентиляция. Внутренний водопровод и канализация. Электротехнические решения. Связь и сигнализация. Автоматизация санитарно-технических систем | Дата добавления в базу: | 12.02.2016 | Дата актуализации: | 05.05.2017 | Разработан: | Гипросельхозпром
| Утверждён: | 14.03.1977 Минсельхоз СССР (USSR Minselkhoz 20/35)
| Издан: | ЦИТП Госстроя СССР (CITP, Gosstroy (USSR) 1980 г. )
| Расположен в: |
|
                                                                    
|