Информационная система
«Ёшкин Кот»

Скачать базу одним архивом
Скачать обновления
История создания базы
Карта сайта

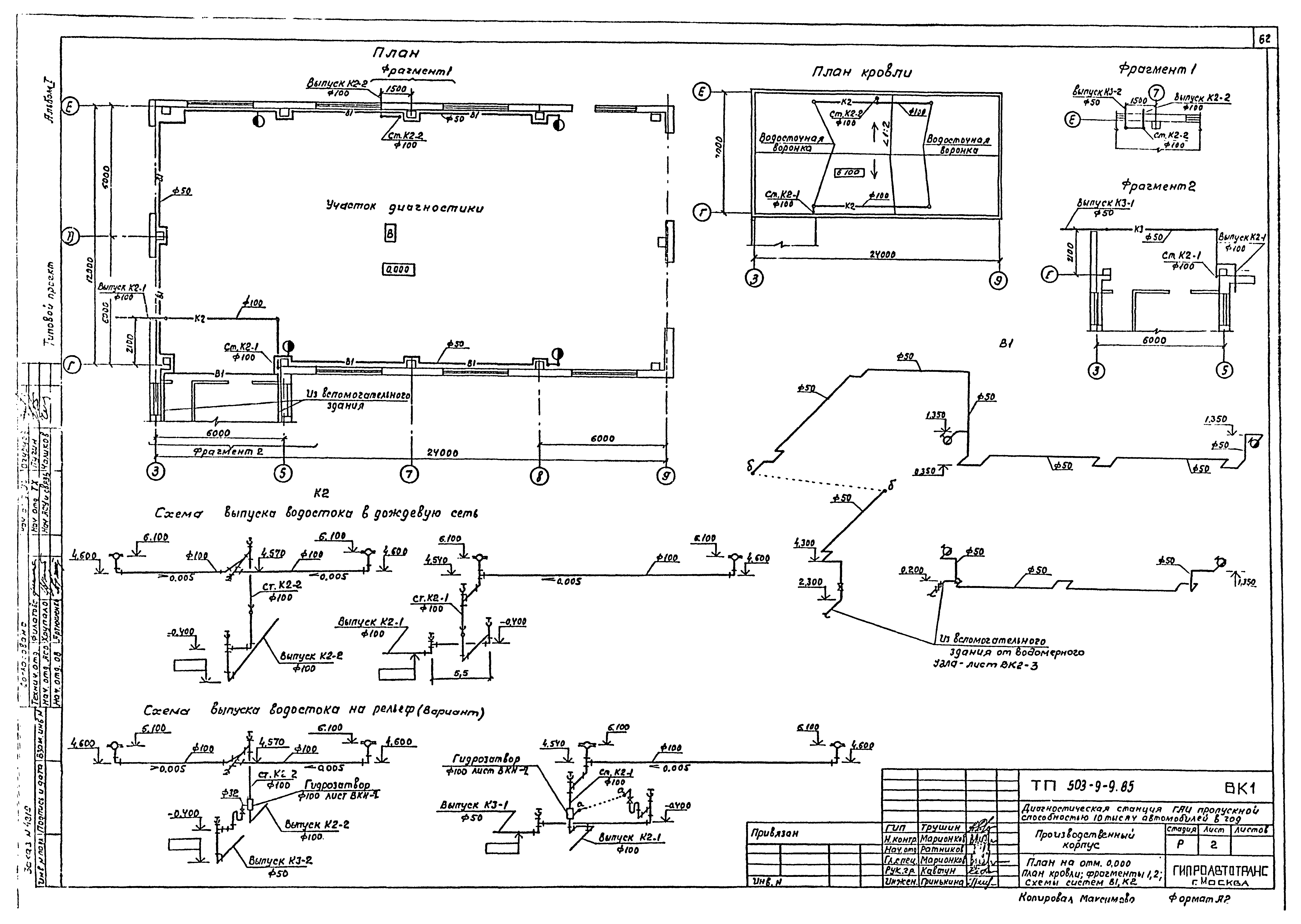
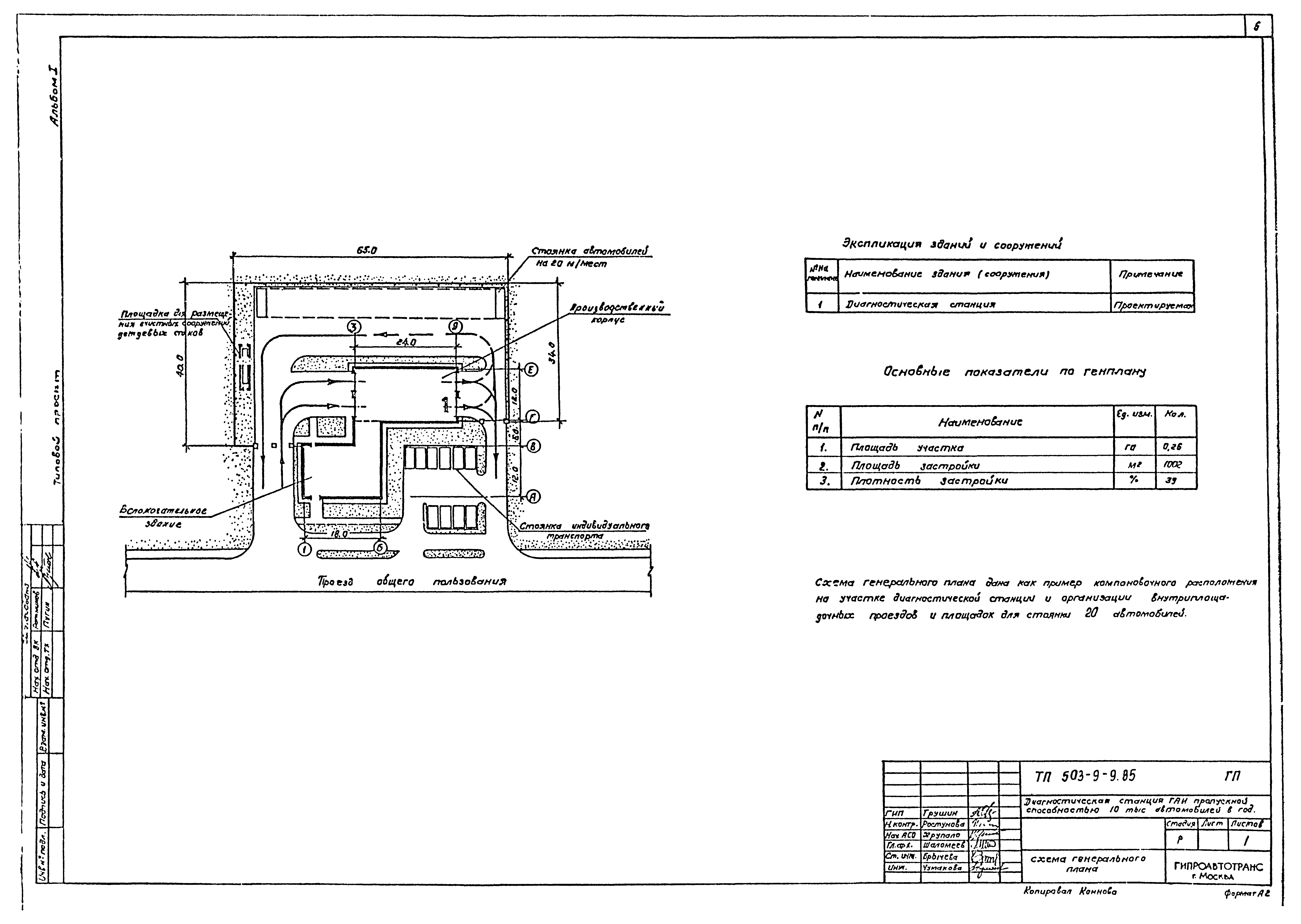
Скачать Типовой проект 503-9-9.85 Альбом I. Общая пояснительная записка. Схема генерального плана. Технология производства. Архитектурные решения. Конструкции железобетонные. Отопление и вентиляция. Внутренние водопровод и канализация

Дата актуализации: 10.08.2017

Типовой проект 503-9-9.85

Альбом I. Общая пояснительная записка. Схема генерального плана. Технология производства. Архитектурные решения. Конструкции железобетонные. Отопление и вентиляция. Внутренние водопровод и канализация

Обозначение: Типовой проект 503-9-9.85
Обозначение англ: 503-9-9.85
Статус:не действует
Название рус.:Альбом I. Общая пояснительная записка. Схема генерального плана. Технология производства. Архитектурные решения. Конструкции железобетонные. Отопление и вентиляция. Внутренние водопровод и канализация
Дата добавления в базу:12.02.2016
Дата актуализации:05.05.2017
Дата введения:01.01.1990
Разработан: Гипроавтотранс
Утверждён:05.03.1985 МВД СССР (USSR Ministry of Internal Affairs 58-85)
Расположен в:Техническая документация Строительство Справочные документы Типовые строительные конструкции, изделия и узлы Общероссийский строительный каталог Промышленные предприятия, здания и сооружения Предприятия, здания и сооружения транспорта Транспорт автомобильный Здания и сооружения разные
Чем заменён:
  • Типовые материалы для проектирования 503-09-29.91 «Диагностическая станция ГАИ пропускной способностью 10 тыс. автомобилей в год»
Типовой проект 503-9-9.85Типовой проект 503-9-9.85Типовой проект 503-9-9.85Типовой проект 503-9-9.85Типовой проект 503-9-9.85Типовой проект 503-9-9.85Типовой проект 503-9-9.85Типовой проект 503-9-9.85Типовой проект 503-9-9.85Типовой проект 503-9-9.85Типовой проект 503-9-9.85Типовой проект 503-9-9.85Типовой проект 503-9-9.85Типовой проект 503-9-9.85Типовой проект 503-9-9.85Типовой проект 503-9-9.85Типовой проект 503-9-9.85Типовой проект 503-9-9.85Типовой проект 503-9-9.85Типовой проект 503-9-9.85Типовой проект 503-9-9.85Типовой проект 503-9-9.85Типовой проект 503-9-9.85Типовой проект 503-9-9.85Типовой проект 503-9-9.85Типовой проект 503-9-9.85Типовой проект 503-9-9.85Типовой проект 503-9-9.85Типовой проект 503-9-9.85Типовой проект 503-9-9.85Типовой проект 503-9-9.85Типовой проект 503-9-9.85Типовой проект 503-9-9.85Типовой проект 503-9-9.85Типовой проект 503-9-9.85Типовой проект 503-9-9.85Типовой проект 503-9-9.85Типовой проект 503-9-9.85Типовой проект 503-9-9.85Типовой проект 503-9-9.85Типовой проект 503-9-9.85Типовой проект 503-9-9.85Типовой проект 503-9-9.85Типовой проект 503-9-9.85Типовой проект 503-9-9.85Типовой проект 503-9-9.85Типовой проект 503-9-9.85Типовой проект 503-9-9.85Типовой проект 503-9-9.85Типовой проект 503-9-9.85Типовой проект 503-9-9.85Типовой проект 503-9-9.85Типовой проект 503-9-9.85Типовой проект 503-9-9.85Типовой проект 503-9-9.85Типовой проект 503-9-9.85Типовой проект 503-9-9.85Типовой проект 503-9-9.85Типовой проект 503-9-9.85Типовой проект 503-9-9.85Типовой проект 503-9-9.85Типовой проект 503-9-9.85Типовой проект 503-9-9.85Типовой проект 503-9-9.85Типовой проект 503-9-9.85Типовой проект 503-9-9.85Типовой проект 503-9-9.85Типовой проект 503-9-9.85

© 2013 Ёшкин Кот :-) Карта сайта