Информационная система
«Ёшкин Кот»

Скачать базу одним архивом
Скачать обновления
История создания базы
Карта сайта

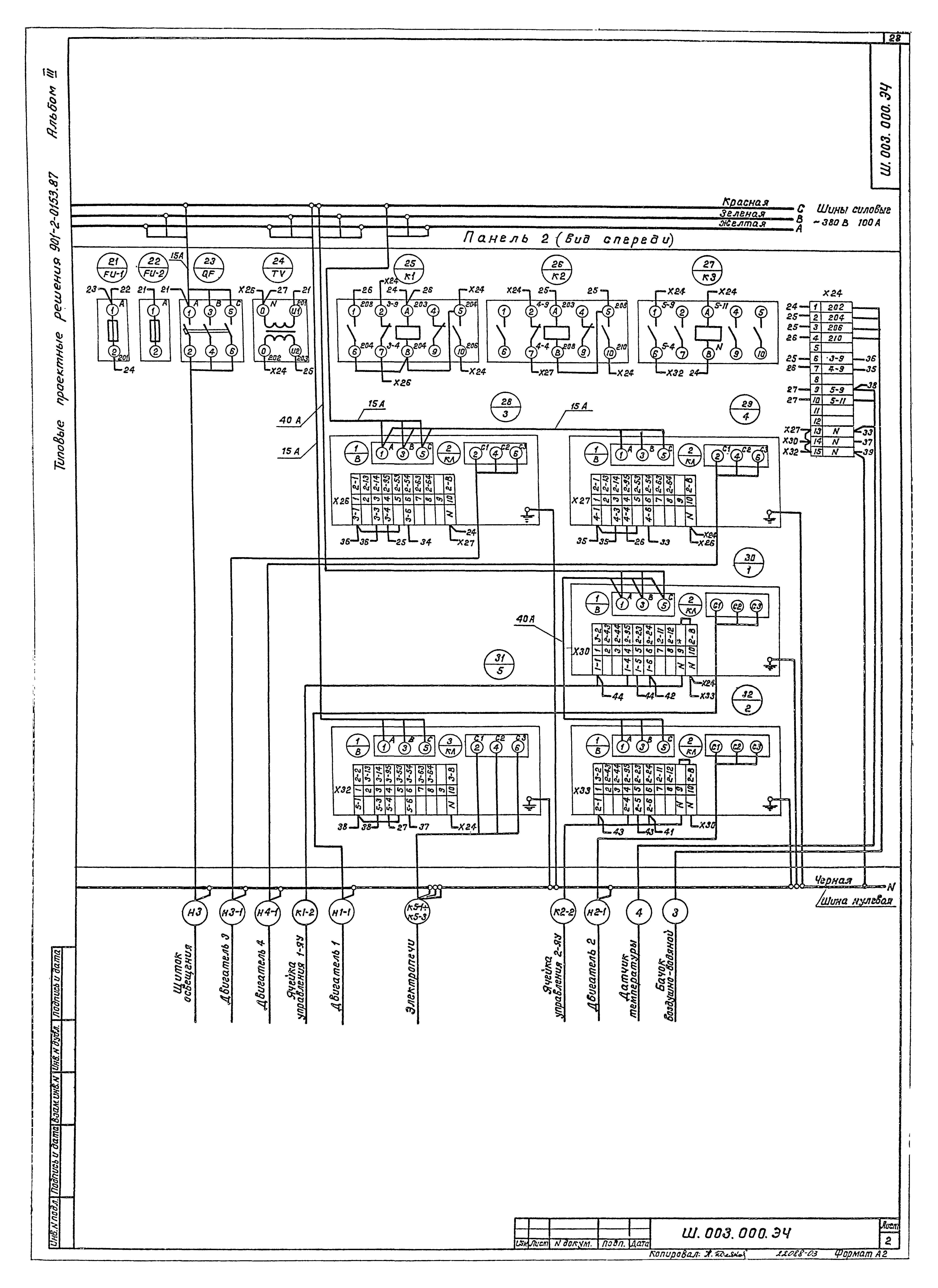
Скачать Типовые проектные решения 901-2-0153.87 Альбом III. Нестандартизированное оборудование и чертежи заводу-изготовителю

Дата актуализации: 10.08.2017

Типовые проектные решения 901-2-0153.87

Альбом III. Нестандартизированное оборудование и чертежи заводу-изготовителю

Обозначение: Типовые проектные решения 901-2-0153.87
Обозначение англ: 901-2-0153.87
Статус:заменен
Название рус.:Альбом III. Нестандартизированное оборудование и чертежи заводу-изготовителю
Дата добавления в базу:12.02.2016
Дата актуализации:05.05.2017
Дата введения:01.10.1992
Разработан: Мосгипротранс
Утверждён:13.02.1987 Министерство транспортного строительства СССР (USSR Ministry of Transport Construction МО-143)
Издан: ЦИТП Госстроя СССР (CITP, Gosstroy (USSR) 1988 г. )
Расположен в:Техническая документация Строительство Справочные документы Типовые строительные конструкции, изделия и узлы Общероссийский строительный каталог Промышленные предприятия, здания и сооружения Здания и сооружения санитарно-технические Водоснабжение Насосные станции Насосные станции водопроводные
Чем заменён:
Типовые проектные решения 901-2-0153.87Типовые проектные решения 901-2-0153.87Типовые проектные решения 901-2-0153.87Типовые проектные решения 901-2-0153.87Типовые проектные решения 901-2-0153.87Типовые проектные решения 901-2-0153.87Типовые проектные решения 901-2-0153.87Типовые проектные решения 901-2-0153.87Типовые проектные решения 901-2-0153.87Типовые проектные решения 901-2-0153.87Типовые проектные решения 901-2-0153.87Типовые проектные решения 901-2-0153.87Типовые проектные решения 901-2-0153.87Типовые проектные решения 901-2-0153.87Типовые проектные решения 901-2-0153.87Типовые проектные решения 901-2-0153.87Типовые проектные решения 901-2-0153.87Типовые проектные решения 901-2-0153.87Типовые проектные решения 901-2-0153.87Типовые проектные решения 901-2-0153.87Типовые проектные решения 901-2-0153.87Типовые проектные решения 901-2-0153.87Типовые проектные решения 901-2-0153.87Типовые проектные решения 901-2-0153.87Типовые проектные решения 901-2-0153.87Типовые проектные решения 901-2-0153.87Типовые проектные решения 901-2-0153.87Типовые проектные решения 901-2-0153.87Типовые проектные решения 901-2-0153.87Типовые проектные решения 901-2-0153.87

© 2013 Ёшкин Кот :-) Карта сайта