Информационная система
«Ёшкин Кот»

Скачать базу одним архивом
Скачать обновления
История создания базы
Карта сайта

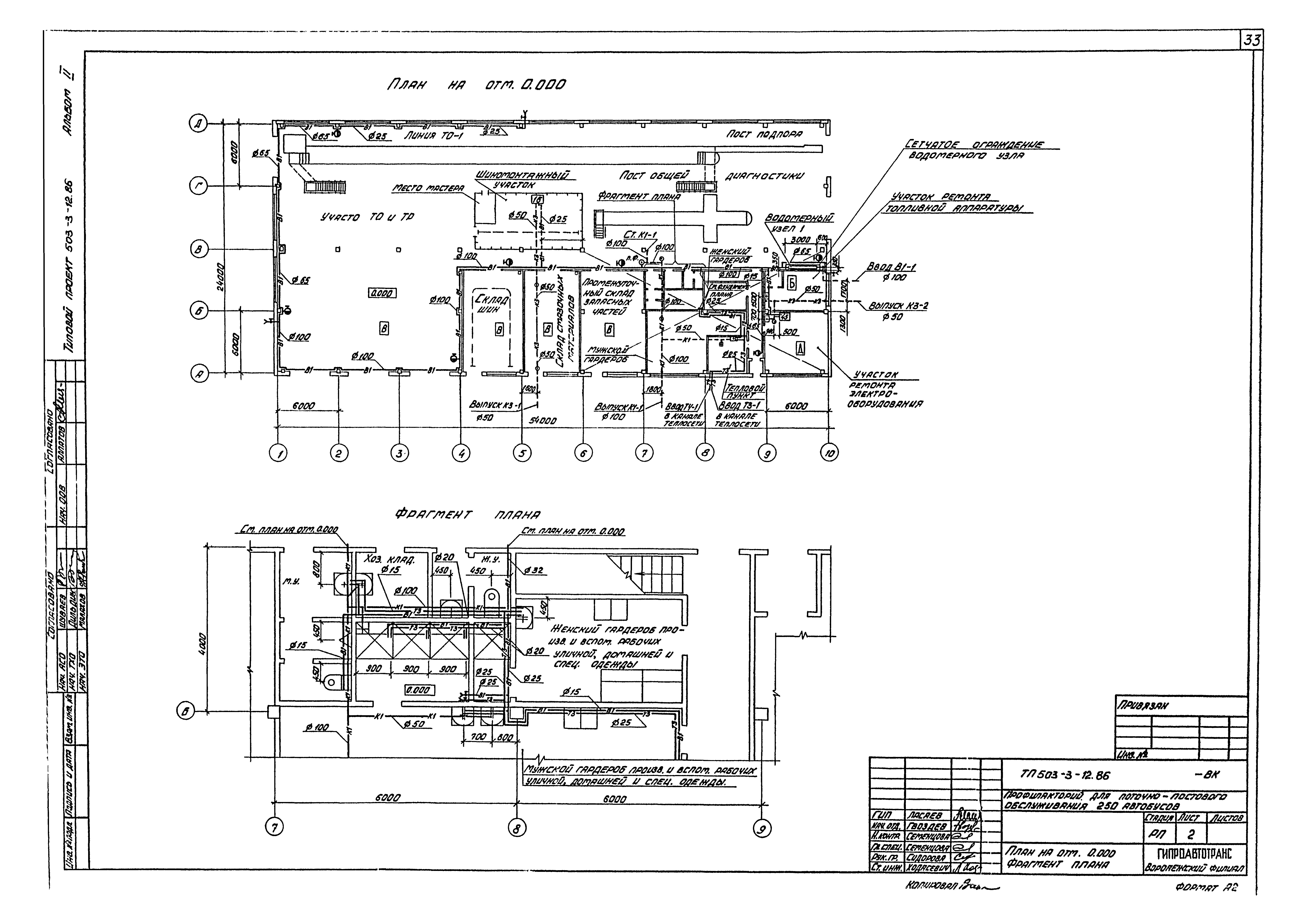
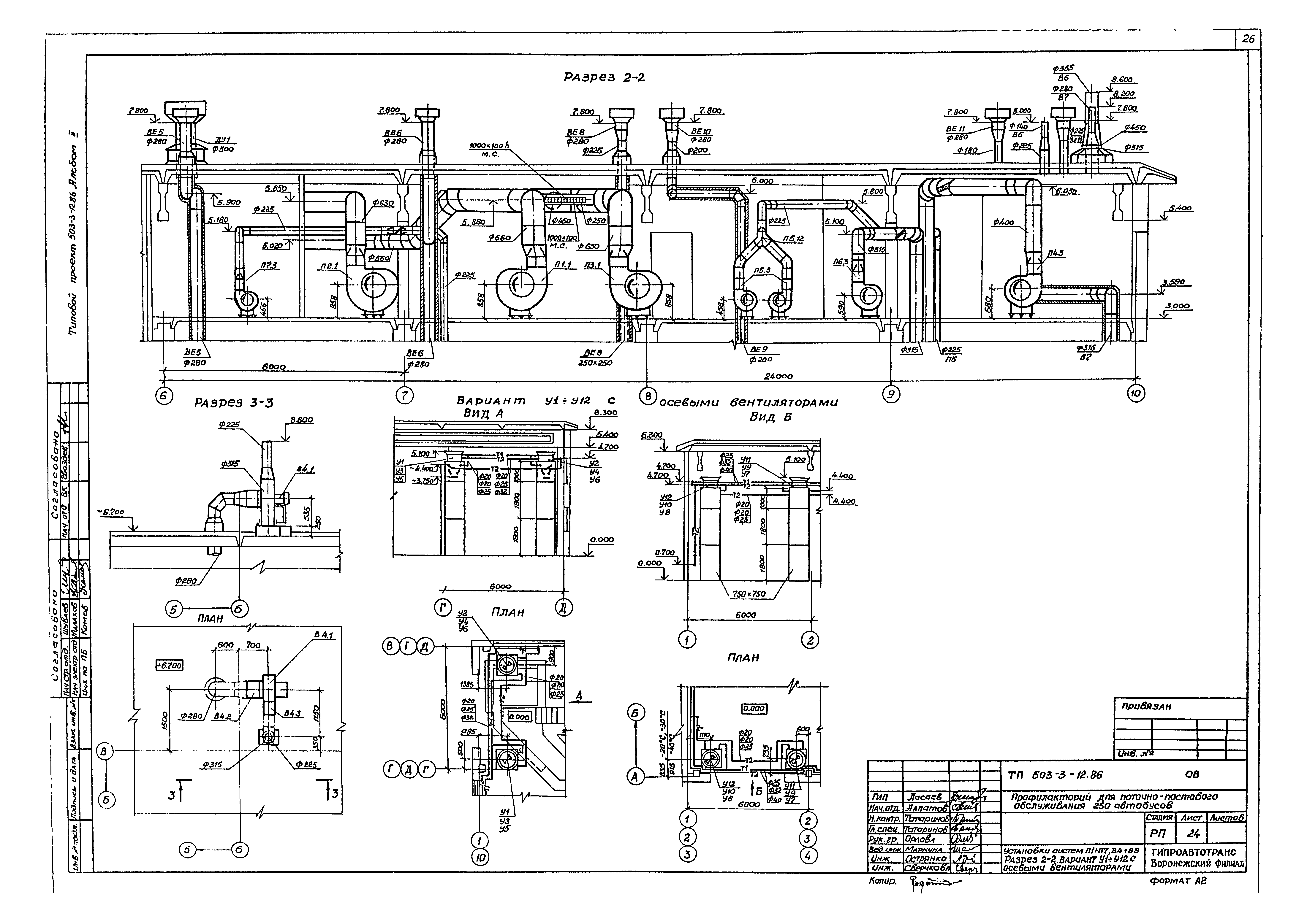
Скачать Типовой проект 503-3-12.86 Альбом II. Отопление и вентиляция. Внутренний водопровод и канализация

Дата актуализации: 10.08.2017

Типовой проект 503-3-12.86

Альбом II. Отопление и вентиляция. Внутренний водопровод и канализация

Обозначение: Типовой проект 503-3-12.86
Обозначение англ: 503-3-12.86
Статус:действует
Название рус.:Альбом II. Отопление и вентиляция. Внутренний водопровод и канализация
Дата добавления в базу:12.02.2016
Дата актуализации:05.05.2017
Разработан: Воронежский филиал Гипроавтотранс
Утверждён:31.05.1985 Минавтотранс РСФСР (Russian Federation Minavtotrans 24)
Издан: ЦИТП Госстроя СССР (CITP, Gosstroy (USSR) 1986 г. )
Расположен в:Техническая документация Строительство Справочные документы Типовые строительные конструкции, изделия и узлы Общероссийский строительный каталог Промышленные предприятия, здания и сооружения Предприятия, здания и сооружения транспорта Транспорт автомобильный Мойки и профилактории для грузовых и легковых автомобилей и автобусов
Заменяет собой:
  • Типовой проект 503-143 «Профилакторий для поточного обслуживания 250 автобусов»
Типовой проект 503-3-12.86Типовой проект 503-3-12.86Типовой проект 503-3-12.86Типовой проект 503-3-12.86Типовой проект 503-3-12.86Типовой проект 503-3-12.86Типовой проект 503-3-12.86Типовой проект 503-3-12.86Типовой проект 503-3-12.86Типовой проект 503-3-12.86Типовой проект 503-3-12.86Типовой проект 503-3-12.86Типовой проект 503-3-12.86Типовой проект 503-3-12.86Типовой проект 503-3-12.86Типовой проект 503-3-12.86Типовой проект 503-3-12.86Типовой проект 503-3-12.86Типовой проект 503-3-12.86Типовой проект 503-3-12.86Типовой проект 503-3-12.86Типовой проект 503-3-12.86Типовой проект 503-3-12.86Типовой проект 503-3-12.86Типовой проект 503-3-12.86Типовой проект 503-3-12.86Типовой проект 503-3-12.86Типовой проект 503-3-12.86Типовой проект 503-3-12.86Типовой проект 503-3-12.86Типовой проект 503-3-12.86Типовой проект 503-3-12.86Типовой проект 503-3-12.86Типовой проект 503-3-12.86Типовой проект 503-3-12.86Типовой проект 503-3-12.86Типовой проект 503-3-12.86Типовой проект 503-3-12.86

© 2013 Ёшкин Кот :-) Карта сайта