Информационная система
«Ёшкин Кот»

Скачать базу одним архивом
Скачать обновления
История создания базы
Карта сайта

Скачать Типовой проект 503-1-39.85 Альбом III. Отопление и вентиляция

Дата актуализации: 10.08.2017

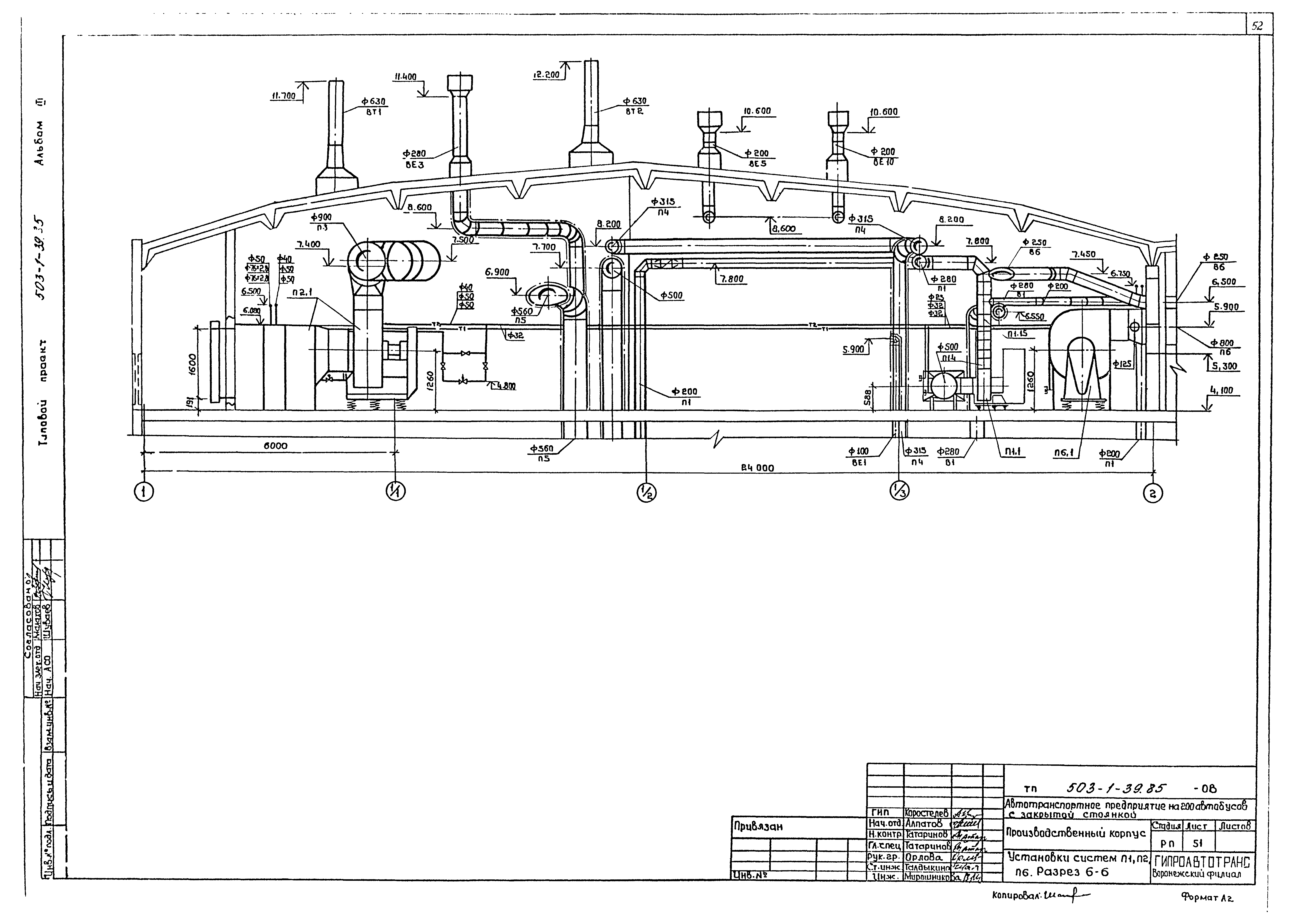
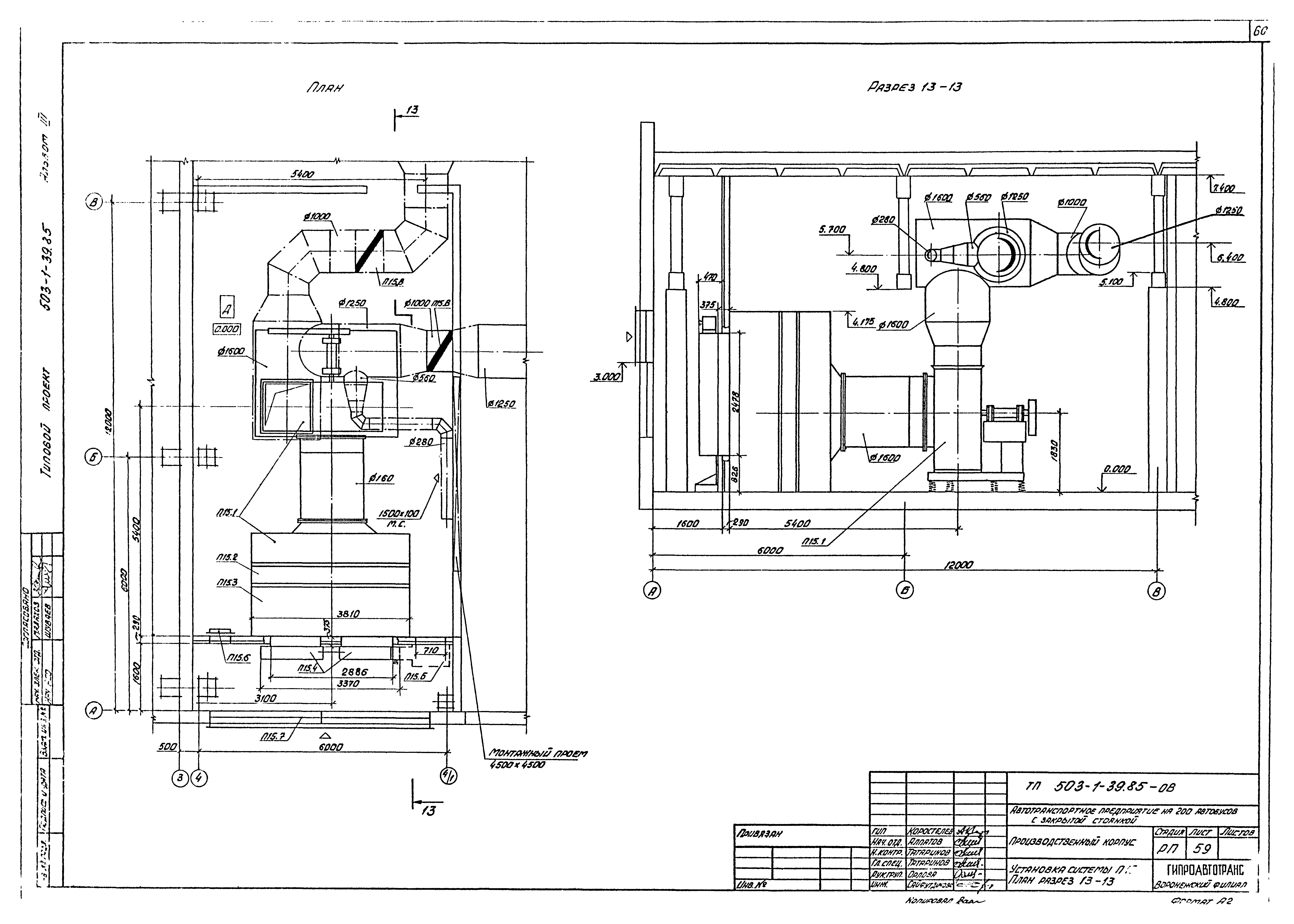
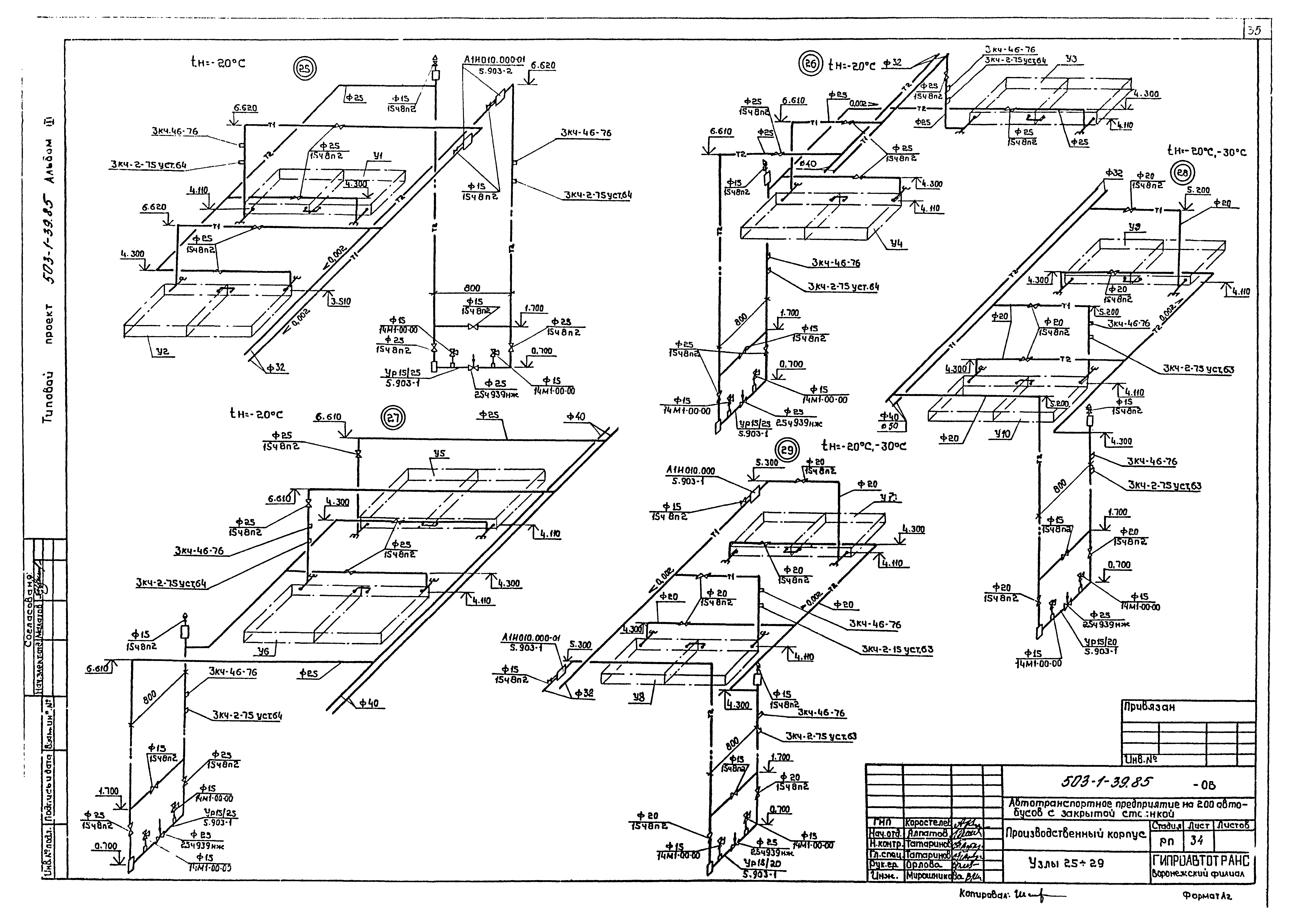
Типовой проект 503-1-39.85

Альбом III. Отопление и вентиляция

Обозначение: Типовой проект 503-1-39.85
Обозначение англ: 503-1-39.85
Статус:действует
Название рус.:Альбом III. Отопление и вентиляция
Дата добавления в базу:12.02.2016
Дата актуализации:05.05.2017
Разработан: Воронежский филиал Гипроавтотранс
Утверждён:18.01.1985 Минавтотранс РСФСР (Russian Federation Minavtotrans 9)
Издан: ЦИТП Госстроя СССР (CITP, Gosstroy (USSR) 1986 г. )
Расположен в:Техническая документация Строительство Справочные документы Типовые строительные конструкции, изделия и узлы Общероссийский строительный каталог Промышленные предприятия, здания и сооружения Предприятия, здания и сооружения транспорта Транспорт автомобильный Предприятия автотранспортные, гаражи и стоянки для легковых автомобилей, автобусов и мотоциклов
Типовой проект 503-1-39.85Типовой проект 503-1-39.85Типовой проект 503-1-39.85Типовой проект 503-1-39.85Типовой проект 503-1-39.85Типовой проект 503-1-39.85Типовой проект 503-1-39.85Типовой проект 503-1-39.85Типовой проект 503-1-39.85Типовой проект 503-1-39.85Типовой проект 503-1-39.85Типовой проект 503-1-39.85Типовой проект 503-1-39.85Типовой проект 503-1-39.85Типовой проект 503-1-39.85Типовой проект 503-1-39.85Типовой проект 503-1-39.85Типовой проект 503-1-39.85Типовой проект 503-1-39.85Типовой проект 503-1-39.85Типовой проект 503-1-39.85Типовой проект 503-1-39.85Типовой проект 503-1-39.85Типовой проект 503-1-39.85Типовой проект 503-1-39.85Типовой проект 503-1-39.85Типовой проект 503-1-39.85Типовой проект 503-1-39.85Типовой проект 503-1-39.85Типовой проект 503-1-39.85Типовой проект 503-1-39.85Типовой проект 503-1-39.85Типовой проект 503-1-39.85Типовой проект 503-1-39.85Типовой проект 503-1-39.85Типовой проект 503-1-39.85Типовой проект 503-1-39.85Типовой проект 503-1-39.85Типовой проект 503-1-39.85Типовой проект 503-1-39.85Типовой проект 503-1-39.85Типовой проект 503-1-39.85Типовой проект 503-1-39.85Типовой проект 503-1-39.85Типовой проект 503-1-39.85Типовой проект 503-1-39.85Типовой проект 503-1-39.85Типовой проект 503-1-39.85Типовой проект 503-1-39.85Типовой проект 503-1-39.85Типовой проект 503-1-39.85Типовой проект 503-1-39.85Типовой проект 503-1-39.85Типовой проект 503-1-39.85Типовой проект 503-1-39.85Типовой проект 503-1-39.85Типовой проект 503-1-39.85Типовой проект 503-1-39.85Типовой проект 503-1-39.85Типовой проект 503-1-39.85Типовой проект 503-1-39.85Типовой проект 503-1-39.85Типовой проект 503-1-39.85Типовой проект 503-1-39.85Типовой проект 503-1-39.85Типовой проект 503-1-39.85Типовой проект 503-1-39.85Типовой проект 503-1-39.85Типовой проект 503-1-39.85Типовой проект 503-1-39.85Типовой проект 503-1-39.85Типовой проект 503-1-39.85Типовой проект 503-1-39.85Типовой проект 503-1-39.85Типовой проект 503-1-39.85Типовой проект 503-1-39.85Типовой проект 503-1-39.85

© 2013 Ёшкин Кот :-) Карта сайта