Скачать Типовой проект 903-1-162 Альбом IX. Вариант установки котлов Братск-1ГДата актуализации: 10.08.2017 Типовой проект 903-1-162
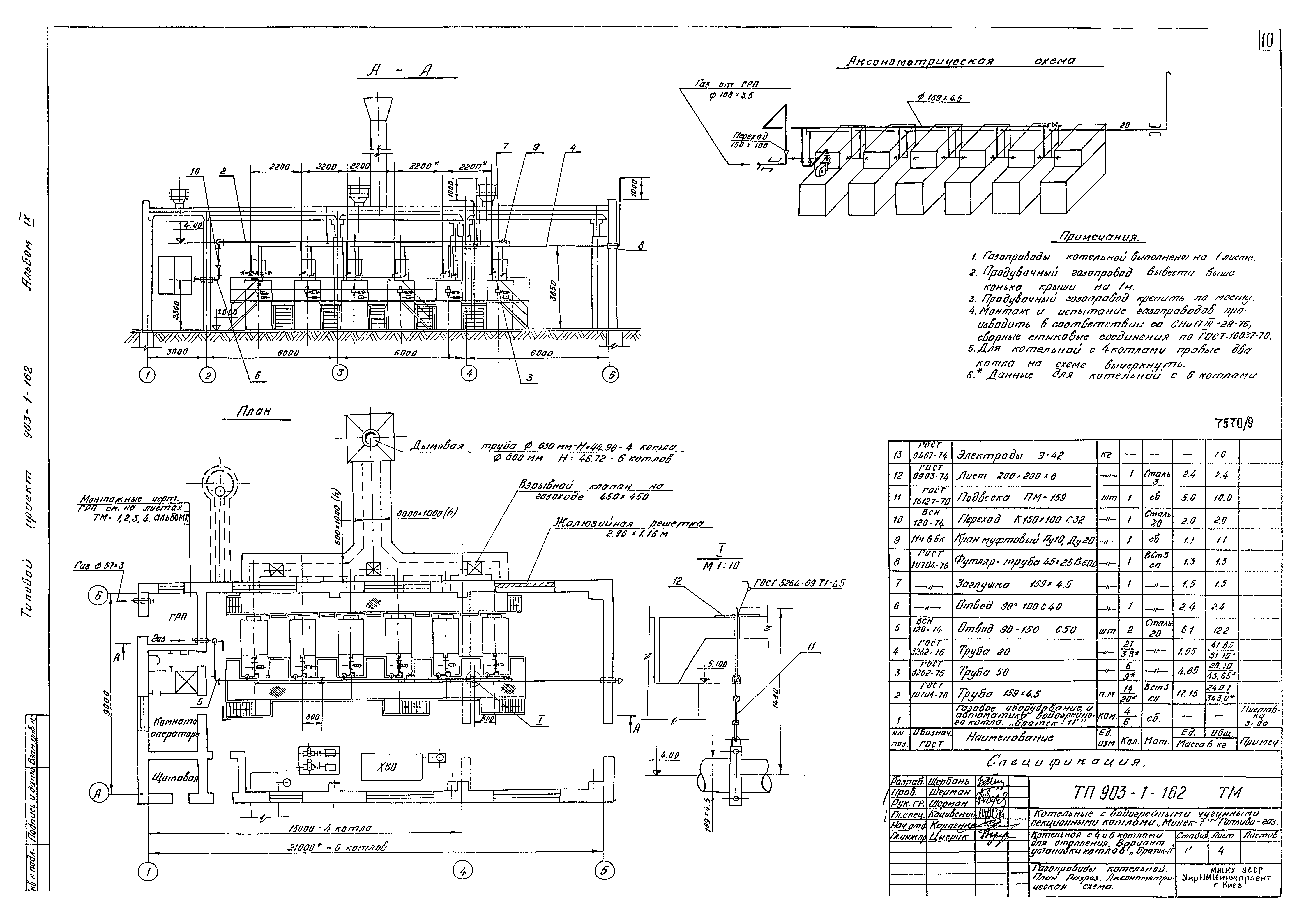
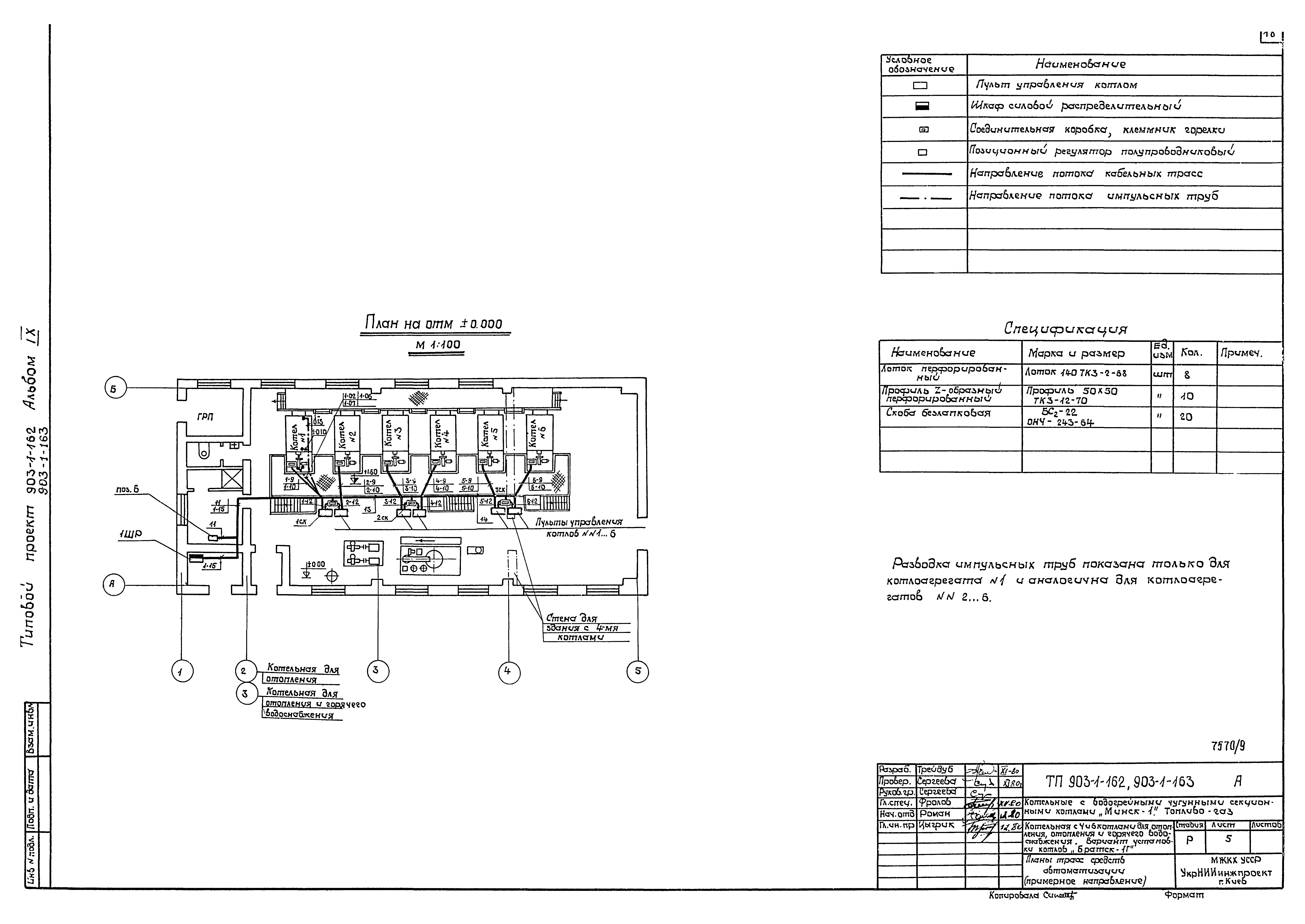
Альбом IX. Вариант установки котлов "Братск-1Г"Обозначение: | Типовой проект 903-1-162 | Обозначение англ: | 903-1-162 | Статус: | отменен | Название рус.: | Альбом IX. Вариант установки котлов "Братск-1Г" | Дата добавления в базу: | 12.02.2016 | Дата актуализации: | 05.05.2017 | Дата введения: | 01.01.1986 | Разработан: | Укргипроинжпроект Минкомхоза Украинской ССР
| Утверждён: | 01.01.1986 Укргипроинжпроект (83)
| Издан: | ЦИТП Госстроя СССР (CITP, Gosstroy (USSR) 1980 г. )
| Расположен в: |
|
                          
|