Скачать Типовые технологические карты на строительство заглубленных сооружений и противофильтрационных диафрагм методом стена в грунтеДата актуализации: 10.08.2017
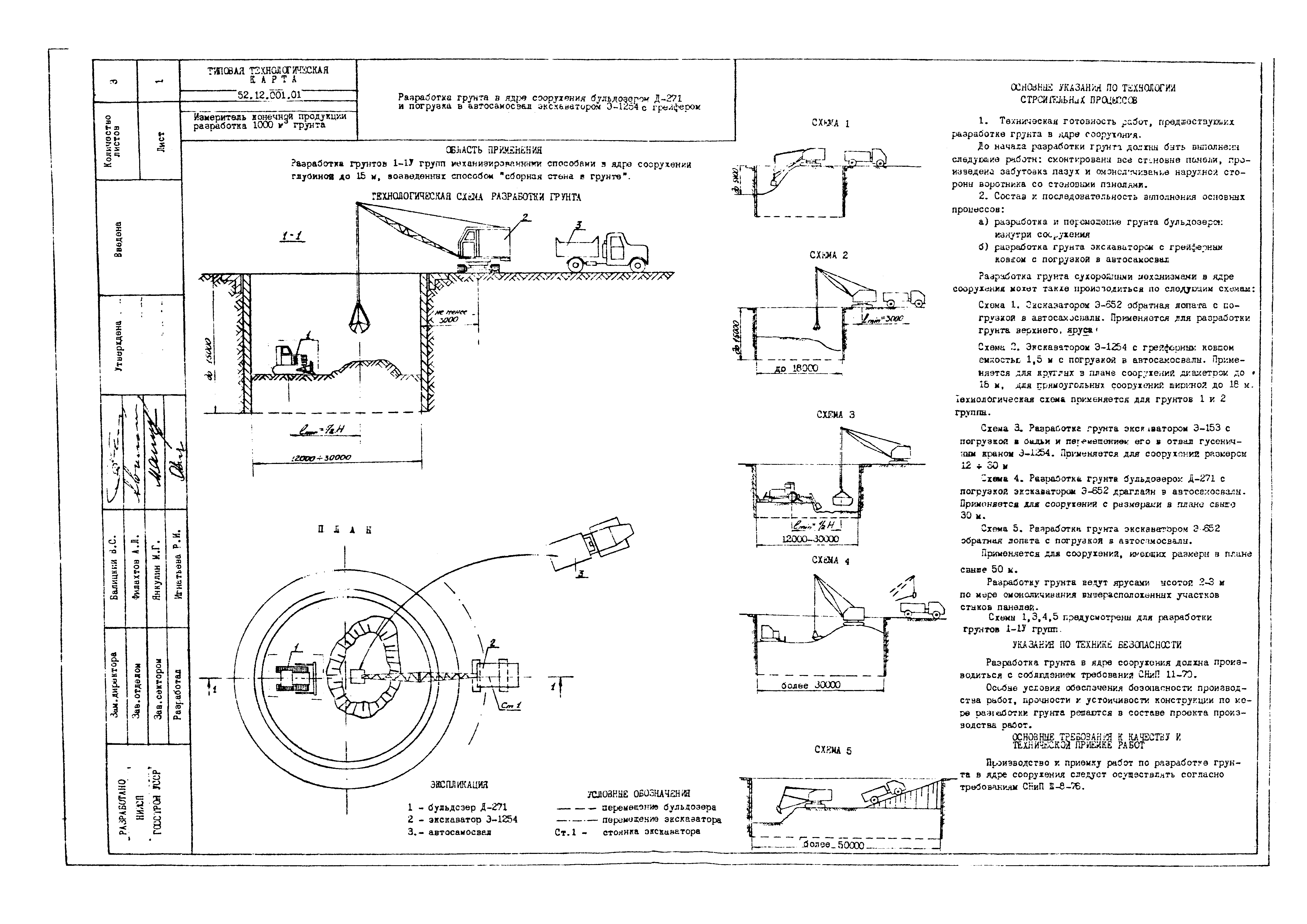
Типовые технологические карты на строительство заглубленных сооружений и противофильтрационных диафрагм методом "стена в грунте"| Статус: | cправочные материалы, мп, тпр | | Название рус.: | Типовые технологические карты на строительство заглубленных сооружений и противофильтрационных диафрагм методом "стена в грунте" | | Дата добавления в базу: | 12.02.2016 | | Дата актуализации: | 05.05.2017 | | Область применения: | Документ применяется при разработке траншей в грунтах I - III категории универсальными экскаваторами с погрузкой грунта в транспортные средства при устройстве воротников траншей сборно-монолитной конструкции для возведения ограждающих стен заглубленных сооружений способом "стена в грунте" | | Оглавление: | Пояснительная записка | | Разработан: | НИИСП Госстроя УССР
| | Утверждён: | НИИСП Госстроя Украины
| | Расположен в: |
|
                                                                           
|