| ||||||||||||||||||||||||
Скачать Типовые проектные решения 409-15-088.86 Альбом I. Пояснительная записка. Технология производства. Архитектурные решения. Конструкции железобетонные. Конструкции металлическиеДата актуализации: 10.08.2017
|
| Обозначение: | Типовые проектные решения 409-15-088.86 |
| Обозначение англ: | 409-15-088.86 |
| Статус: | cправочные материалы, мп, тпр |
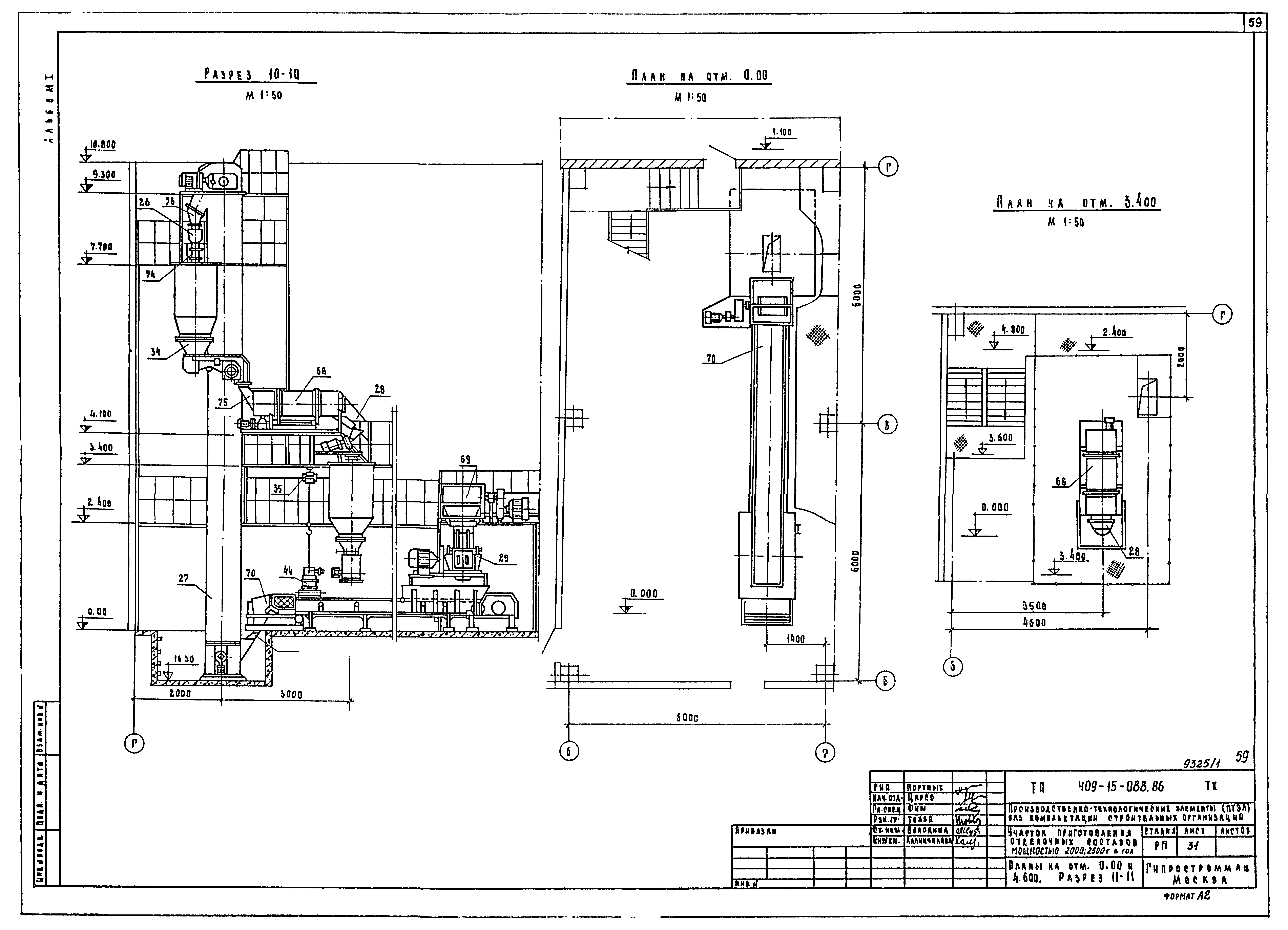
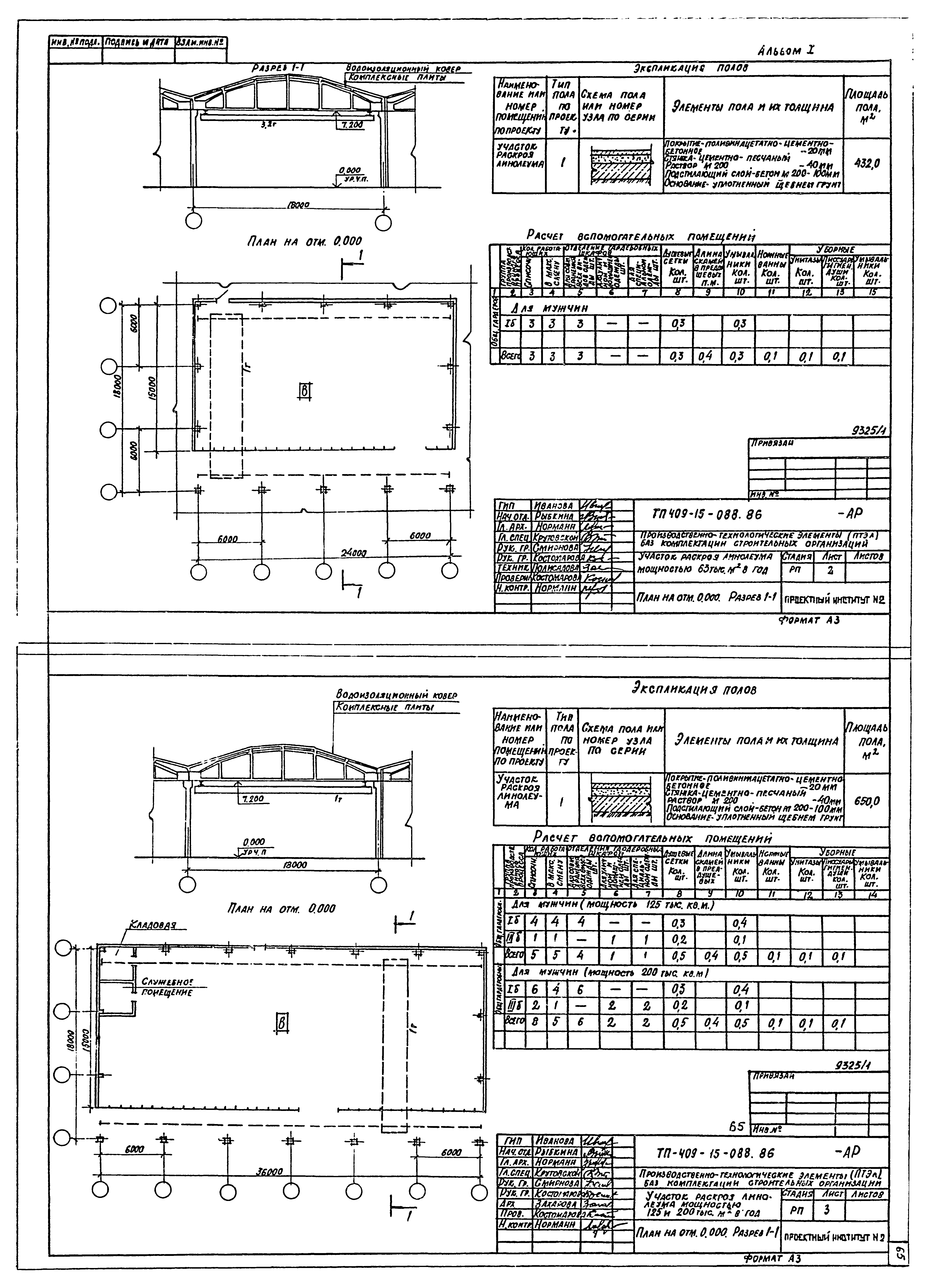
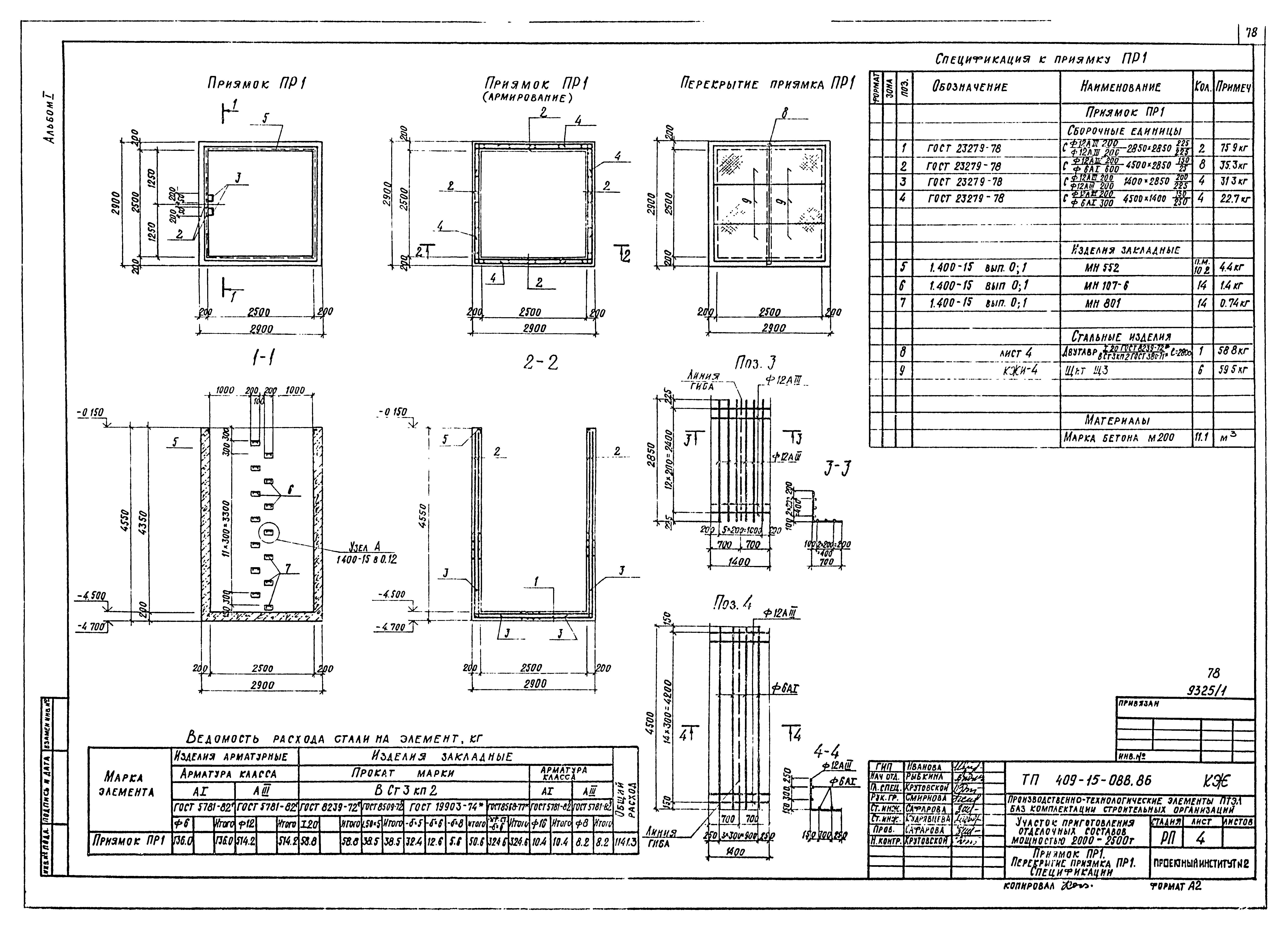
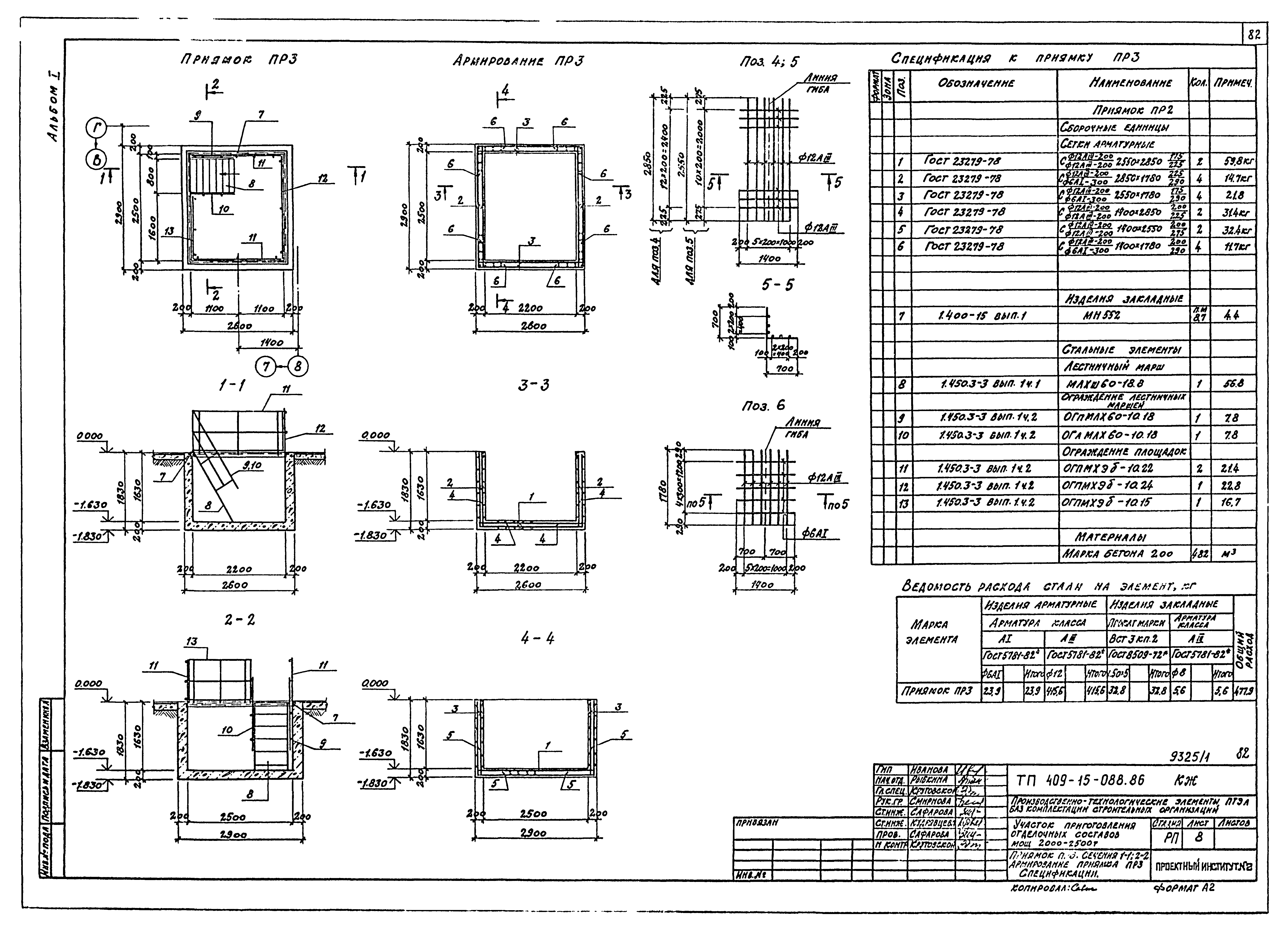
| Название рус.: | Альбом I. Пояснительная записка. Технология производства. Архитектурные решения. Конструкции железобетонные. Конструкции металлические |
| Дата добавления в базу: | 12.02.2016 |
| Дата актуализации: | 05.05.2017 |
| Разработан: | Гипростроммаш |
| Утверждён: | 10.02.1986 Госстрой СССР (АЧ-10) |
| Издан: | ЦИТП Госстроя СССР (CITP, Gosstroy (USSR) 1988 г. ) |
| Расположен в: |





































































































