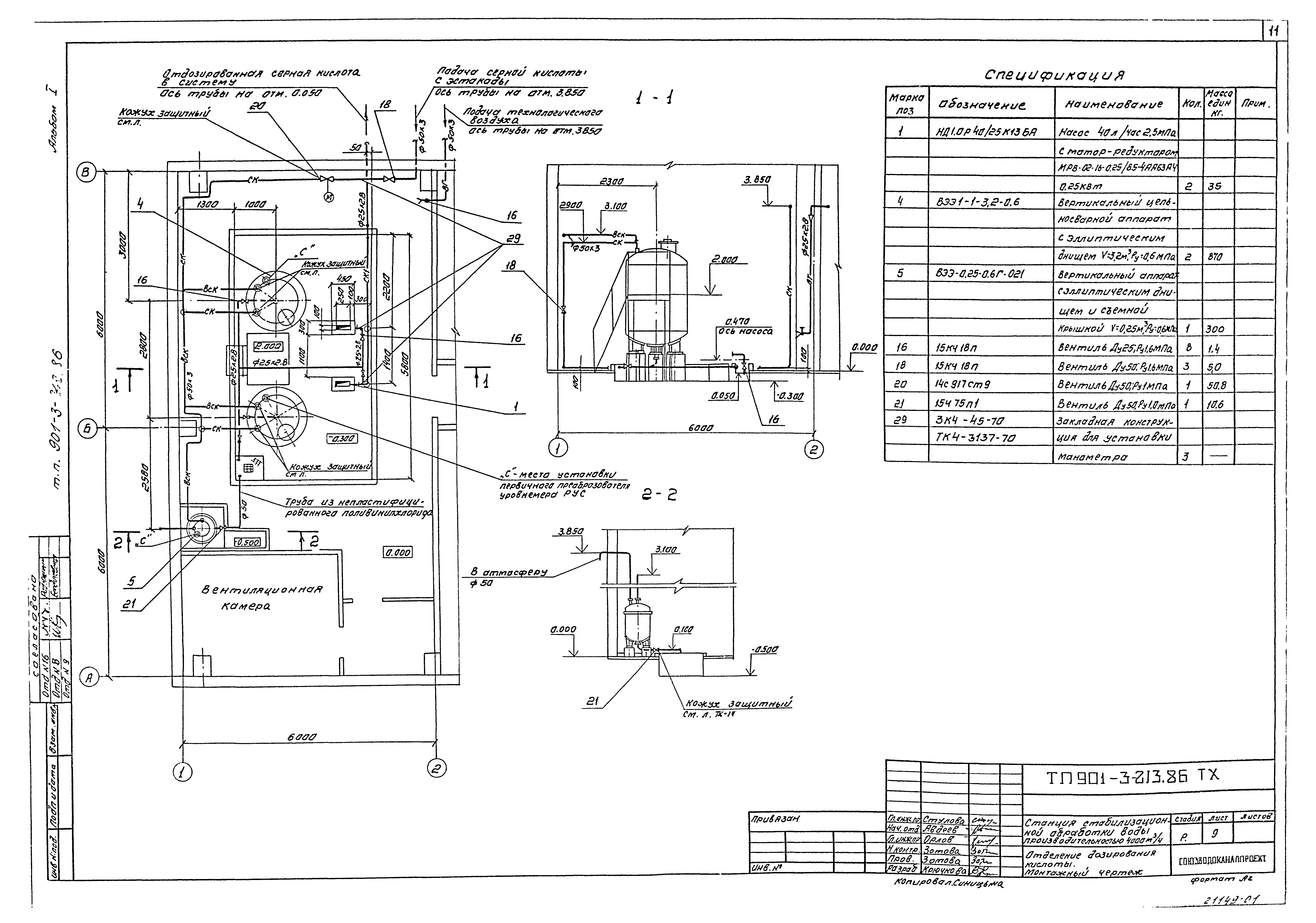
Скачать Типовой проект 901-3-213.86 Альбом I. Технологические чертежи. Водопровод и канализацияДата актуализации: 10.08.2017 Типовой проект 901-3-213.86
Альбом I. Технологические чертежи. Водопровод и канализацияОбозначение: | Типовой проект 901-3-213.86 | Обозначение англ: | 901-3-213.86 | Статус: | отменен | Название рус.: | Альбом I. Технологические чертежи. Водопровод и канализация | Дата добавления в базу: | 12.02.2016 | Дата актуализации: | 05.05.2017 | Дата введения: | 01.01.1994 | Разработан: | Союзводоканалпроект
| Утверждён: | 30.12.1985 Госстрой СССР (19/5-3583)
| Издан: | ЦИТП Госстроя СССР (CITP, Gosstroy (USSR) 1986 г. )
| Расположен в: |
| Заменяет собой: | |
                   
|