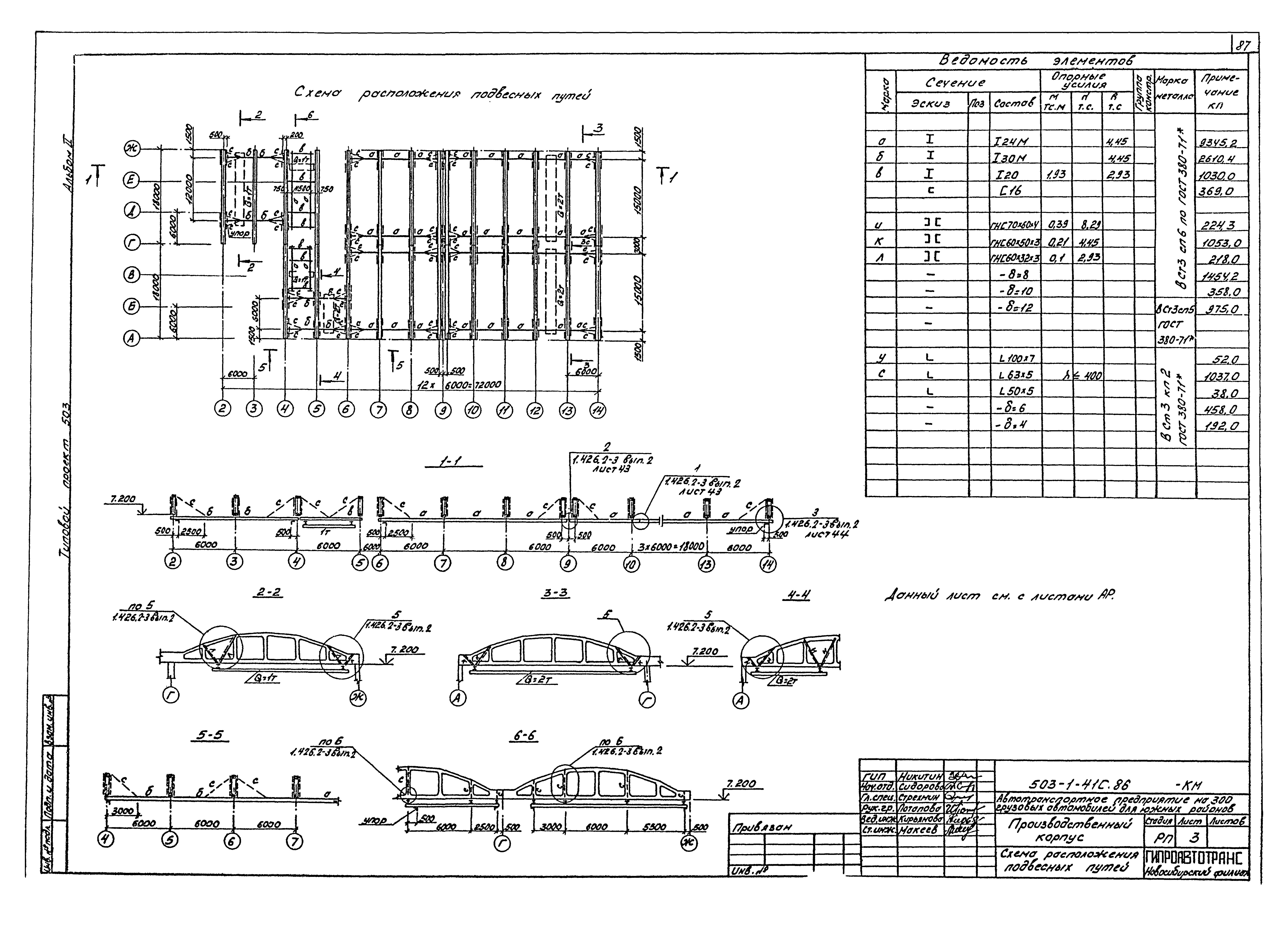
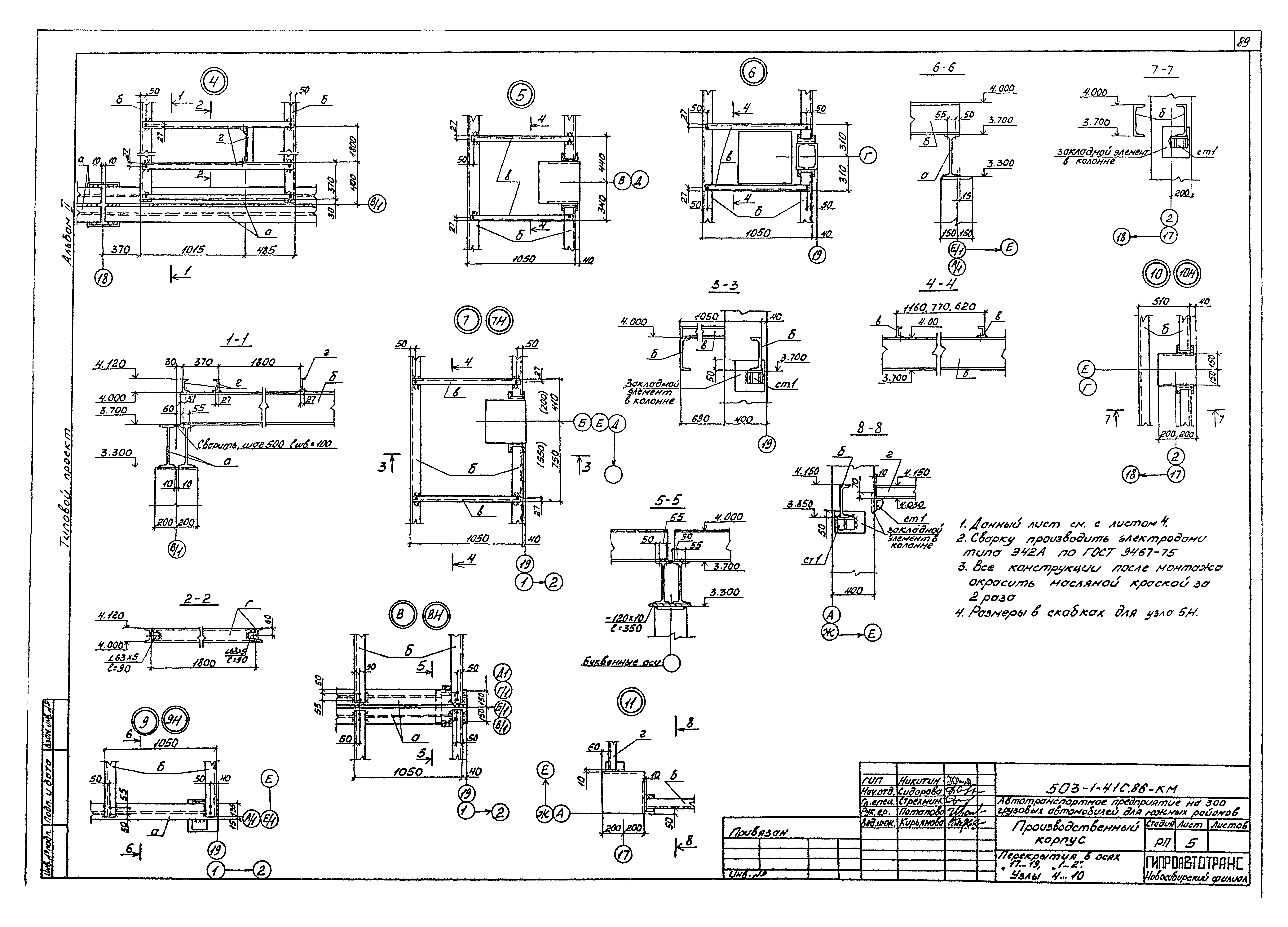
Скачать Типовой проект 503-1-41с.86 Альбом II. Архитектурные решения, конструкции железобетонные, конструкции металлические, отопление и вентиляция, внутренние водопровод и канализация (основное решение - сейсмичность 7 баллов)Дата актуализации: 10.08.2017 Типовой проект 503-1-41с.86
Альбом II. Архитектурные решения, конструкции железобетонные, конструкции металлические, отопление и вентиляция, внутренние водопровод и канализация (основное решение - сейсмичность 7 баллов)Обозначение: | Типовой проект 503-1-41с.86 | Обозначение англ: | 503-1-41с.86 | Статус: | действует | Название рус.: | Альбом II. Архитектурные решения, конструкции железобетонные, конструкции металлические, отопление и вентиляция, внутренние водопровод и канализация (основное решение - сейсмичность 7 баллов) | Дата добавления в базу: | 12.02.2016 | Дата актуализации: | 05.05.2017 | Разработан: | Новосибирский филиал Гипроавтотранса
| Утверждён: | 28.11.1984 Минавтотранс РСФСР (Russian Federation Minavtotrans 79)
| Издан: | ЦИТП Госстроя СССР (CITP, Gosstroy (USSR) 1987 г. )
| Расположен в: |
|
                                                                                                                                      
|