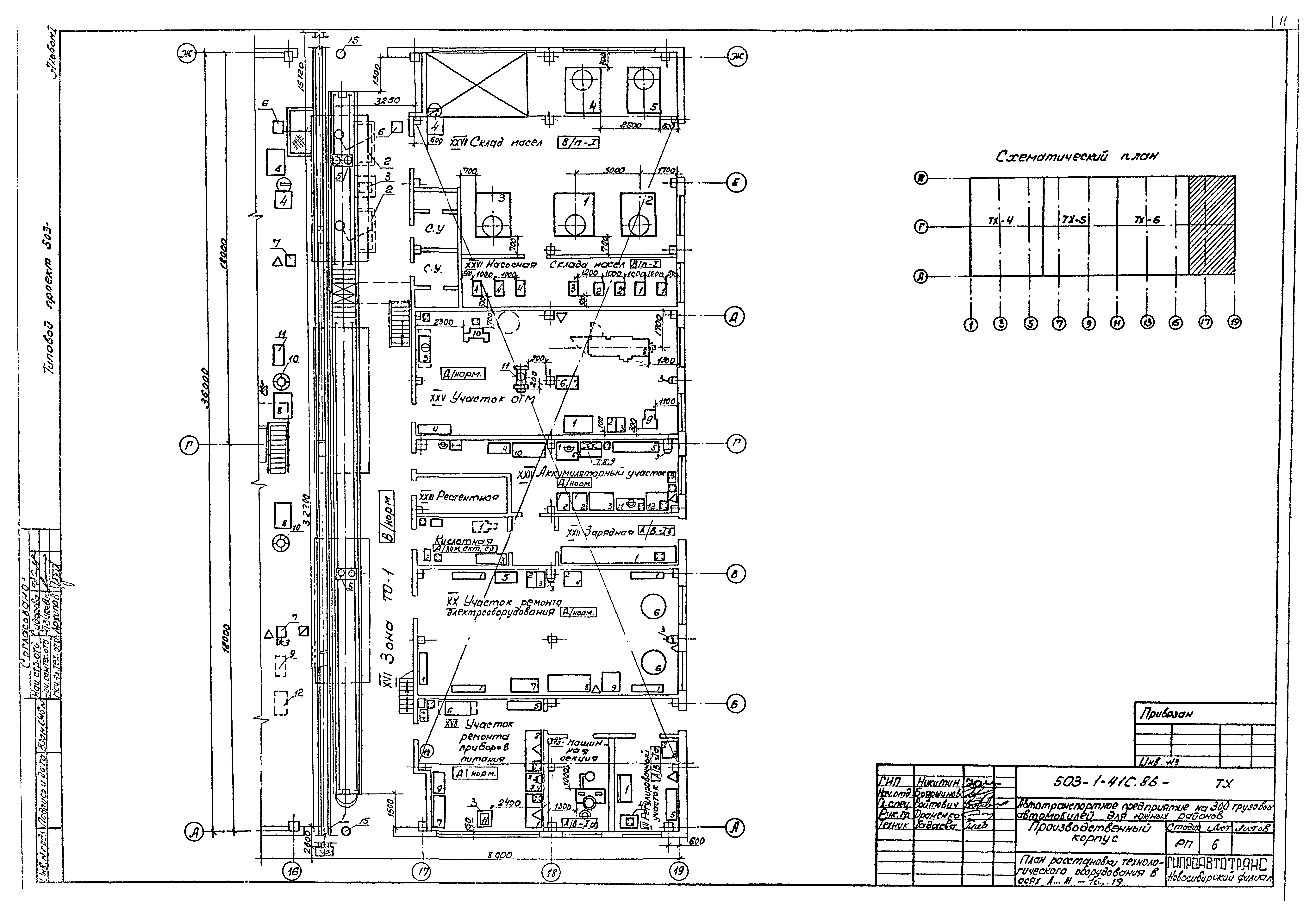
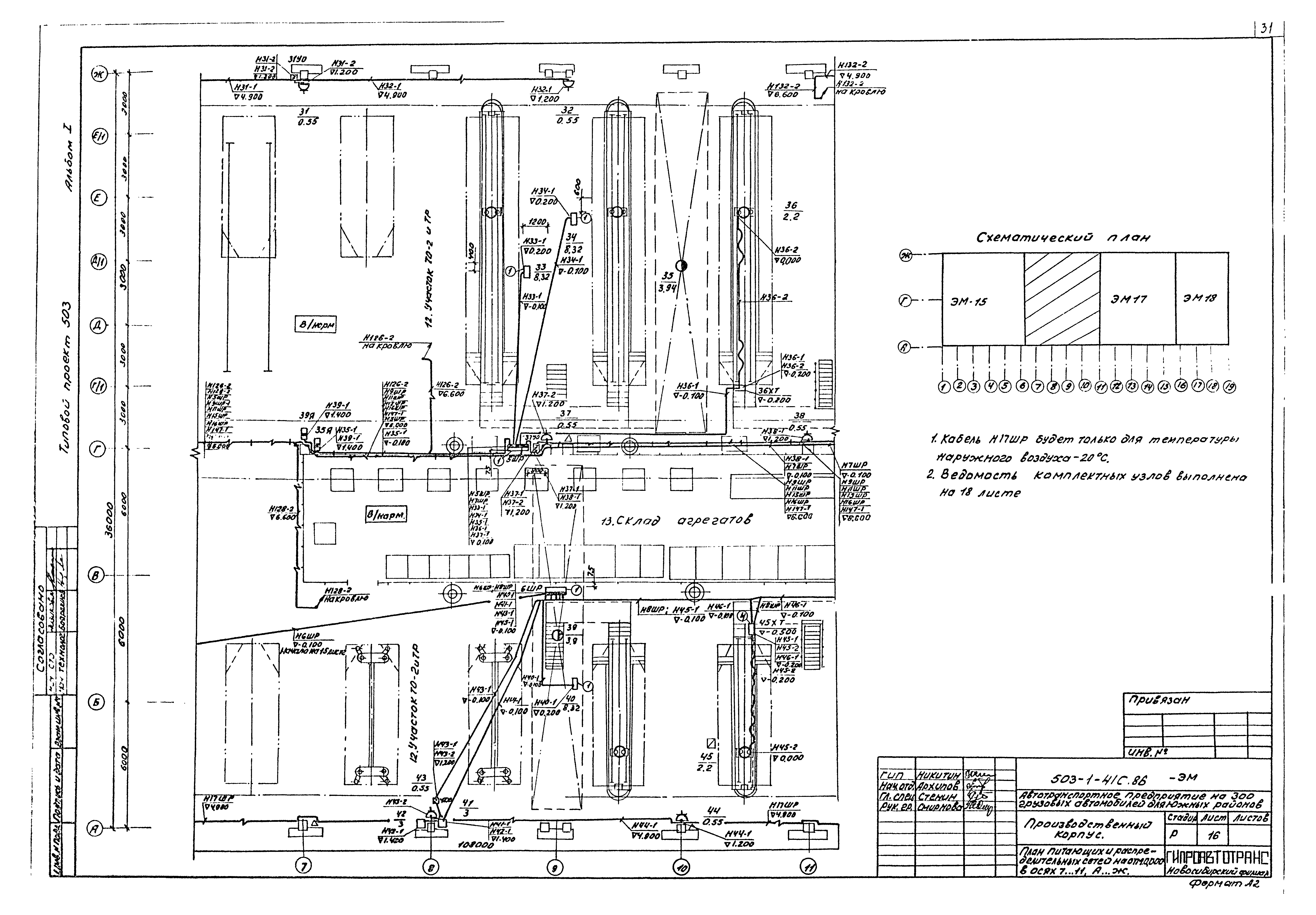
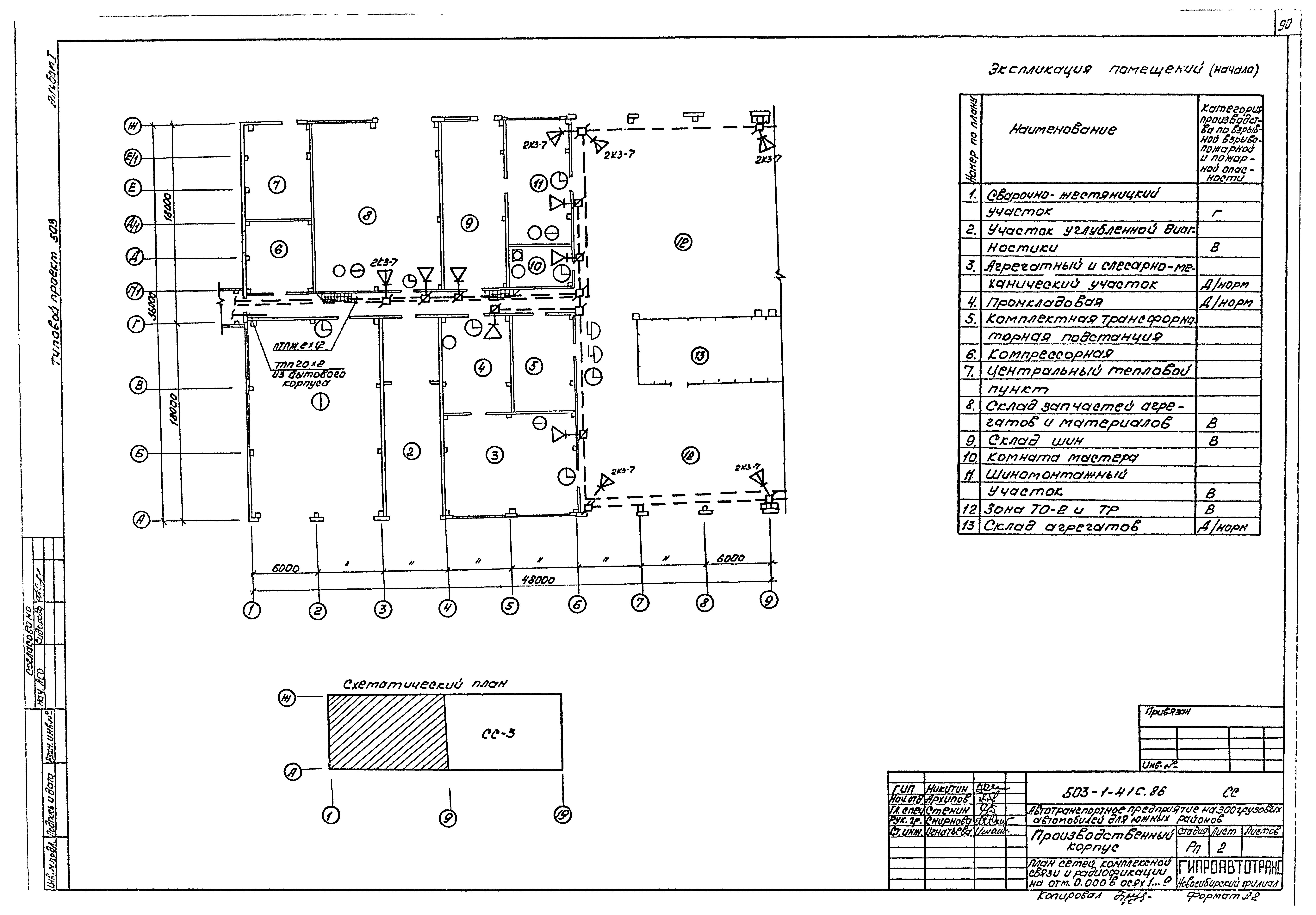
Скачать Типовой проект 503-1-41с.86 Альбом I. Технология производства, силовое электрооборудование, электрическое освещение, автоматизация санитарно-технических систем, связь и сигнализацияДата актуализации: 10.08.2017 Типовой проект 503-1-41с.86
Альбом I. Технология производства, силовое электрооборудование, электрическое освещение, автоматизация санитарно-технических систем, связь и сигнализацияОбозначение: | Типовой проект 503-1-41с.86 | Обозначение англ: | 503-1-41с.86 | Статус: | действует | Название рус.: | Альбом I. Технология производства, силовое электрооборудование, электрическое освещение, автоматизация санитарно-технических систем, связь и сигнализация | Дата добавления в базу: | 12.02.2016 | Дата актуализации: | 05.05.2017 | Разработан: | Новосибирский филиал Гипроавтотранса
| Утверждён: | 28.11.1984 Минавтотранс РСФСР (Russian Federation Minavtotrans 79)
| Издан: | ЦИТП Госстроя СССР (CITP, Gosstroy (USSR) 1987 г. )
| Расположен в: |
|
                                                                                                   
|