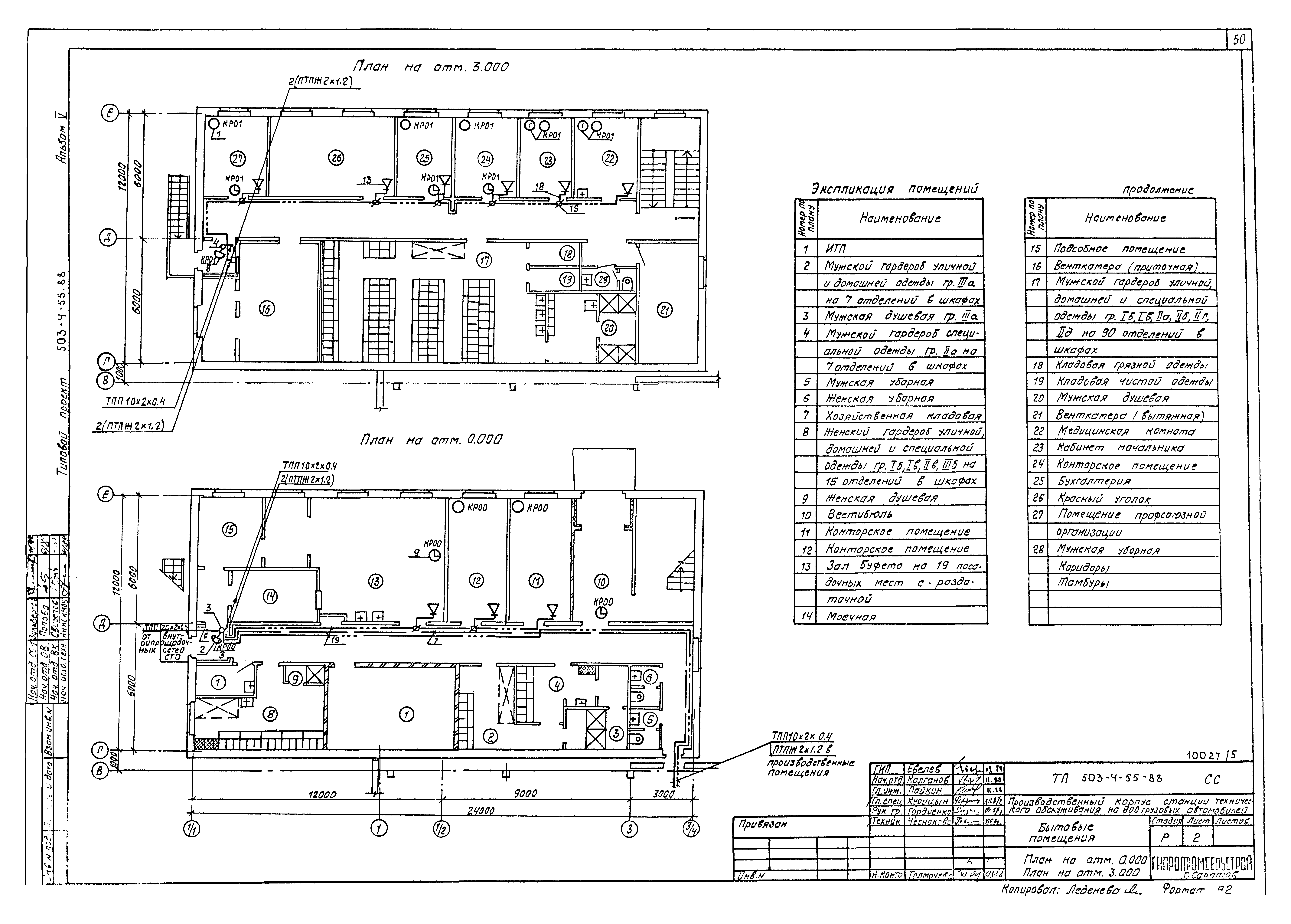
Скачать Типовой проект 503-4-55.88 Альбом V. Бытовые помещения. Архитектурные решения. Конструкции железобетонные. Технология производства. Отопление и вентиляция. Внутренние водопровод и канализация. Силовое электрооборудование. Электрическое освещение. Автоматизация производства. Связь и сигнализация. Пожарно-охранная сигнализация. Чертежи заданий заводам-изготовителям на электрооборудование, КИП и автоматикуДата актуализации: 10.08.2017 Типовой проект 503-4-55.88
Альбом V. Бытовые помещения. Архитектурные решения. Конструкции железобетонные. Технология производства. Отопление и вентиляция. Внутренние водопровод и канализация. Силовое электрооборудование. Электрическое освещение. Автоматизация производства. Связь и сигнализация. Пожарно-охранная сигнализация. Чертежи заданий заводам-изготовителям на электрооборудование, КИП и автоматикуОбозначение: | Типовой проект 503-4-55.88 | Обозначение англ: | 503-4-55.88 | Статус: | действует | Название рус.: | Альбом V. Бытовые помещения. Архитектурные решения. Конструкции железобетонные. Технология производства. Отопление и вентиляция. Внутренние водопровод и канализация. Силовое электрооборудование. Электрическое освещение. Автоматизация производства. Связь и сигнализация. Пожарно-охранная сигнализация. Чертежи заданий заводам-изготовителям на электрооборудование, КИП и автоматику | Дата добавления в базу: | 12.02.2016 | Дата актуализации: | 05.05.2017 | Разработан: | Гипропромсельстрой
| Утверждён: | 01.04.1988 Гипропромсельстрой (120)
| Издан: | ЦИТП Госстроя СССР (CITP, Gosstroy (USSR) 1989 г. )
| Расположен в: |
| Заменяет собой: | |
                                                       
|