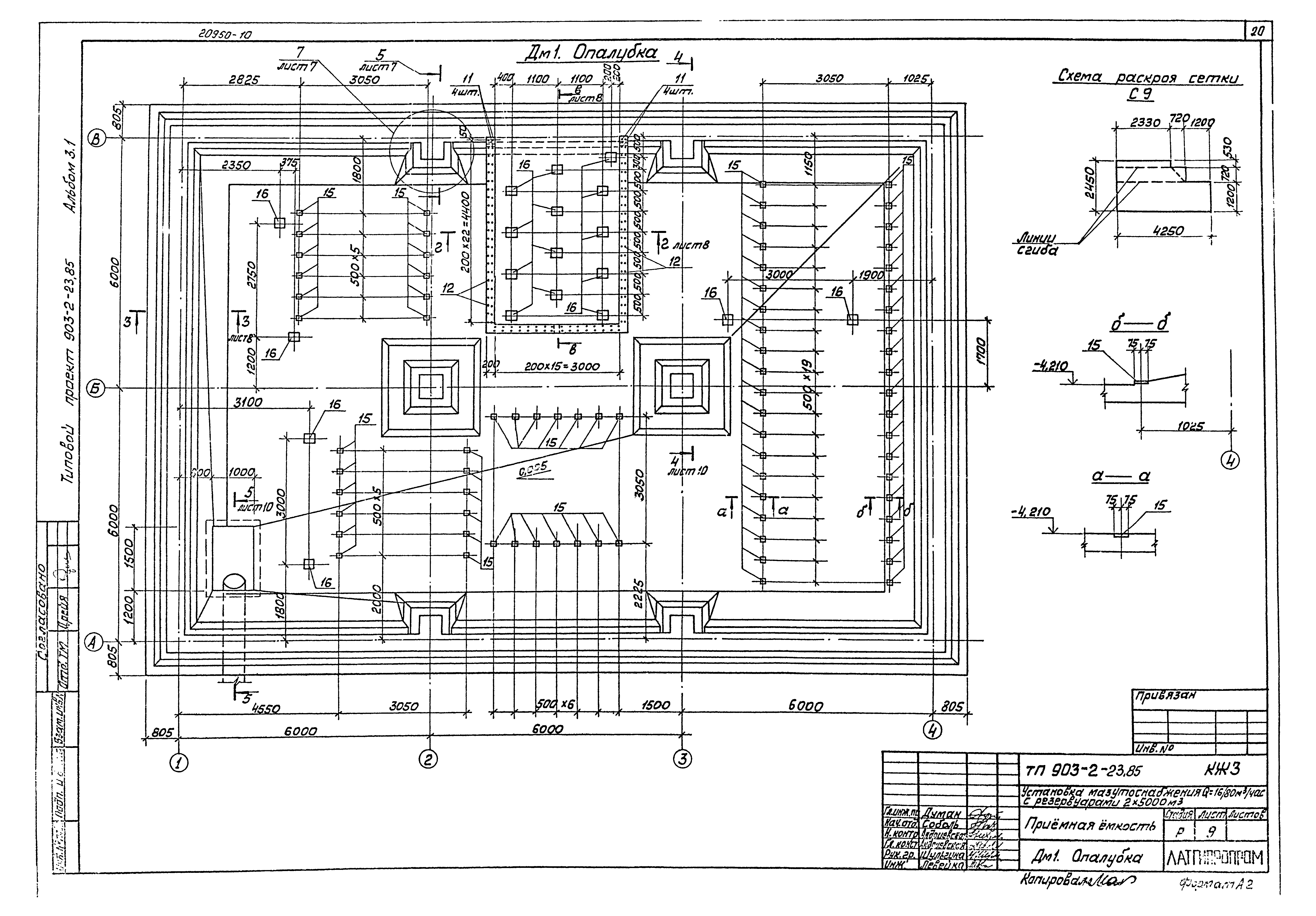
Скачать Типовой проект 903-2-23.85 Альбом 3.1. Приемная емкость. Части: тепломеханическая, архитектурно-строительная, автоматизацияДата актуализации: 10.08.2017 Типовой проект 903-2-23.85
Альбом 3.1. Приемная емкость. Части: тепломеханическая, архитектурно-строительная, автоматизацияОбозначение: | Типовой проект 903-2-23.85 | Обозначение англ: | 903-2-23.85 | Статус: | действует | Название рус.: | Альбом 3.1. Приемная емкость. Части: тепломеханическая, архитектурно-строительная, автоматизация | Дата добавления в базу: | 12.02.2016 | Дата актуализации: | 05.05.2017 | Разработан: | Латгипропром
| Утверждён: | 14.06.1985 Латгипропром (156)
| Издан: | ЦИТП Госстроя СССР (CITP, Gosstroy (USSR) 1986 г. )
| Расположен в: |
| Заменяет собой: | |
                                
|