Информационная система
«Ёшкин Кот»

Скачать базу одним архивом
Скачать обновления
История создания базы
Карта сайта

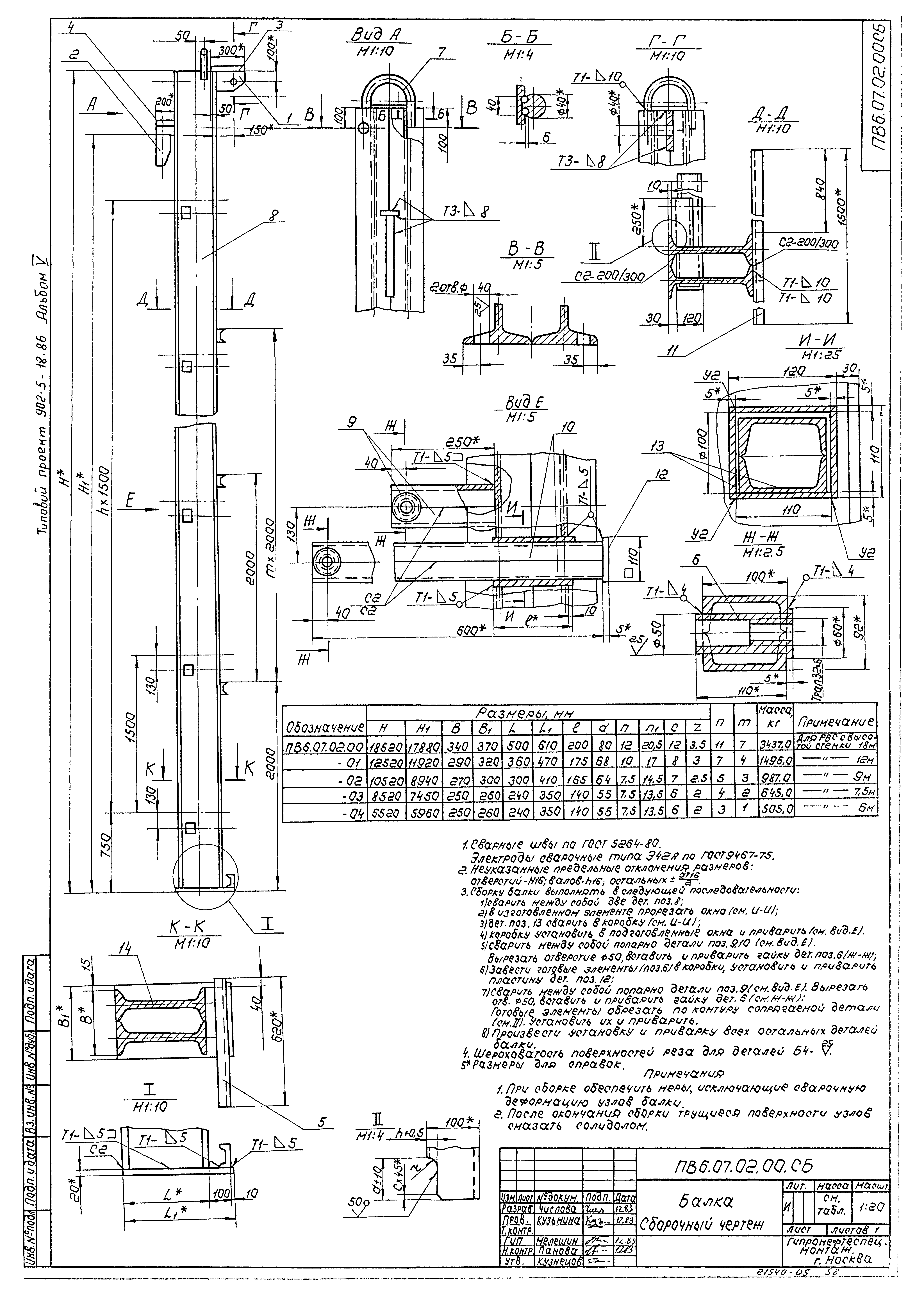
Скачать Типовой проект 902-5-18.86 Альбом V. Проект производства работ. Приспособления для монтажа металлоконструкций. (Основные положения)

Дата актуализации: 10.08.2017

Типовой проект 902-5-18.86

Альбом V. Проект производства работ. Приспособления для монтажа металлоконструкций. (Основные положения)

Обозначение: Типовой проект 902-5-18.86
Обозначение англ: 902-5-18.86
Статус:не определен законодательством
Название рус.:Альбом V. Проект производства работ. Приспособления для монтажа металлоконструкций. (Основные положения)
Дата добавления в базу:12.02.2016
Дата актуализации:05.05.2017
Дата введения:12.03.1986
Разработан: Гипрокоммунводоканал Минжилкомхоза РСФСР
Утверждён:04.03.1986 МЖКХ РСФСР (111)
Расположен в:Техническая документация Строительство Справочные документы Типовые строительные конструкции, изделия и узлы Общероссийский строительный каталог Промышленные предприятия, здания и сооружения Здания и сооружения санитарно-технические Канализация Сооружения для очистки производственных сточных вод Сооружения для обработки осадка
Типовой проект 902-5-18.86Типовой проект 902-5-18.86Типовой проект 902-5-18.86Типовой проект 902-5-18.86Типовой проект 902-5-18.86Типовой проект 902-5-18.86Типовой проект 902-5-18.86Типовой проект 902-5-18.86Типовой проект 902-5-18.86Типовой проект 902-5-18.86Типовой проект 902-5-18.86Типовой проект 902-5-18.86Типовой проект 902-5-18.86Типовой проект 902-5-18.86Типовой проект 902-5-18.86Типовой проект 902-5-18.86Типовой проект 902-5-18.86Типовой проект 902-5-18.86Типовой проект 902-5-18.86Типовой проект 902-5-18.86Типовой проект 902-5-18.86Типовой проект 902-5-18.86Типовой проект 902-5-18.86Типовой проект 902-5-18.86Типовой проект 902-5-18.86Типовой проект 902-5-18.86Типовой проект 902-5-18.86Типовой проект 902-5-18.86Типовой проект 902-5-18.86Типовой проект 902-5-18.86Типовой проект 902-5-18.86Типовой проект 902-5-18.86Типовой проект 902-5-18.86Типовой проект 902-5-18.86Типовой проект 902-5-18.86Типовой проект 902-5-18.86Типовой проект 902-5-18.86Типовой проект 902-5-18.86Типовой проект 902-5-18.86Типовой проект 902-5-18.86Типовой проект 902-5-18.86Типовой проект 902-5-18.86Типовой проект 902-5-18.86Типовой проект 902-5-18.86Типовой проект 902-5-18.86Типовой проект 902-5-18.86Типовой проект 902-5-18.86Типовой проект 902-5-18.86Типовой проект 902-5-18.86Типовой проект 902-5-18.86Типовой проект 902-5-18.86Типовой проект 902-5-18.86Типовой проект 902-5-18.86Типовой проект 902-5-18.86Типовой проект 902-5-18.86Типовой проект 902-5-18.86Типовой проект 902-5-18.86Типовой проект 902-5-18.86Типовой проект 902-5-18.86Типовой проект 902-5-18.86Типовой проект 902-5-18.86Типовой проект 902-5-18.86Типовой проект 902-5-18.86Типовой проект 902-5-18.86Типовой проект 902-5-18.86

© 2013 Ёшкин Кот :-) Карта сайта