Информационная система
«Ёшкин Кот»

Скачать базу одним архивом
Скачать обновления
История создания базы
Карта сайта

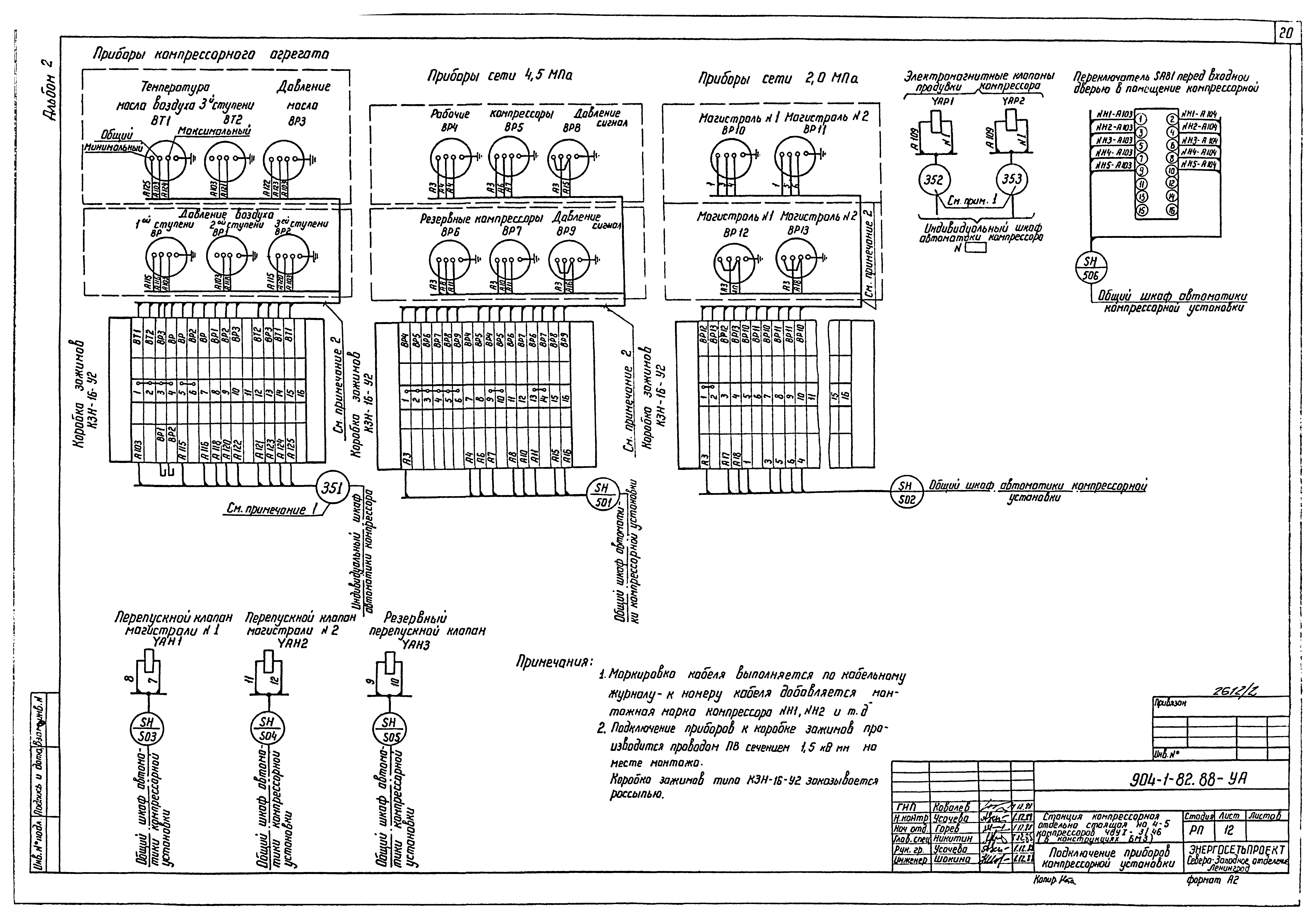
Скачать Типовой проект 904-1-82.88 Альбом II. Электротехнические решения. Управление и автоматизация

Дата актуализации: 10.08.2017

Типовой проект 904-1-82.88

Альбом II. Электротехнические решения. Управление и автоматизация

Обозначение: Типовой проект 904-1-82.88
Обозначение англ: 904-1-82.88
Статус:действует
Название рус.:Альбом II. Электротехнические решения. Управление и автоматизация
Дата добавления в базу:12.02.2016
Дата актуализации:05.05.2017
Разработан: Энергосетьпроект Минэнерго СССР
Утверждён:14.11.1988 Минэнерго СССР (USSR Minenergo 42)
Расположен в:Техническая документация Строительство Справочные документы Типовые строительные конструкции, изделия и узлы Общероссийский строительный каталог Промышленные предприятия, здания и сооружения Здания и сооружения санитарно-технические Воздухоснабжение, вентиляция и кондиционирование воздуха Воздухоснабжение
Заменяет собой:
  • Типовой проект 904-1-46
Типовой проект 904-1-82.88Типовой проект 904-1-82.88Типовой проект 904-1-82.88Типовой проект 904-1-82.88Типовой проект 904-1-82.88Типовой проект 904-1-82.88Типовой проект 904-1-82.88Типовой проект 904-1-82.88Типовой проект 904-1-82.88Типовой проект 904-1-82.88Типовой проект 904-1-82.88Типовой проект 904-1-82.88Типовой проект 904-1-82.88Типовой проект 904-1-82.88Типовой проект 904-1-82.88Типовой проект 904-1-82.88Типовой проект 904-1-82.88Типовой проект 904-1-82.88Типовой проект 904-1-82.88Типовой проект 904-1-82.88Типовой проект 904-1-82.88Типовой проект 904-1-82.88Типовой проект 904-1-82.88Типовой проект 904-1-82.88

© 2013 Ёшкин Кот :-) Карта сайта