Информационная система
«Ёшкин Кот»

Скачать базу одним архивом
Скачать обновления
История создания базы
Карта сайта

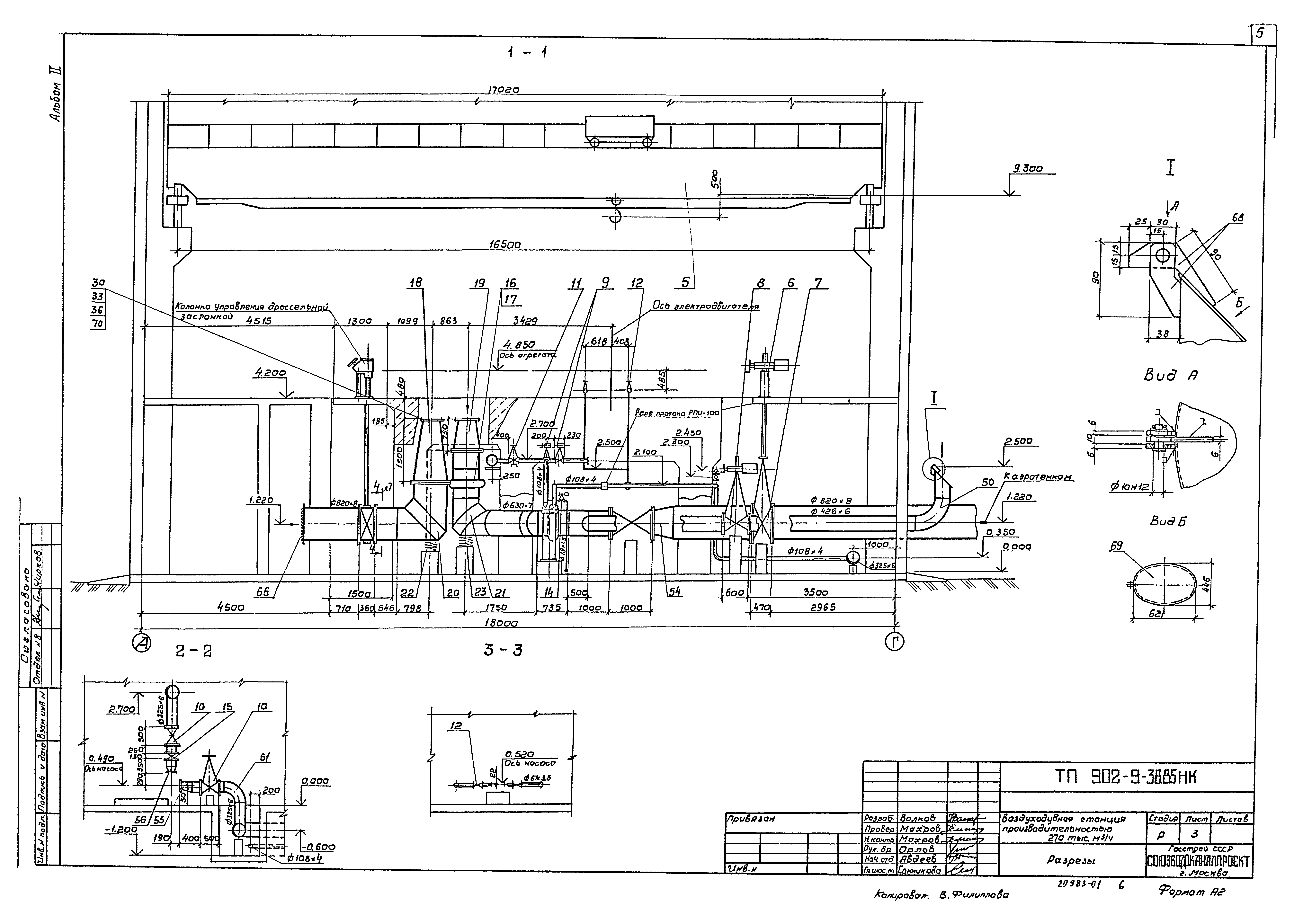
Скачать Типовой проект 902-9-38.85 Альбом II. Технологическая часть

Дата актуализации: 10.08.2017

Типовой проект 902-9-38.85

Альбом II. Технологическая часть

Обозначение: Типовой проект 902-9-38.85
Обозначение англ: 902-9-38.85
Статус:отменен
Название рус.:Альбом II. Технологическая часть
Дата добавления в базу:12.02.2016
Дата актуализации:05.05.2017
Дата введения:01.07.1996
Разработан: Союзводоканалпроект
Утверждён:01.08.1985 Госстрой СССР (А4-31)
Издан: ЦИТП Госстроя СССР (CITP, Gosstroy (USSR) 1986 г. )
Расположен в:Техническая документация Строительство Справочные документы Типовые строительные конструкции, изделия и узлы Общероссийский строительный каталог Промышленные предприятия, здания и сооружения Здания и сооружения санитарно-технические Канализация Сооружения для очистки производственных сточных вод Насосно-воздуходувные станции
Заменяет собой:
  • Типовой проект 902-2-156 «Воздуходувная станция с 8 нагнетателями 750-23-6 производительностью по воздуху 270 тыс. куб. м в час для биологической очистки производственных сточных вод»
Типовой проект 902-9-38.85Типовой проект 902-9-38.85Типовой проект 902-9-38.85Типовой проект 902-9-38.85Типовой проект 902-9-38.85Типовой проект 902-9-38.85Типовой проект 902-9-38.85Типовой проект 902-9-38.85Типовой проект 902-9-38.85Типовой проект 902-9-38.85Типовой проект 902-9-38.85Типовой проект 902-9-38.85Типовой проект 902-9-38.85Типовой проект 902-9-38.85Типовой проект 902-9-38.85

© 2013 Ёшкин Кот :-) Карта сайта