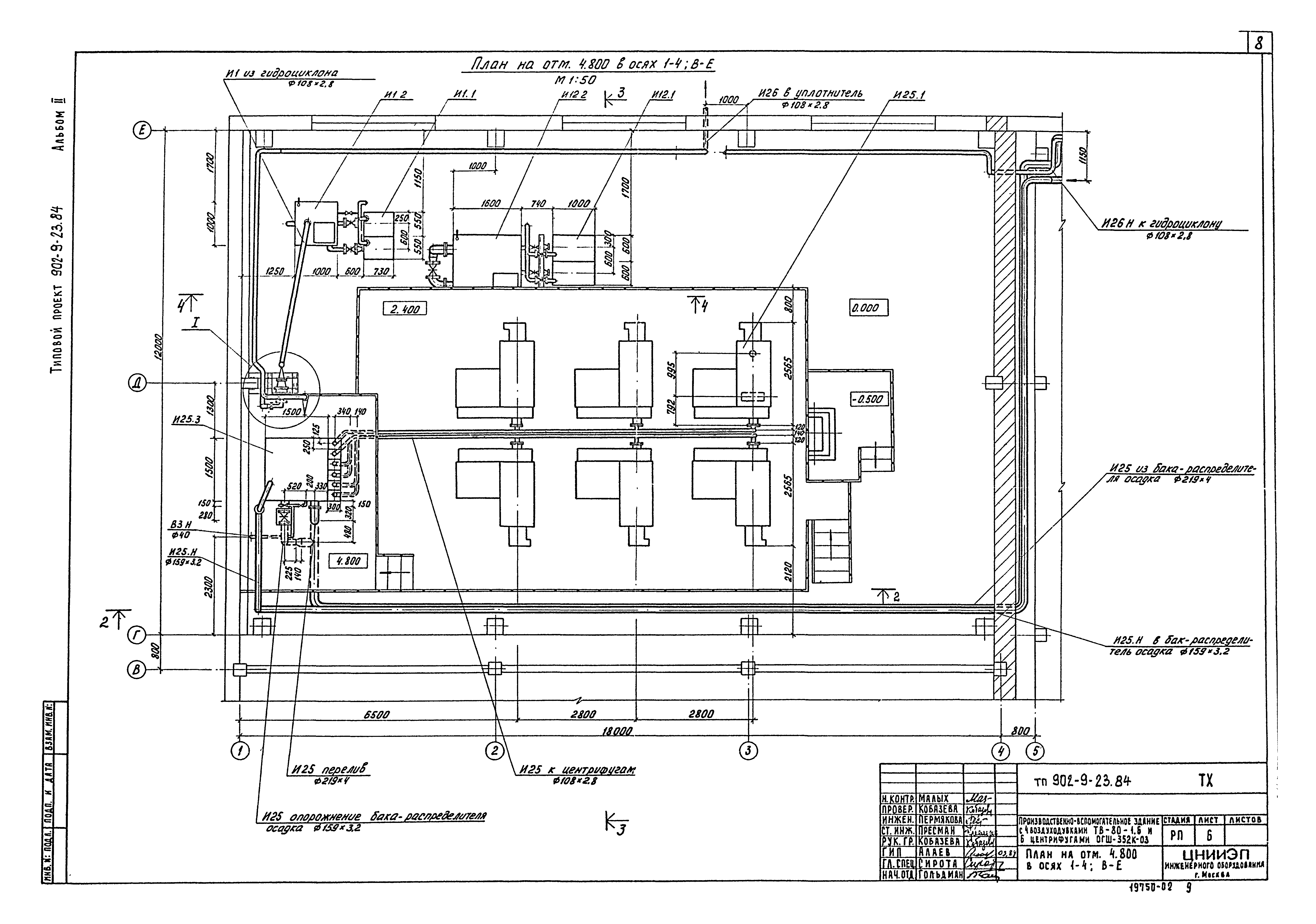
Скачать Типовой проект 902-9-23.84 Альбом II. Технологическая, санитарно-техническая частиДата актуализации: 10.08.2017 Типовой проект 902-9-23.84
Альбом II. Технологическая, санитарно-техническая частиОбозначение: | Типовой проект 902-9-23.84 | Обозначение англ: | 902-9-23.84 | Статус: | не определен законодательством | Название рус.: | Альбом II. Технологическая, санитарно-техническая части | Дата добавления в базу: | 12.02.2016 | Дата актуализации: | 05.05.2017 | Дата введения: | 04.06.1984 | Разработан: | ЦНИИЭП иженерного оборудования
| Утверждён: | 22.08.1983 Госгражданстрой (Gosgrazhdanstroy 245)
| Расположен в: |
|
                                      
|