Информационная система
«Ёшкин Кот»

Скачать базу одним архивом
Скачать обновления
История создания базы
Карта сайта

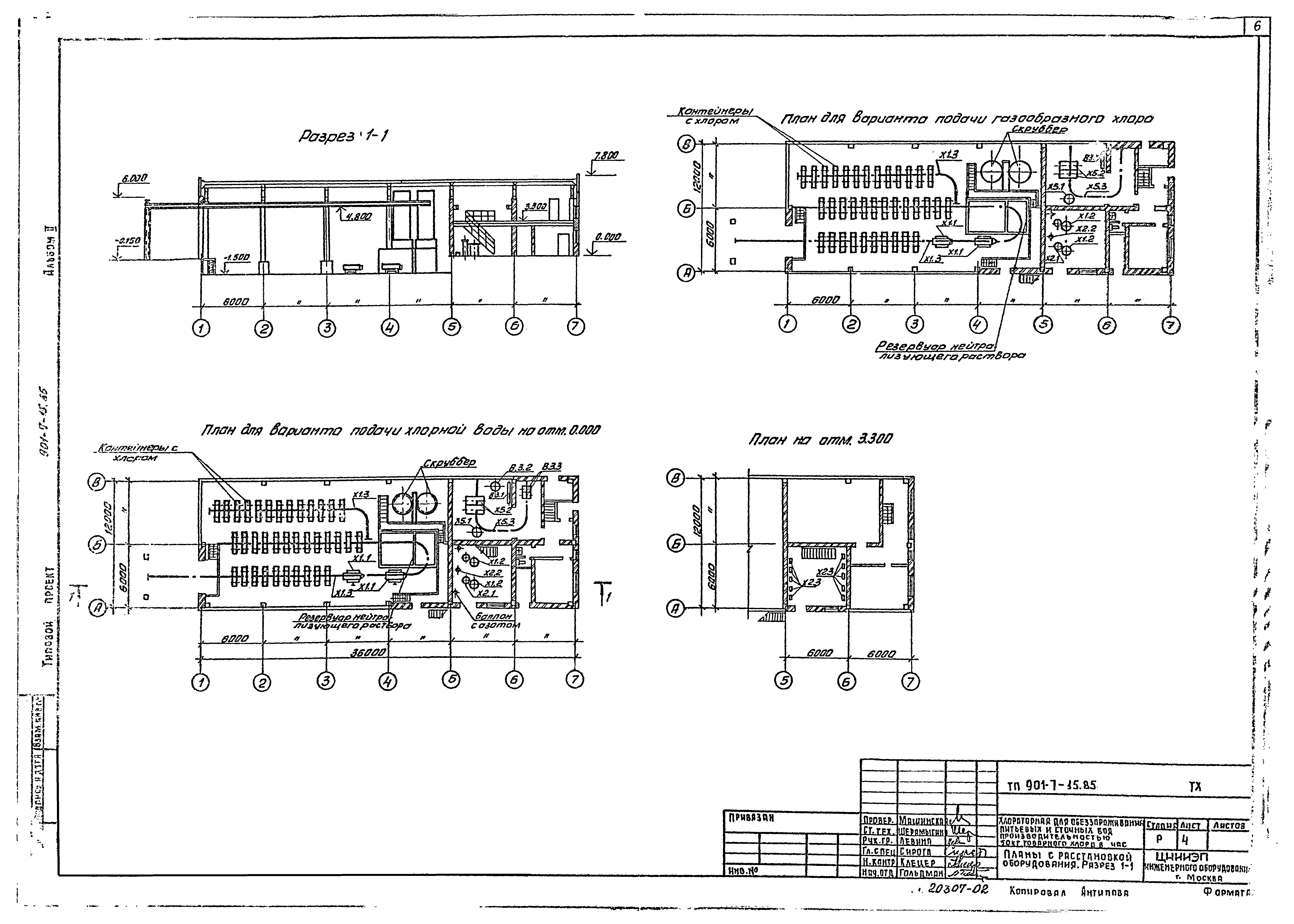
Скачать Типовой проект 901-7-15.85 Альбом II. Технологическая и санитарно-техническая части. Вариант обеззараживания питьевых вод

Дата актуализации: 10.08.2017

Типовой проект 901-7-15.85

Альбом II. Технологическая и санитарно-техническая части. Вариант обеззараживания питьевых вод

Обозначение: Типовой проект 901-7-15.85
Обозначение англ: 901-7-15.85
Статус:заменен
Название рус.:Альбом II. Технологическая и санитарно-техническая части. Вариант обеззараживания питьевых вод
Дата добавления в базу:12.02.2016
Дата актуализации:05.05.2017
Дата введения:01.04.1991
Разработан: ЦНИИЭП инженерного оборудования
Утверждён:12.03.1979 Госгражданстрой (Gosgrazhdanstroy 56)
Издан: ЦИТП Госстроя СССР (CITP, Gosstroy (USSR) 1985 г. )
Расположен в:Техническая документация Строительство Справочные документы Типовые строительные конструкции, изделия и узлы Общероссийский строительный каталог Промышленные предприятия, здания и сооружения Здания и сооружения санитарно-технические Водоснабжение Сооружения и установки по обеззараживанию воды Реагентное хозяйство для станций очистки
Заменяет собой:
Чем заменён:
Типовой проект 901-7-15.85Типовой проект 901-7-15.85Типовой проект 901-7-15.85Типовой проект 901-7-15.85Типовой проект 901-7-15.85Типовой проект 901-7-15.85Типовой проект 901-7-15.85Типовой проект 901-7-15.85Типовой проект 901-7-15.85Типовой проект 901-7-15.85Типовой проект 901-7-15.85Типовой проект 901-7-15.85Типовой проект 901-7-15.85Типовой проект 901-7-15.85Типовой проект 901-7-15.85Типовой проект 901-7-15.85Типовой проект 901-7-15.85Типовой проект 901-7-15.85Типовой проект 901-7-15.85Типовой проект 901-7-15.85Типовой проект 901-7-15.85Типовой проект 901-7-15.85Типовой проект 901-7-15.85Типовой проект 901-7-15.85Типовой проект 901-7-15.85Типовой проект 901-7-15.85

© 2013 Ёшкин Кот :-) Карта сайта