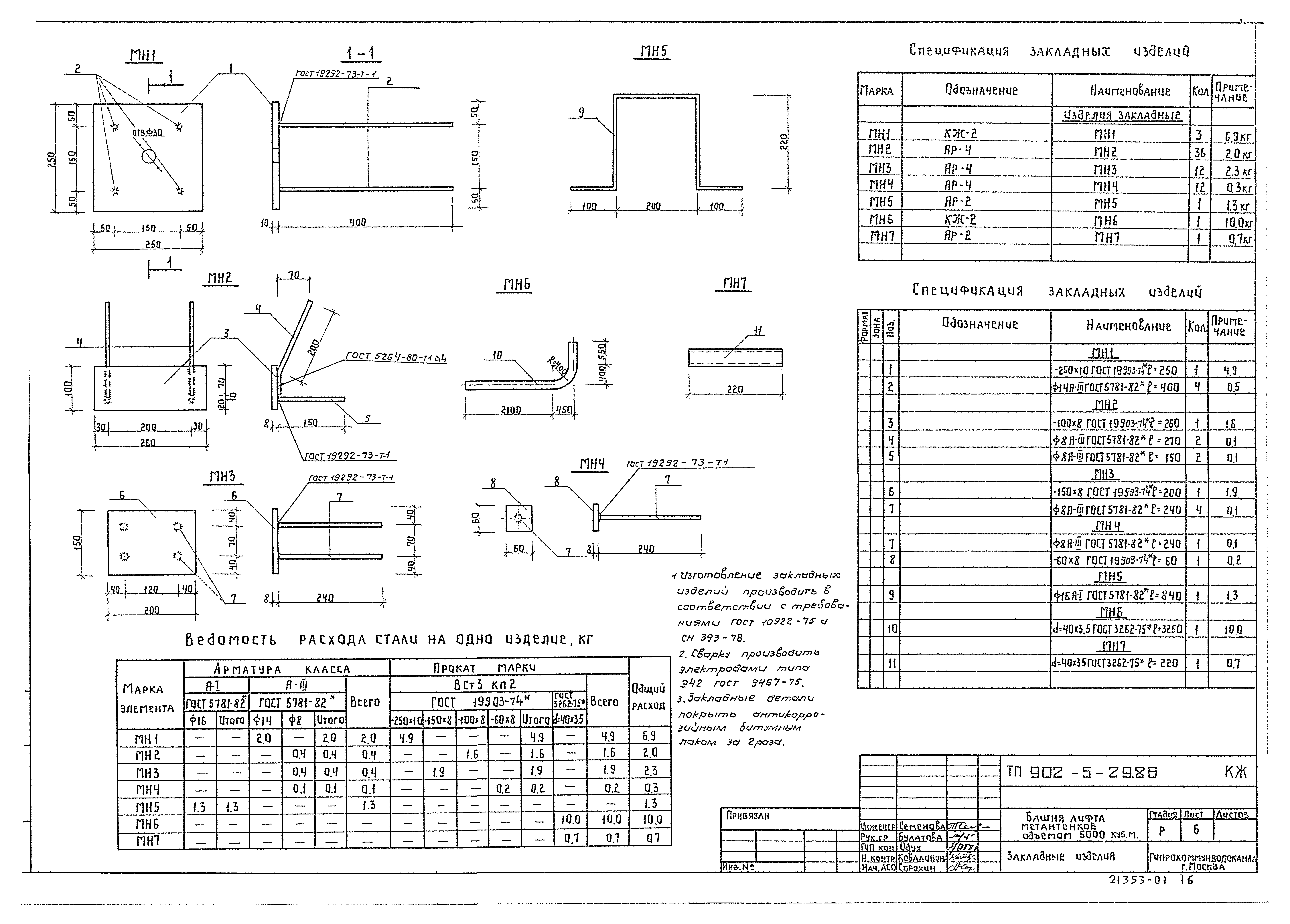
Скачать Типовой проект 902-5-29.86 Альбом I. Архитектурные, конструктивные, санитарно-технические, электротехнические решенияДата актуализации: 10.08.2017 Типовой проект 902-5-29.86
Альбом I. Архитектурные, конструктивные, санитарно-технические, электротехнические решенияОбозначение: | Типовой проект 902-5-29.86 | Обозначение англ: | 902-5-29.86 | Статус: | не определен законодательством | Название рус.: | Альбом I. Архитектурные, конструктивные, санитарно-технические, электротехнические решения | Дата добавления в базу: | 12.02.2016 | Дата актуализации: | 05.05.2017 | Дата введения: | 12.03.1986 | Разработан: | Гипрокоммунводоканал Минжилкомхоза РСФСР
| Утверждён: | 04.03.1986 МЖКХ РСФСР (111)
| Расположен в: |
|
                        
|