Информационная система
«Ёшкин Кот»

Скачать базу одним архивом
Скачать обновления
История создания базы
Карта сайта

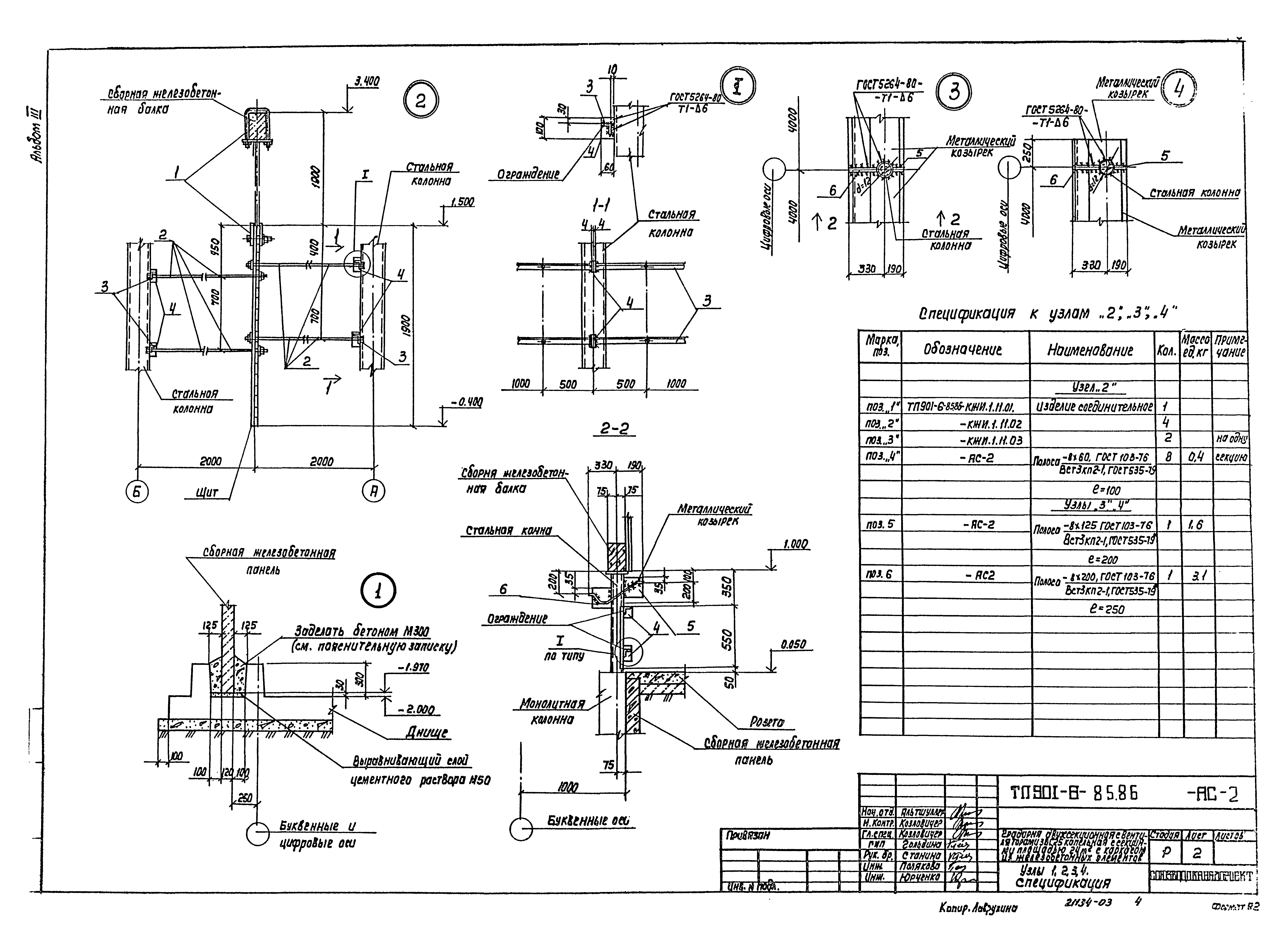
Скачать Типовой проект 901-6-85.86 Альбом III. Строительные узлы

Дата актуализации: 10.08.2017

Типовой проект 901-6-85.86

Альбом III. Строительные узлы

Обозначение: Типовой проект 901-6-85.86
Обозначение англ: 901-6-85.86
Статус:отменен
Название рус.:Альбом III. Строительные узлы
Дата добавления в базу:21.05.2015
Дата актуализации:05.05.2017
Дата введения:01.07.1996
Разработан: Союзводоканалпроект
Утверждён:03.12.1984 Госстрой СССР (37)
Издан: ЦИТП Госстроя СССР (CITP, Gosstroy (USSR) 1986 г. )
Расположен в:Техническая документация Строительство Справочные документы Типовые строительные конструкции, изделия и узлы Общероссийский строительный каталог Промышленные предприятия, здания и сооружения Здания и сооружения санитарно-технические Водоснабжение Градирни
Заменяет собой:
  • Типовой проект 901-6-56
Нормативные ссылки:
Типовой проект 901-6-85.86Типовой проект 901-6-85.86Типовой проект 901-6-85.86Типовой проект 901-6-85.86Типовой проект 901-6-85.86Типовой проект 901-6-85.86Типовой проект 901-6-85.86Типовой проект 901-6-85.86Типовой проект 901-6-85.86Типовой проект 901-6-85.86Типовой проект 901-6-85.86Типовой проект 901-6-85.86Типовой проект 901-6-85.86Типовой проект 901-6-85.86Типовой проект 901-6-85.86Типовой проект 901-6-85.86Типовой проект 901-6-85.86Типовой проект 901-6-85.86Типовой проект 901-6-85.86Типовой проект 901-6-85.86Типовой проект 901-6-85.86Типовой проект 901-6-85.86

© 2013 Ёшкин Кот :-) Карта сайта