| ||||||||||||||||||||||||||||||||||
Скачать ГОСТ Р ИСО 10302-1-2014 Вентиляторы малогабаритные для информационного и телекоммуникационного оборудования. Испытательные коды по шуму и вибрации. Часть 1. Измерение шумаДата актуализации: 10.08.2017
|
| Обозначение: | ГОСТ Р ИСО 10302-1-2014 |
| Обозначение англ: | GOST R ISO 10302-1-2014 |
| Статус: | введен впервые |
| Название рус.: | Вентиляторы малогабаритные для информационного и телекоммуникационного оборудования. Испытательные коды по шуму и вибрации. Часть 1. Измерение шума |
| Название англ.: | Small air-moving devices for information technology and telecommunication equipment. Noise and vibration test codes. Part 1. Noise measurement |
| Дата добавления в базу: | 01.02.2017 |
| Дата актуализации: | 05.05.2017 |
| Дата введения: | 01.12.2015 |
| Область применения: | Стандарт устанавливает методы измерения воздушного шума, излучаемого малыми вентиляторами (вентилятор), используемыми для охлаждения электронного, электрического и механического оборудования, где уровень звуковой мощности вентилятора имеет существенное значение. |
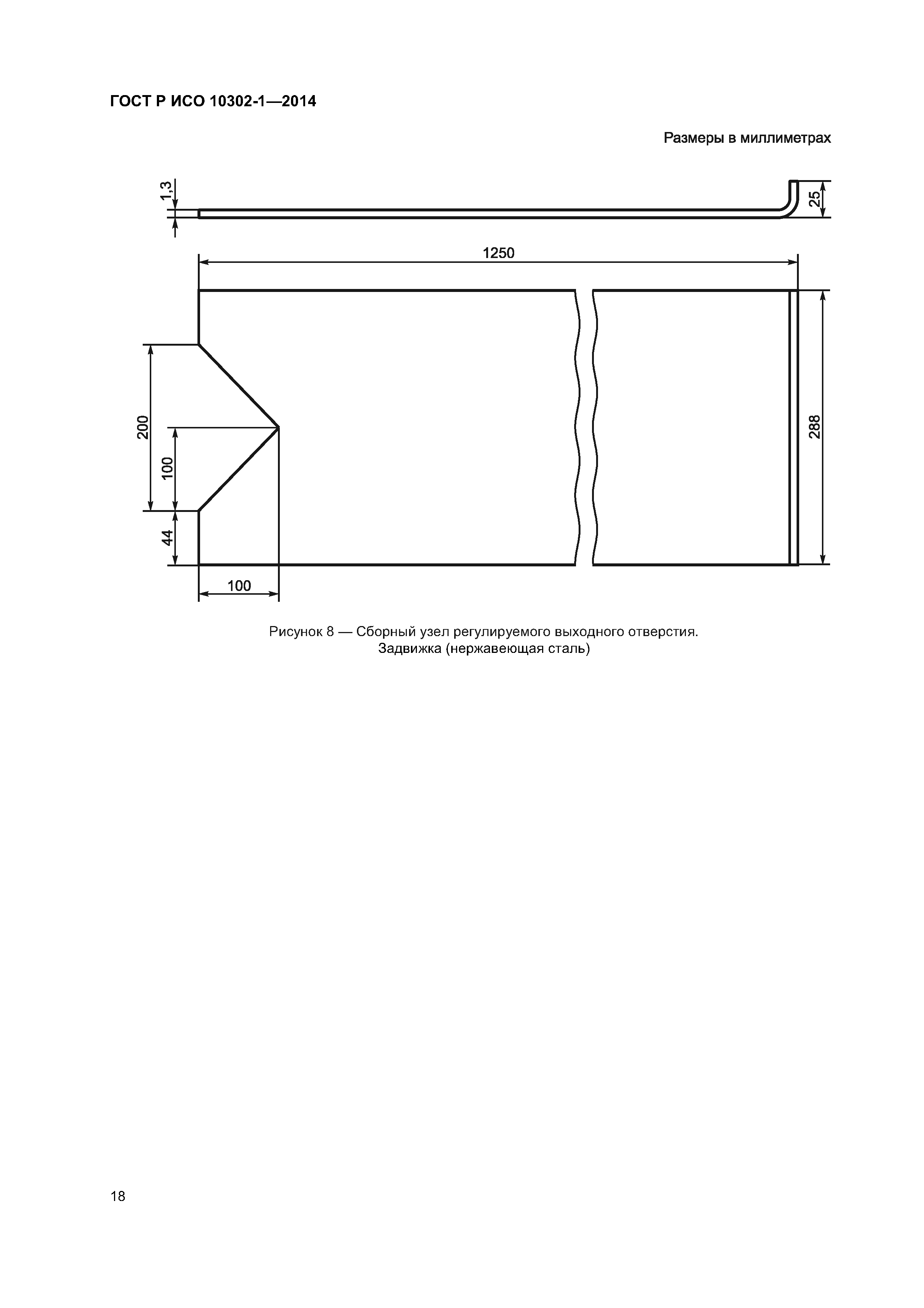
| Оглавление: | 1 Область применения 2 Нормативные ссылки 3 Термины и определения 4 Ограничения при измерениях 5 Требования к конструкции и характеристикам испытательной камеры 6 Установка испытательного оборудования 7 Режим работы вентилятора 8 Методика измерения 9 Неопределенность измерения 10 Регистрируемые данные 11 Протокол испытаний Приложение А (обязательное) Метод измерения PQ-кривой малого вентилятора Приложение В (справочное) Влияние плотности воздуха Приложение С (справочное) Формы протоколов испытаний Приложение D (справочное) Заявление шумовых характеристик вентилятора Приложение Е (справочное) Руководство по применению информации для расчета неопределенности измерения Приложение ДА (справочное) Сведения о соответствии ссылочных международных стандартов национальным стандартам Российской Федерации Библиография |
| Разработан: | АО НИЦ КД |
| Утверждён: | 11.11.2014 Федеральное агентство по техническому регулированию и метрологии (1550-ст) |
| Издан: | Стандартинформ (2016 г. ) |
| Расположен в: | |
| Нормативные ссылки: |
|





































