Скачать Типовой проект 901-3-235.87 Альбом II. Микрофильтры. Архитектурные решения. Конструкции железобетонные и металлические. Технологические, санитарно-техническая, электротехническая части и автоматизацияДата актуализации: 10.08.2017 Типовой проект 901-3-235.87
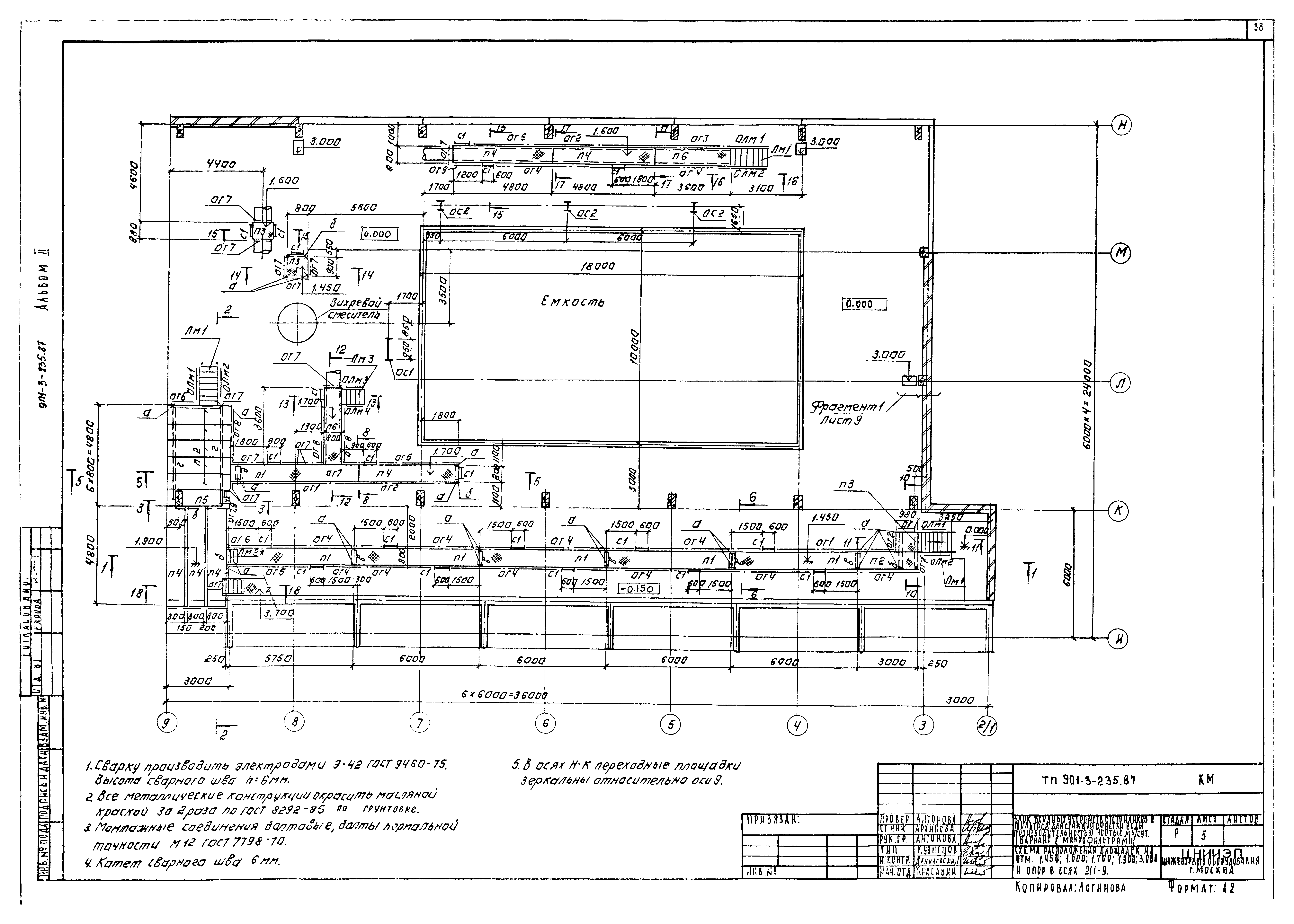
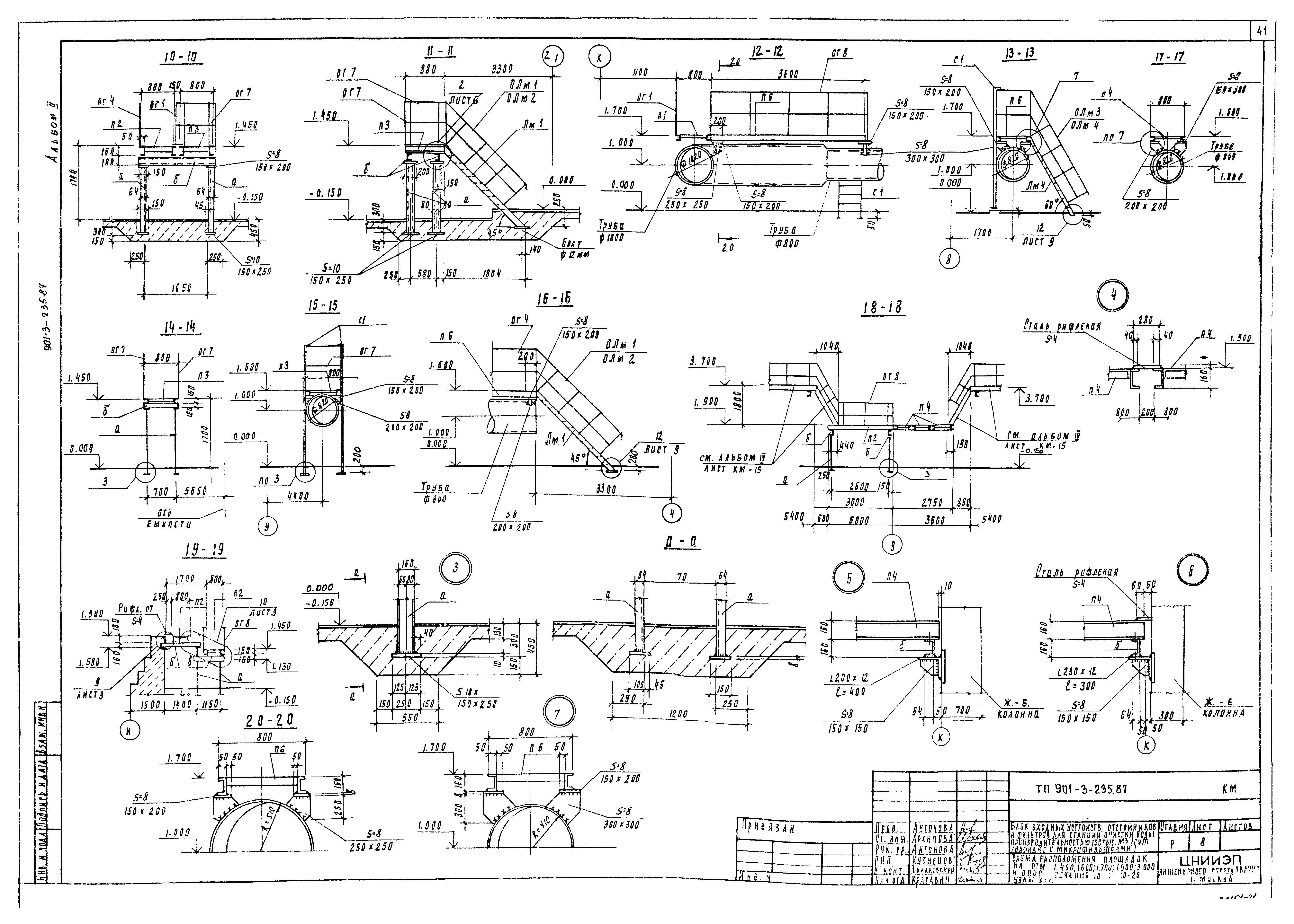
Альбом II. Микрофильтры. Архитектурные решения. Конструкции железобетонные и металлические. Технологические, санитарно-техническая, электротехническая части и автоматизацияОбозначение: | Типовой проект 901-3-235.87 | Обозначение англ: | 901-3-235.87 | Статус: | не определен законодательством | Название рус.: | Альбом II. Микрофильтры. Архитектурные решения. Конструкции железобетонные и металлические. Технологические, санитарно-техническая, электротехническая части и автоматизация | Дата добавления в базу: | 21.05.2015 | Дата актуализации: | 05.05.2017 | Дата введения: | 13.02.1985 | Разработан: | ЦНИИЭП инженерного оборудования
| Утверждён: | 13.02.1985 Госгражданстрой (Gosgrazhdanstroy 43)
| Расположен в: |
| Заменяет собой: | |
                                                                             
|