Скачать Типовой проект 805-4-21.89 Альбом 2. Отопление, вентиляция и кондиционирование воздуха. Воздухоснабжение. Холодоснабжение. Внутренние водопровод и канализацияДата актуализации: 10.08.2017 Типовой проект 805-4-21.89
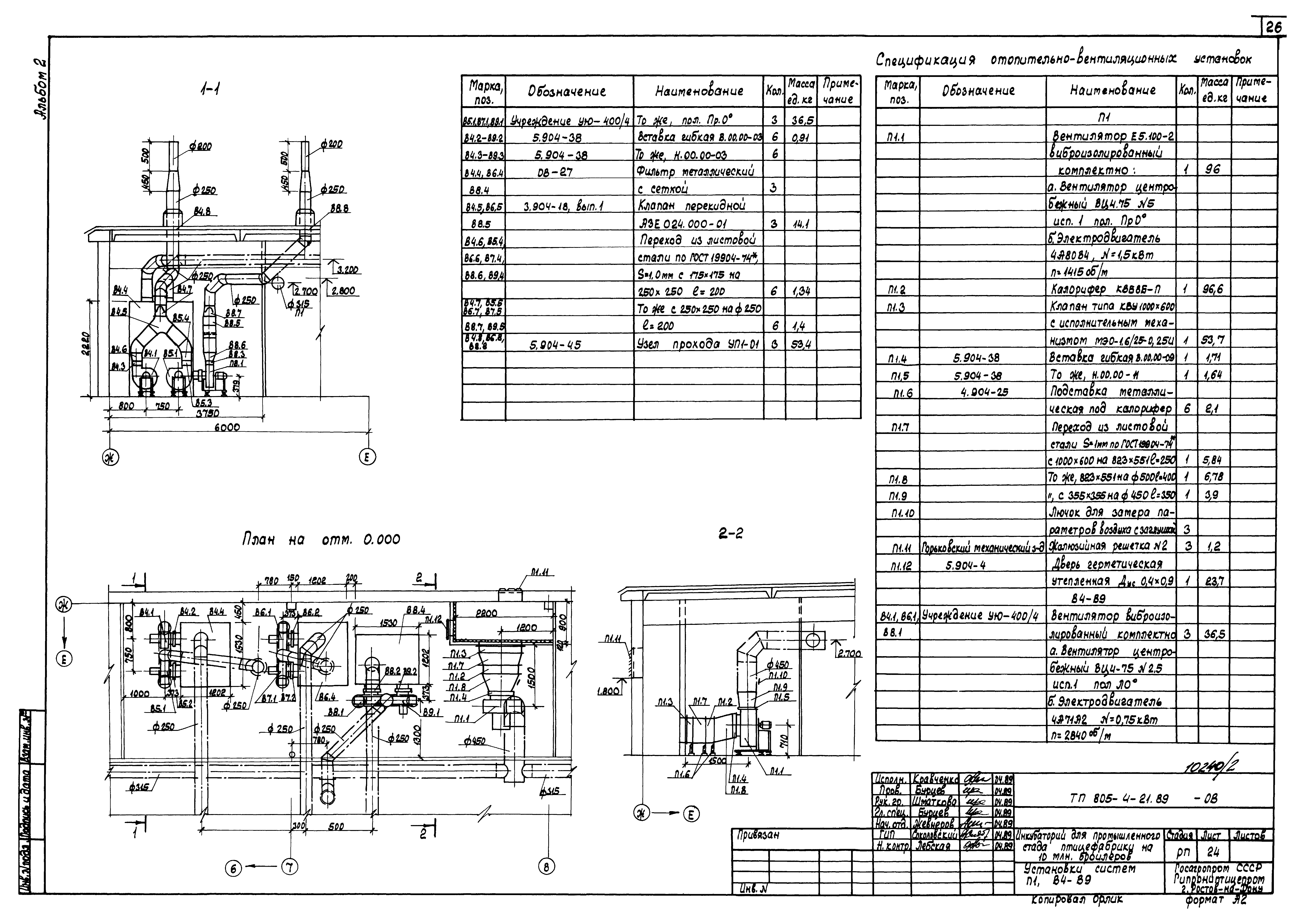
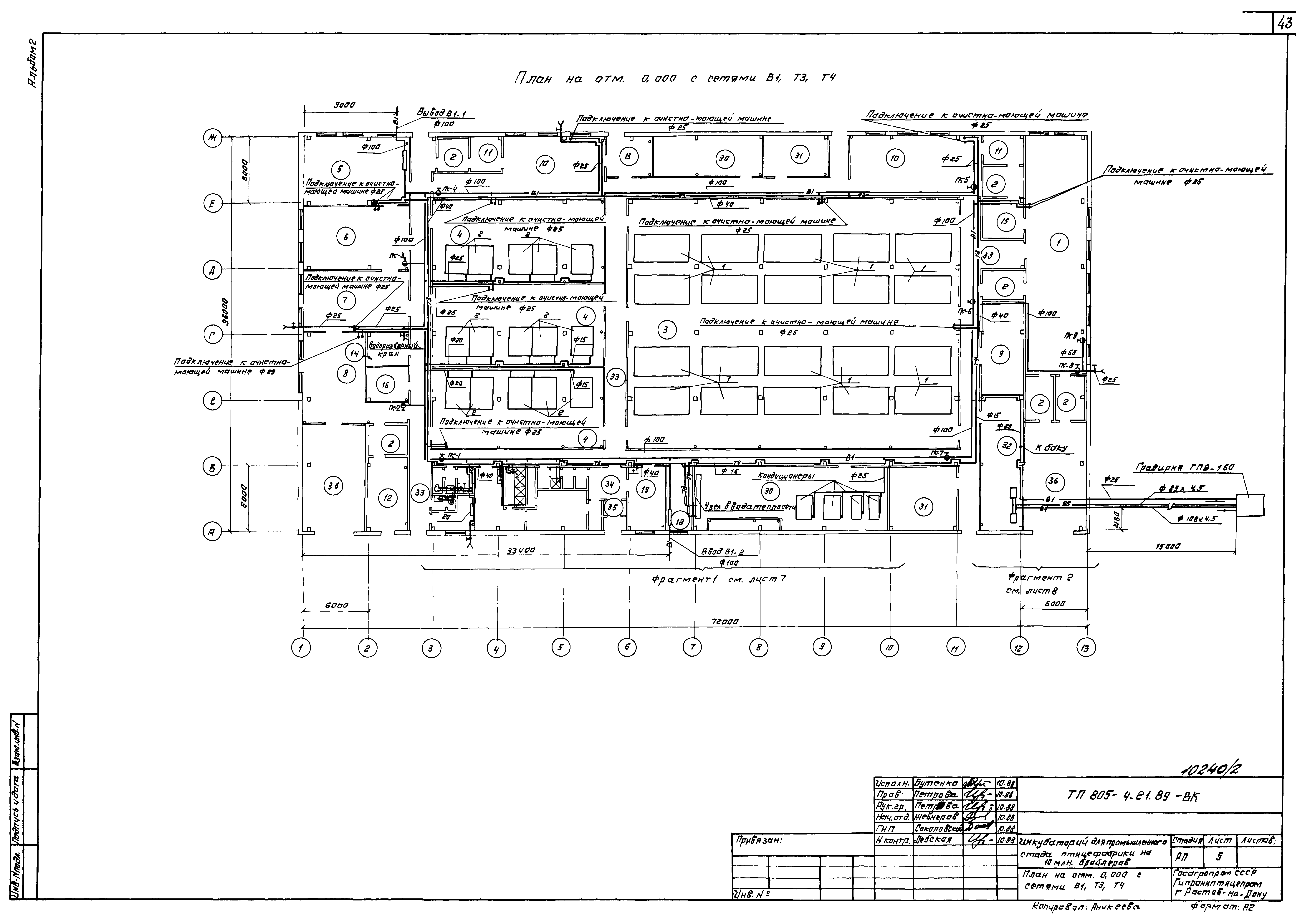
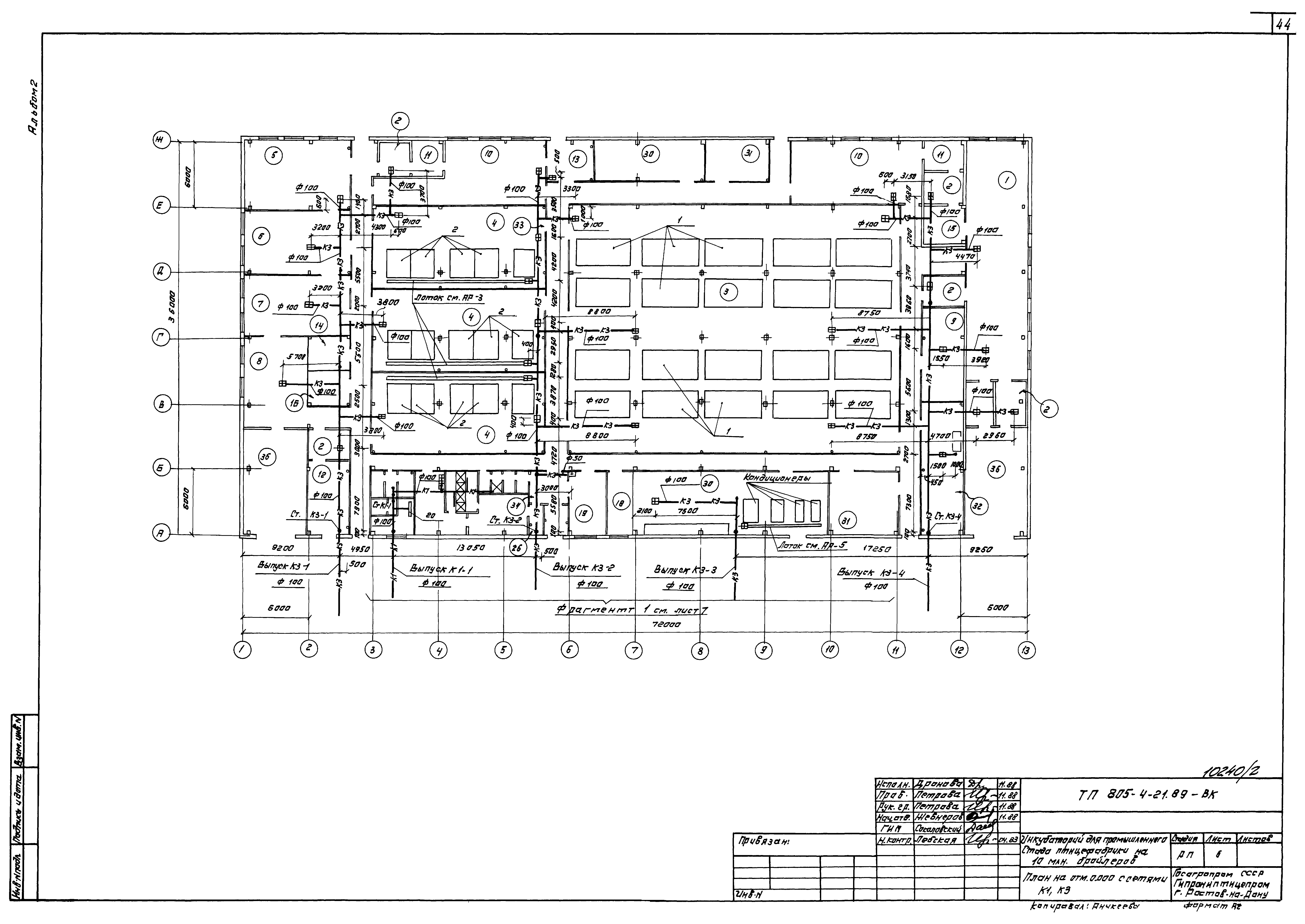
Альбом 2. Отопление, вентиляция и кондиционирование воздуха. Воздухоснабжение. Холодоснабжение. Внутренние водопровод и канализацияОбозначение: | Типовой проект 805-4-21.89 | Обозначение англ: | 805-4-21.89 | Статус: | не определен законодательством | Название рус.: | Альбом 2. Отопление, вентиляция и кондиционирование воздуха. Воздухоснабжение. Холодоснабжение. Внутренние водопровод и канализация | Дата добавления в базу: | 21.05.2015 | Дата актуализации: | 05.05.2017 | Дата введения: | 09.08.1989 | Разработан: | Гипрониптицепром
| Утверждён: | 09.08.1989 Гипрониптицепром (15-ТП)
| Издан: | ЦИТП Госстроя СССР (CITP, Gosstroy (USSR) 1989 г. )
| Расположен в: |
|
                                               
|