Информационная система
«Ёшкин Кот»

Скачать базу одним архивом
Скачать обновления
История создания базы
Карта сайта

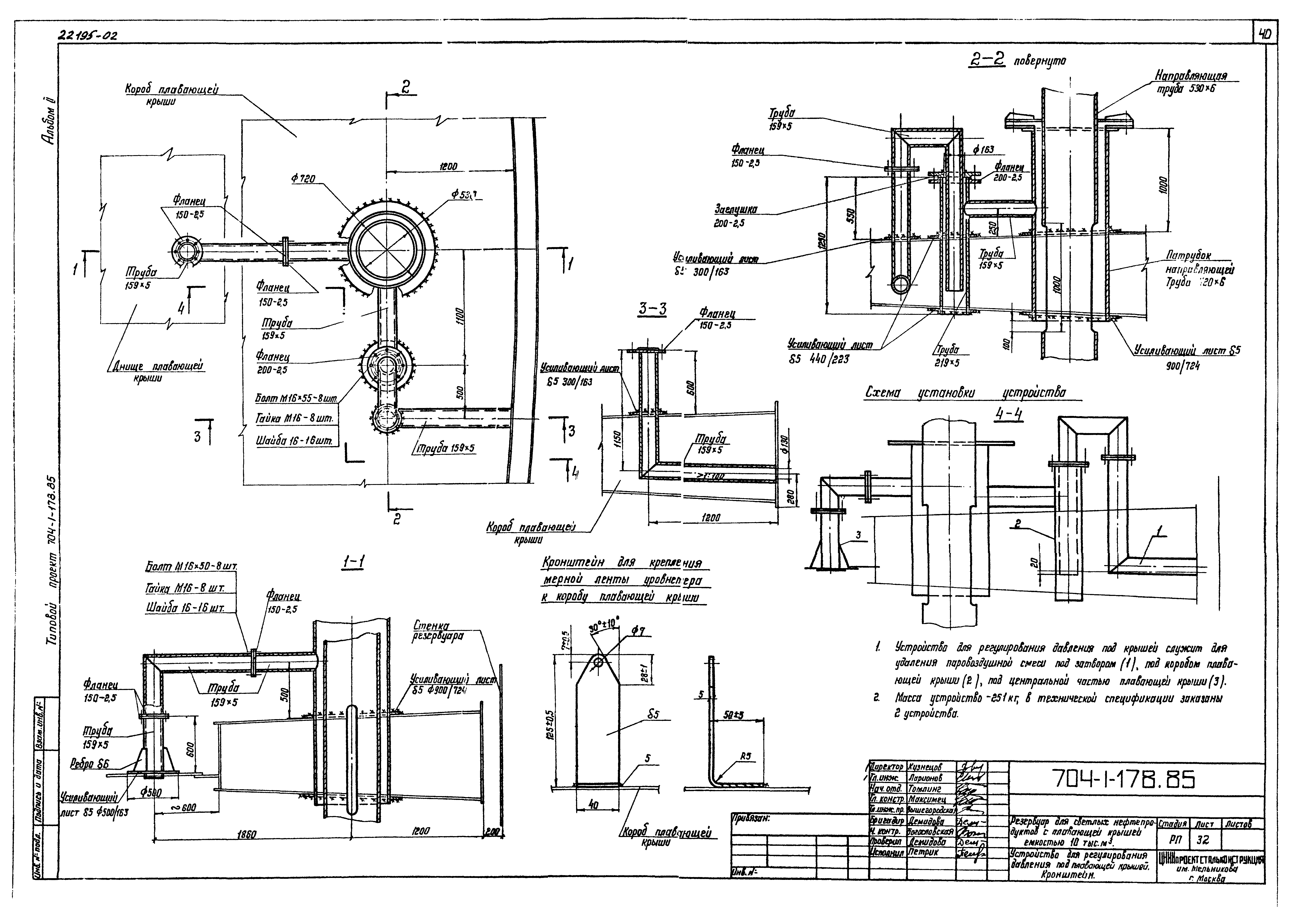
Скачать Типовой проект 704-1-178.85 Альбом II. Конструкции металлические. Резервуар

Дата актуализации: 10.08.2017

Типовой проект 704-1-178.85

Альбом II. Конструкции металлические. Резервуар

Обозначение: Типовой проект 704-1-178.85
Обозначение англ: 704-1-178.85
Статус:действует
Название рус.:Альбом II. Конструкции металлические. Резервуар
Дата добавления в базу:21.05.2015
Дата актуализации:05.05.2017
Разработан: ЦНИИпроектстальконструкция
Утверждён:07.06.1984 Миннефтехимпром СССР (USSR Minneftekhimprom 20/1077-б)
Расположен в:Техническая документация Строительство Справочные документы Типовые строительные конструкции, изделия и узлы Общероссийский строительный каталог Промышленные предприятия, здания и сооружения Предприятия, здания и сооружения складские Резервуары и склады для нефти и нефтепродуктов Склады нефти и нефтепродуктов
Типовой проект 704-1-178.85Типовой проект 704-1-178.85Типовой проект 704-1-178.85Типовой проект 704-1-178.85Типовой проект 704-1-178.85Типовой проект 704-1-178.85Типовой проект 704-1-178.85Типовой проект 704-1-178.85Типовой проект 704-1-178.85Типовой проект 704-1-178.85Типовой проект 704-1-178.85Типовой проект 704-1-178.85Типовой проект 704-1-178.85Типовой проект 704-1-178.85Типовой проект 704-1-178.85Типовой проект 704-1-178.85Типовой проект 704-1-178.85Типовой проект 704-1-178.85Типовой проект 704-1-178.85Типовой проект 704-1-178.85Типовой проект 704-1-178.85Типовой проект 704-1-178.85Типовой проект 704-1-178.85Типовой проект 704-1-178.85Типовой проект 704-1-178.85Типовой проект 704-1-178.85Типовой проект 704-1-178.85Типовой проект 704-1-178.85Типовой проект 704-1-178.85Типовой проект 704-1-178.85Типовой проект 704-1-178.85Типовой проект 704-1-178.85Типовой проект 704-1-178.85Типовой проект 704-1-178.85Типовой проект 704-1-178.85Типовой проект 704-1-178.85Типовой проект 704-1-178.85Типовой проект 704-1-178.85Типовой проект 704-1-178.85Типовой проект 704-1-178.85Типовой проект 704-1-178.85Типовой проект 704-1-178.85Типовой проект 704-1-178.85

© 2013 Ёшкин Кот :-) Карта сайта