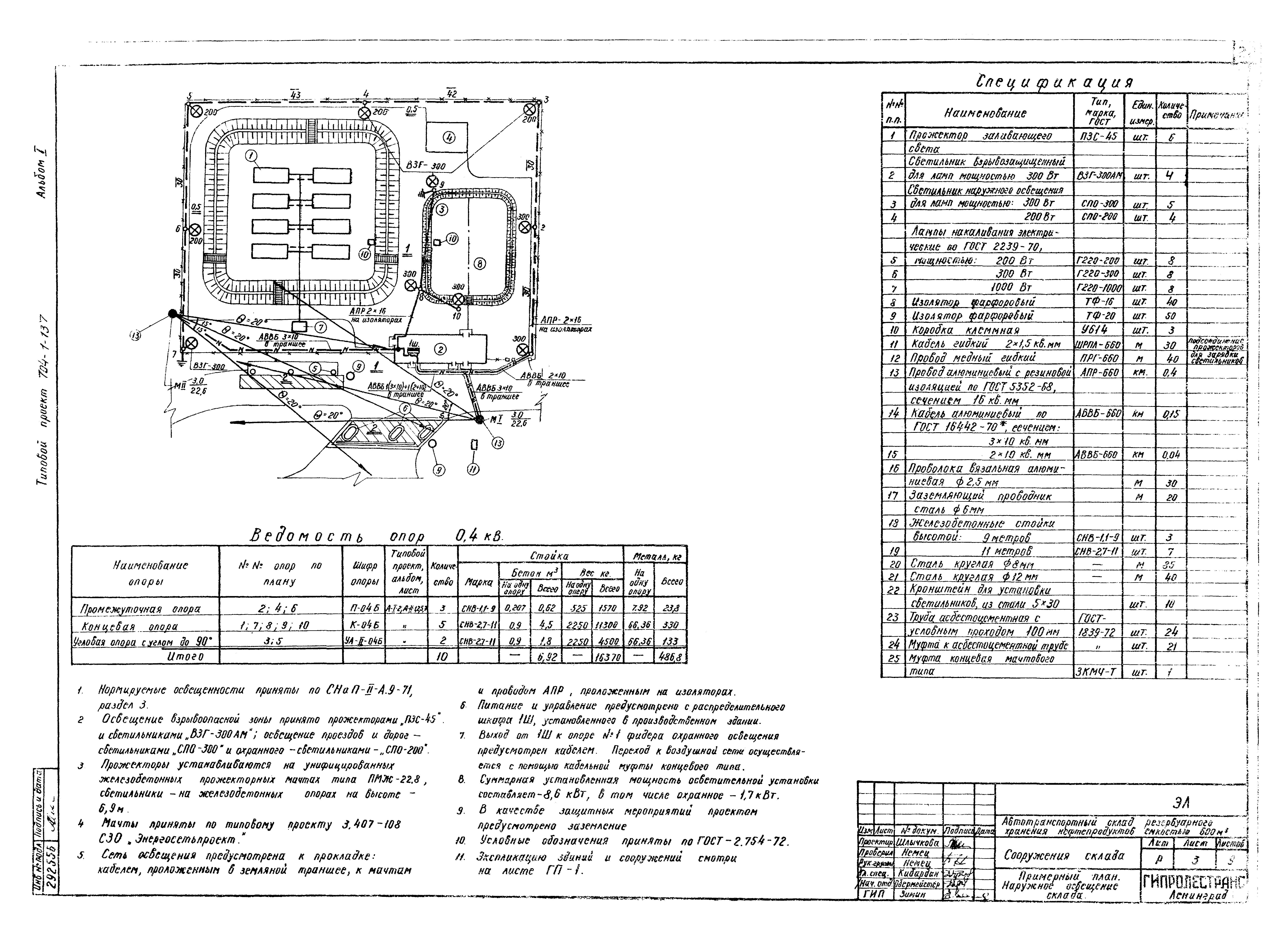
Скачать Типовой проект 704-1-137 Альбом I. Сооружения склада. ЧертежиДата актуализации: 10.08.2017 Типовой проект 704-1-137
Альбом I. Сооружения склада. ЧертежиОбозначение: | Типовой проект 704-1-137 | Обозначение англ: | 704-1-137 | Статус: | действует | Название рус.: | Альбом I. Сооружения склада. Чертежи | Дата добавления в базу: | 21.05.2015 | Дата актуализации: | 05.05.2017 | Разработан: | Гипролестранс
| Утверждён: | 03.12.1976 Минлеспром СССР (USSR Minlesprom 113)
| Расположен в: |
| Нормативные ссылки: | |
                                
|