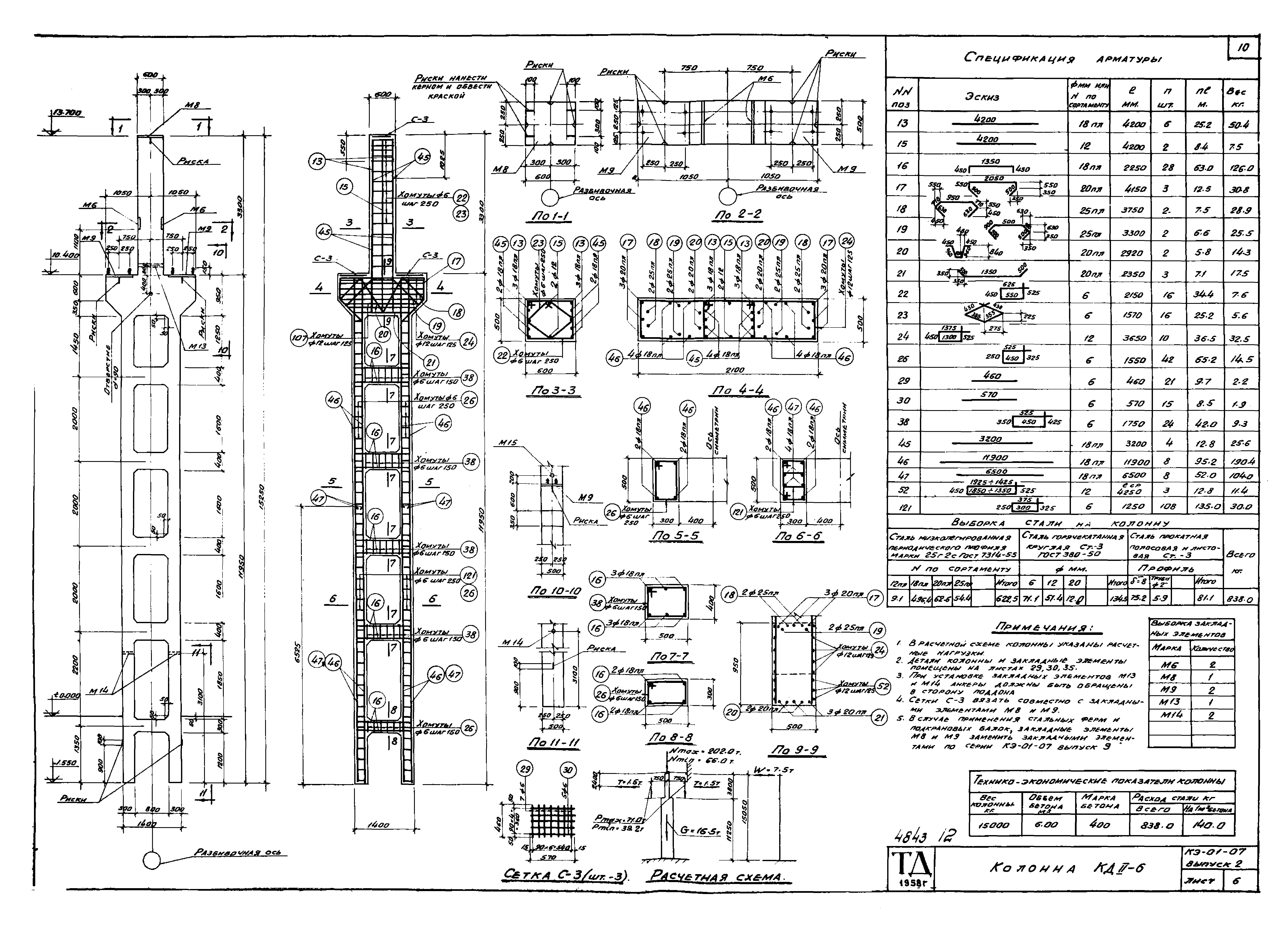
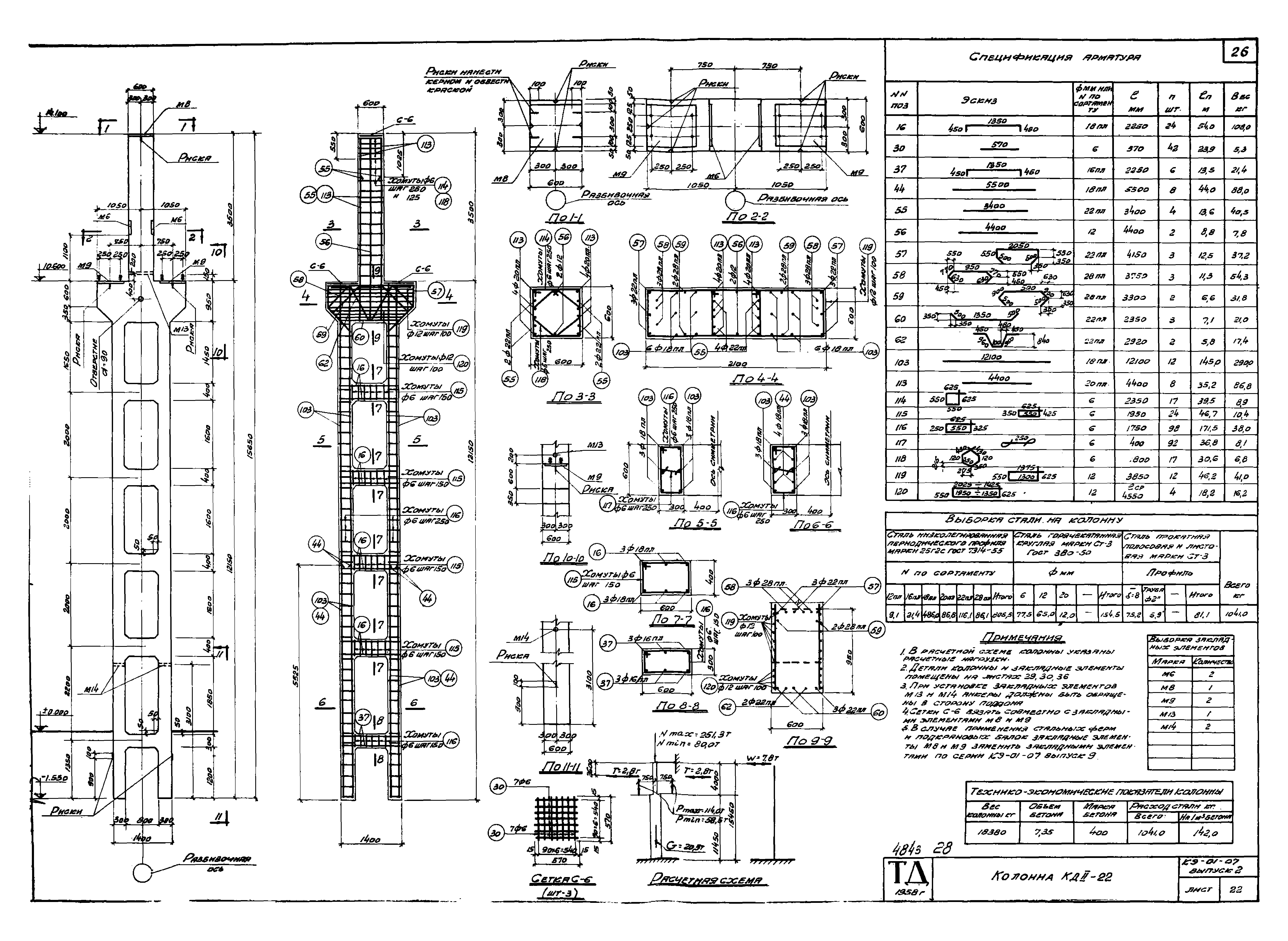
Скачать Серия КЭ-01-07 Выпуск 2. Колонны двухветвевые безраскосные с нагрузкой от кранов 10, 20 и 30 тонн с шагом для наружных рядов 6 м и для внутренних рядов 12 м (для II-го географического района ветровой нагрузки)Дата актуализации: 10.08.2017 Серия КЭ-01-07
Выпуск 2. Колонны двухветвевые безраскосные с нагрузкой от кранов 10, 20 и 30 тонн с шагом для наружных рядов 6 м и для внутренних рядов 12 м (для II-го географического района ветровой нагрузки)| Обозначение: | Серия КЭ-01-07 | | Обозначение англ: | Series КЭ-01-07 | | Статус: | действует | | Название рус.: | Выпуск 2. Колонны двухветвевые безраскосные с нагрузкой от кранов 10, 20 и 30 тонн с шагом для наружных рядов 6 м и для внутренних рядов 12 м (для II-го географического района ветровой нагрузки) | | Дата добавления в базу: | 21.05.2015 | | Дата актуализации: | 05.05.2017 | | Разработан: | Государственный Проектный Институт №6
| | Утверждён: | 01.01.1958 Государственный комитет Совета Министров СССР по делам строительства
| | Расположен в: |
|
                                                 
|