Скачать Серия 1.022 КЛ-2 Выпуск 1. Общие материалы, характеристики конструктивных элементов и деталей для зданий высотой до 40 м с сечением колонн 40х40 смДата актуализации: 10.08.2017 Серия 1.022 КЛ-2
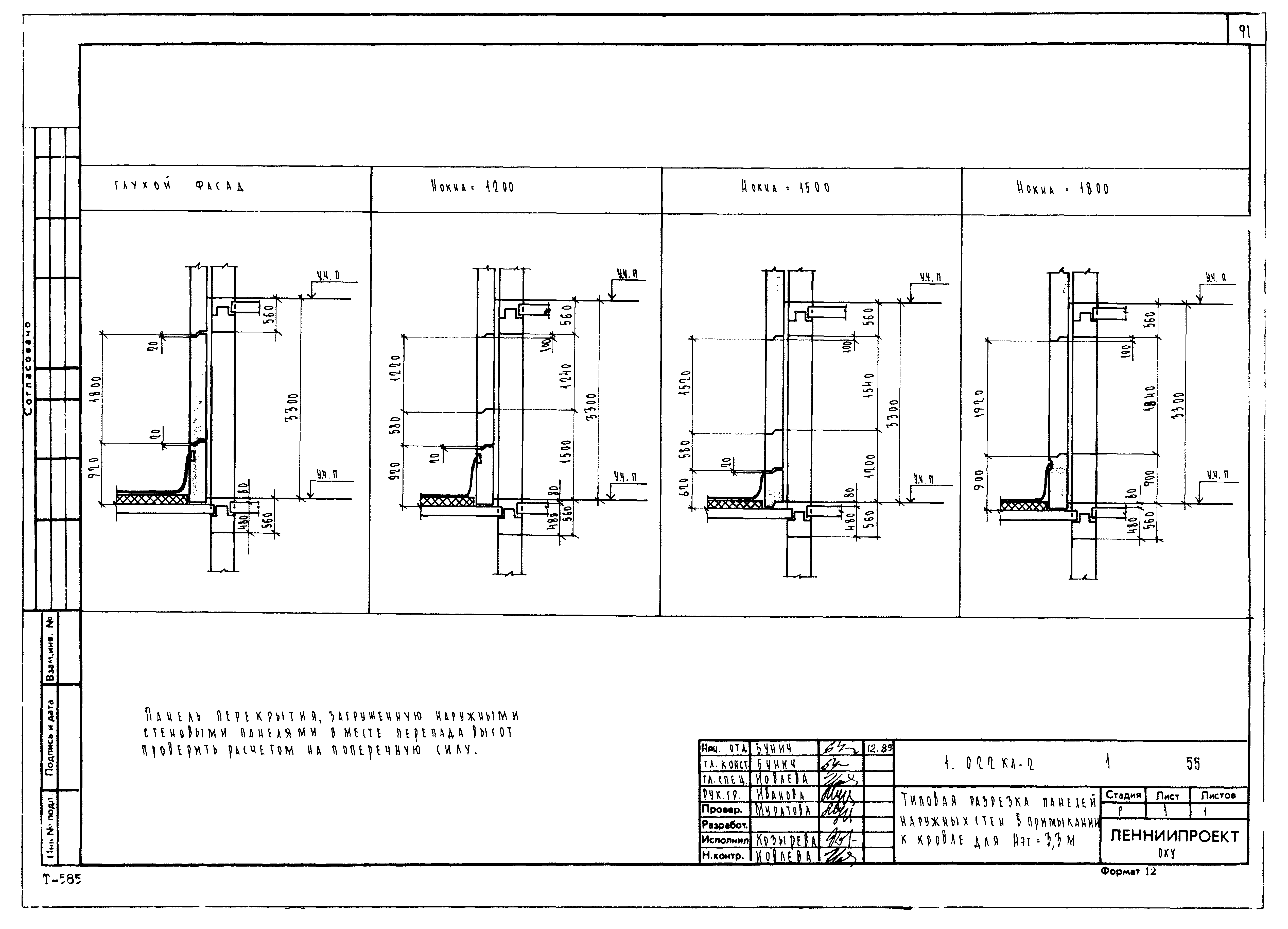
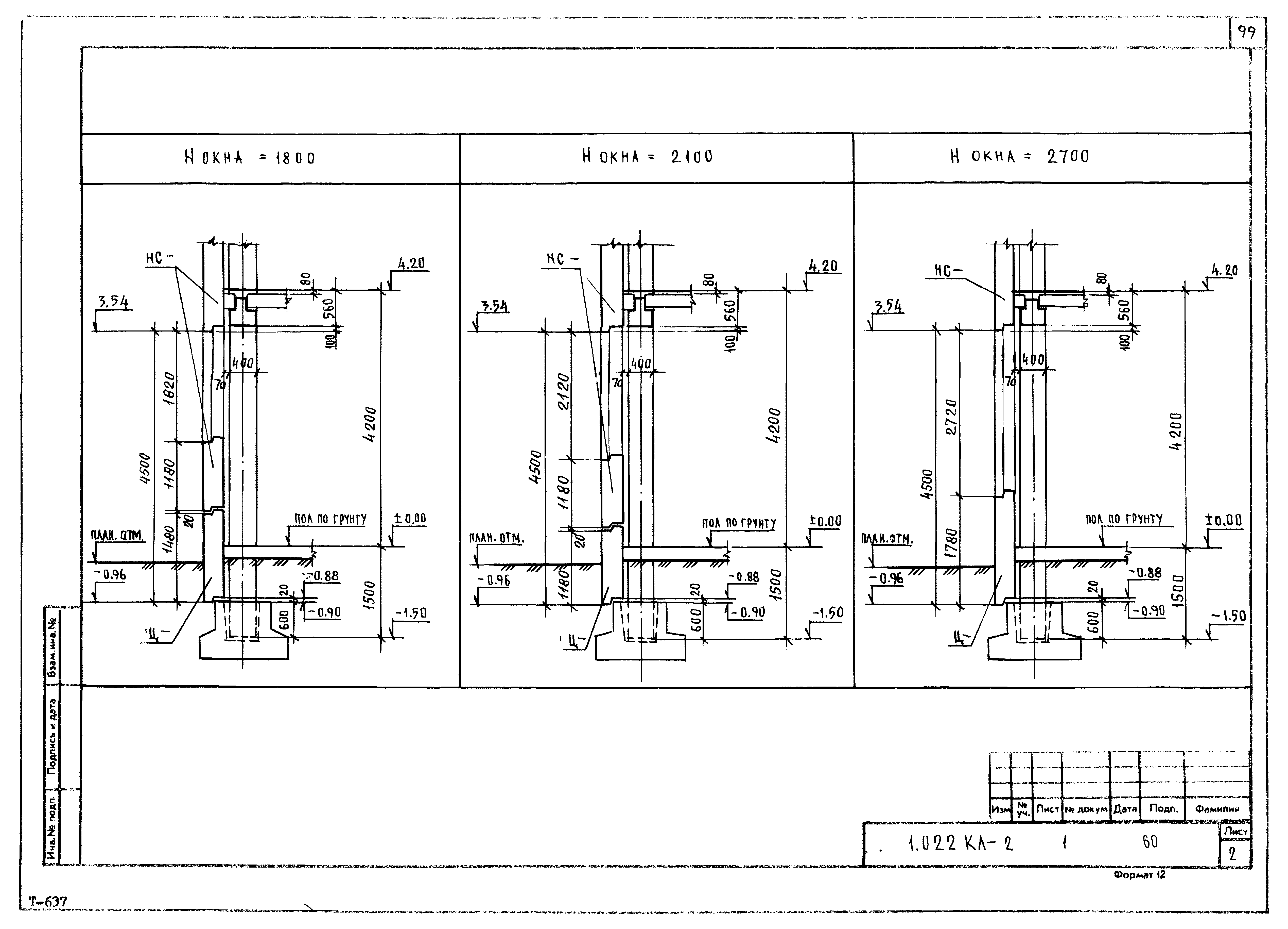
Выпуск 1. Общие материалы, характеристики конструктивных элементов и деталей для зданий высотой до 40 м с сечением колонн 40х40 см| Обозначение: | Серия 1.022 КЛ-2 | | Обозначение англ: | Series 1.022 КЛ-2 | | Статус: | действует | | Название рус.: | Выпуск 1. Общие материалы, характеристики конструктивных элементов и деталей для зданий высотой до 40 м с сечением колонн 40х40 см | | Дата добавления в базу: | 21.05.2015 | | Дата актуализации: | 05.05.2017 | | Область применения: | В выпуск 1 внесены изменения (указание № 60-у 30.09.1991 г.) в связи с выпуском колонн с Нэт = 4,8 м и диафрагмой жесткости толщиной 20 см | | Разработан: | Ленниипроект
| | Утверждён: | 08.01.1990 Ленниипроект (1-У)
| | Расположен в: |
|
                                                                                                                                
|