Информационная система
«Ёшкин Кот»

Скачать базу одним архивом
Скачать обновления
История создания базы
Карта сайта

Скачать Типовые проектные решения 902-2-0415.86 Альбом II. Часть 1. Нестандартизированное оборудование. Фильтр с длиной резервуара 6; 8 и 10 м, камера распределительная

Дата актуализации: 10.08.2017

Типовые проектные решения 902-2-0415.86

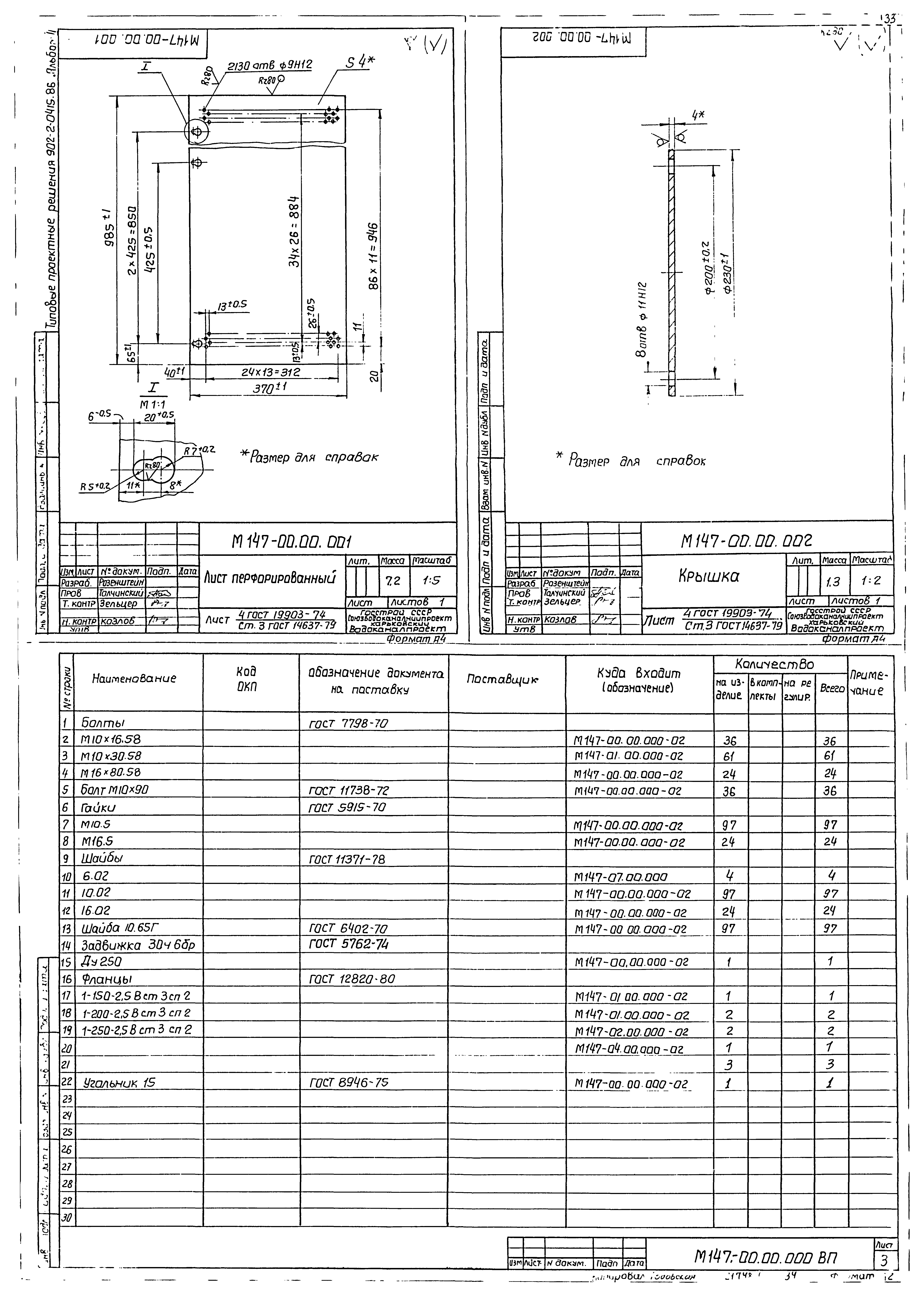
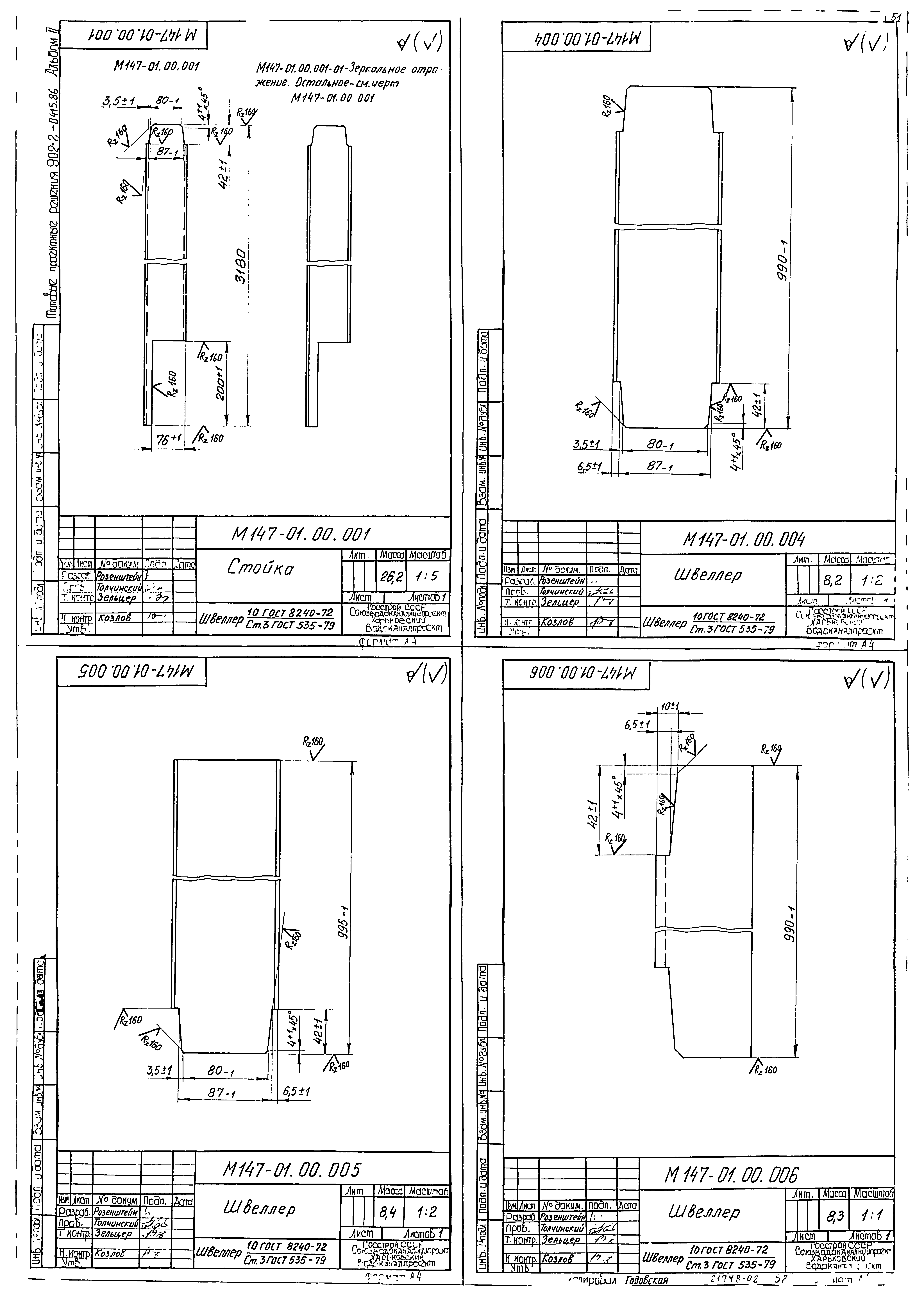
Альбом II. Часть 1. Нестандартизированное оборудование. Фильтр с длиной резервуара 6; 8 и 10 м, камера распределительная

Обозначение: Типовые проектные решения 902-2-0415.86
Обозначение англ: 902-2-0415.86
Статус:cправочные материалы, мп, тпр
Название рус.:Альбом II. Часть 1. Нестандартизированное оборудование. Фильтр с длиной резервуара 6; 8 и 10 м, камера распределительная
Дата добавления в базу:21.05.2015
Дата актуализации:05.05.2017
Разработан: Харьковский Водоканалпроект
Утверждён:29.08.1986 Госстрой СССР (63)
Издан: ЦИТП Госстроя СССР (CITP, Gosstroy (USSR) 1987 г. )
Расположен в:Техническая документация Строительство Справочные документы Типовые строительные конструкции, изделия и узлы Общероссийский строительный каталог Промышленные предприятия, здания и сооружения Здания и сооружения санитарно-технические Канализация Сооружения для очистки производственных сточных вод Станции физико-химической очистки
Заменяет собой:
  • Типовые проектные решения 902-02-342
Типовые проектные решения 902-2-0415.86Типовые проектные решения 902-2-0415.86Типовые проектные решения 902-2-0415.86Типовые проектные решения 902-2-0415.86Типовые проектные решения 902-2-0415.86Типовые проектные решения 902-2-0415.86Типовые проектные решения 902-2-0415.86Типовые проектные решения 902-2-0415.86Типовые проектные решения 902-2-0415.86Типовые проектные решения 902-2-0415.86Типовые проектные решения 902-2-0415.86Типовые проектные решения 902-2-0415.86Типовые проектные решения 902-2-0415.86Типовые проектные решения 902-2-0415.86Типовые проектные решения 902-2-0415.86Типовые проектные решения 902-2-0415.86Типовые проектные решения 902-2-0415.86Типовые проектные решения 902-2-0415.86Типовые проектные решения 902-2-0415.86Типовые проектные решения 902-2-0415.86Типовые проектные решения 902-2-0415.86Типовые проектные решения 902-2-0415.86Типовые проектные решения 902-2-0415.86Типовые проектные решения 902-2-0415.86Типовые проектные решения 902-2-0415.86Типовые проектные решения 902-2-0415.86Типовые проектные решения 902-2-0415.86Типовые проектные решения 902-2-0415.86Типовые проектные решения 902-2-0415.86Типовые проектные решения 902-2-0415.86Типовые проектные решения 902-2-0415.86Типовые проектные решения 902-2-0415.86Типовые проектные решения 902-2-0415.86Типовые проектные решения 902-2-0415.86Типовые проектные решения 902-2-0415.86Типовые проектные решения 902-2-0415.86Типовые проектные решения 902-2-0415.86Типовые проектные решения 902-2-0415.86Типовые проектные решения 902-2-0415.86Типовые проектные решения 902-2-0415.86Типовые проектные решения 902-2-0415.86Типовые проектные решения 902-2-0415.86Типовые проектные решения 902-2-0415.86Типовые проектные решения 902-2-0415.86Типовые проектные решения 902-2-0415.86Типовые проектные решения 902-2-0415.86Типовые проектные решения 902-2-0415.86Типовые проектные решения 902-2-0415.86Типовые проектные решения 902-2-0415.86Типовые проектные решения 902-2-0415.86Типовые проектные решения 902-2-0415.86Типовые проектные решения 902-2-0415.86Типовые проектные решения 902-2-0415.86Типовые проектные решения 902-2-0415.86Типовые проектные решения 902-2-0415.86Типовые проектные решения 902-2-0415.86Типовые проектные решения 902-2-0415.86Типовые проектные решения 902-2-0415.86Типовые проектные решения 902-2-0415.86Типовые проектные решения 902-2-0415.86Типовые проектные решения 902-2-0415.86Типовые проектные решения 902-2-0415.86Типовые проектные решения 902-2-0415.86Типовые проектные решения 902-2-0415.86

© 2013 Ёшкин Кот :-) Карта сайта