Скачать Типовой проект 903-2-10 Альбом I. Часть 1. Мазутонасосная. Части: тепломеханическая, автоматизация, электротехническая, санитарно-техническая. Тепловые сетиДата актуализации: 10.08.2017 Типовой проект 903-2-10
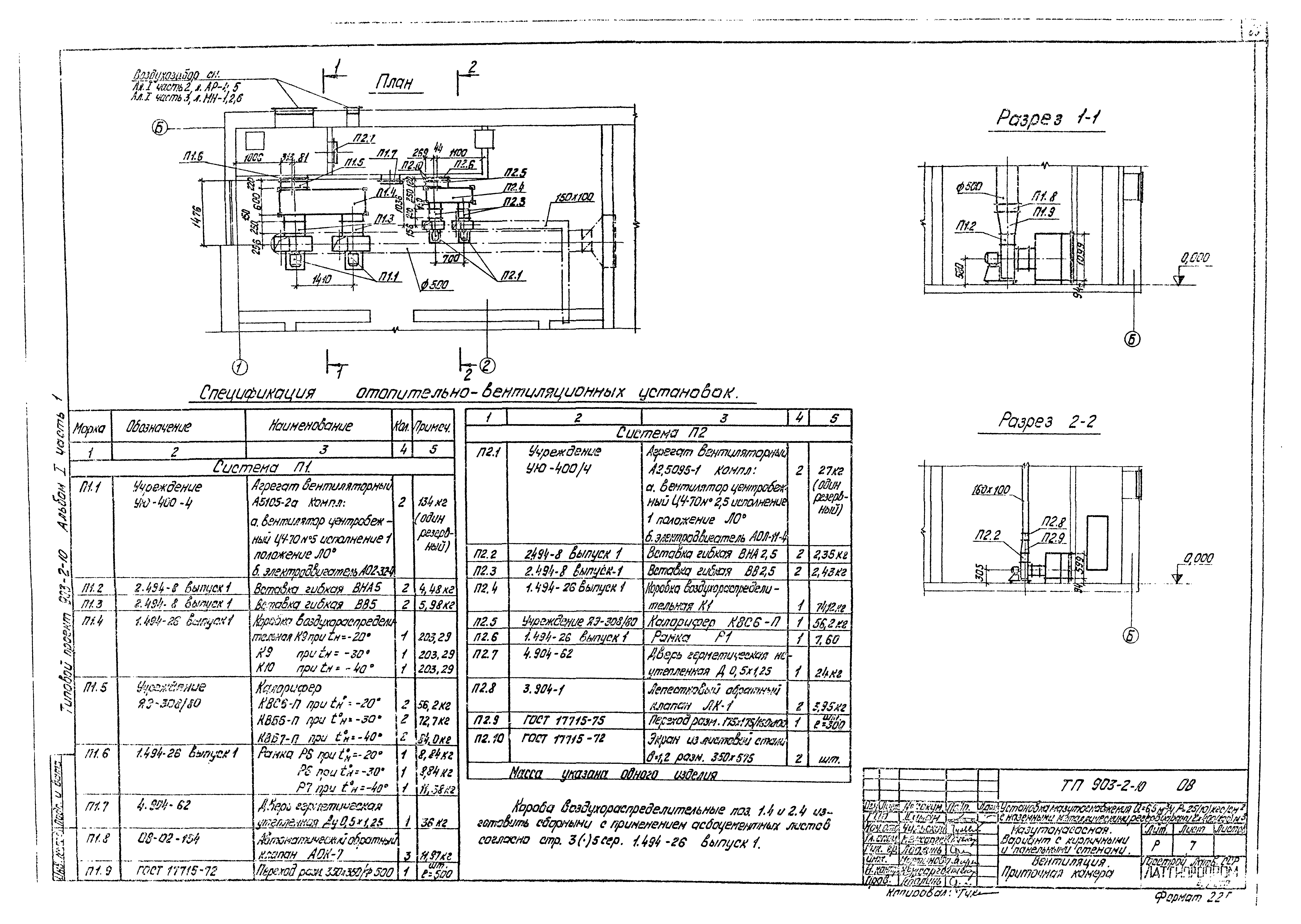
Альбом I. Часть 1. Мазутонасосная. Части: тепломеханическая, автоматизация, электротехническая, санитарно-техническая. Тепловые сетиОбозначение: | Типовой проект 903-2-10 | Обозначение англ: | 903-2-10 | Статус: | заменен | Название рус.: | Альбом I. Часть 1. Мазутонасосная. Части: тепломеханическая, автоматизация, электротехническая, санитарно-техническая. Тепловые сети | Дата добавления в базу: | 21.05.2015 | Дата актуализации: | 05.05.2017 | Дата введения: | 01.06.1982 | Разработан: | Латгипропром
| Утверждён: | 07.06.1977 Главпромстройпроект Госстроя СССР (33)
| Расположен в: |
| Чем заменён: | | Нормативные ссылки: | |
                                                                        
|