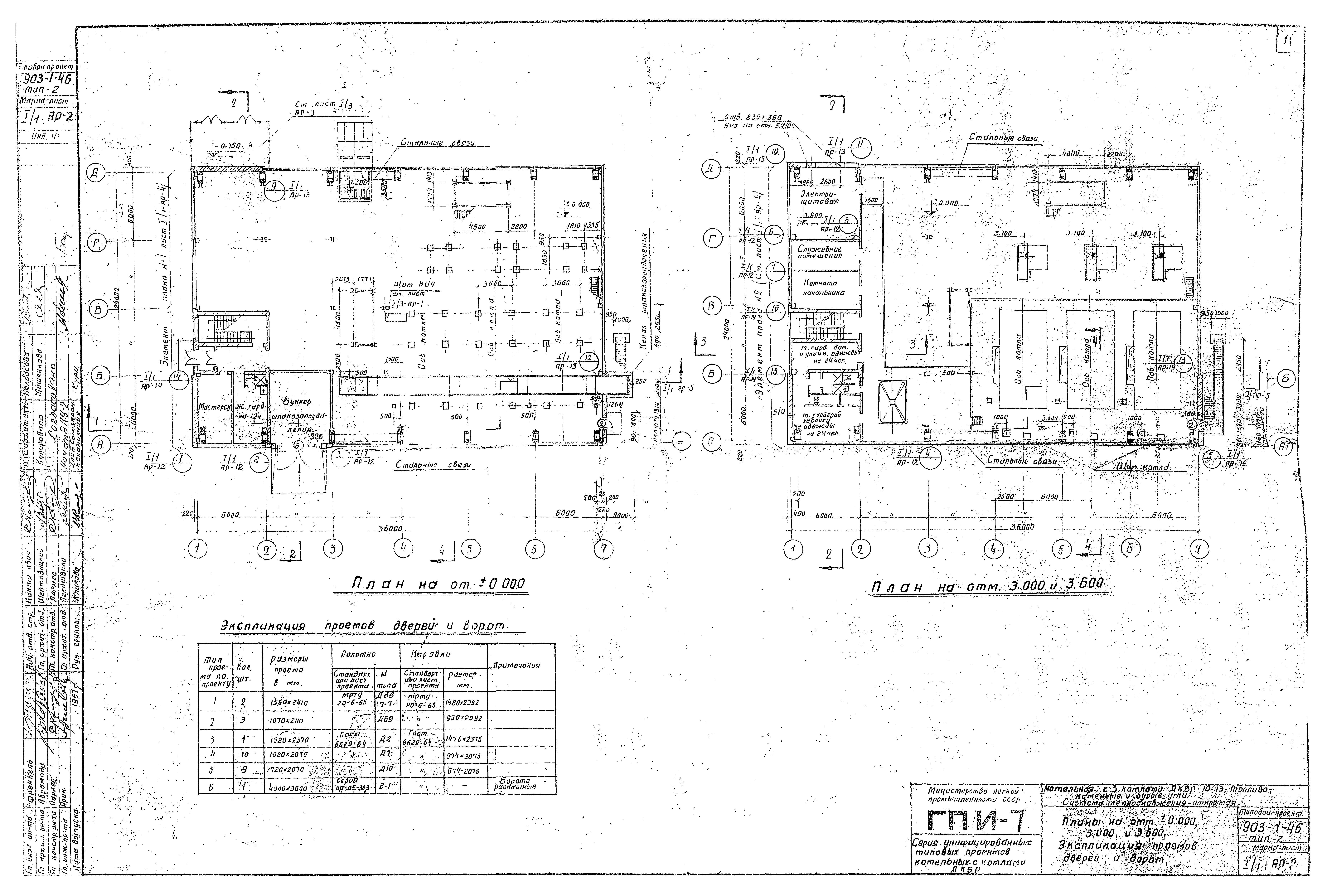
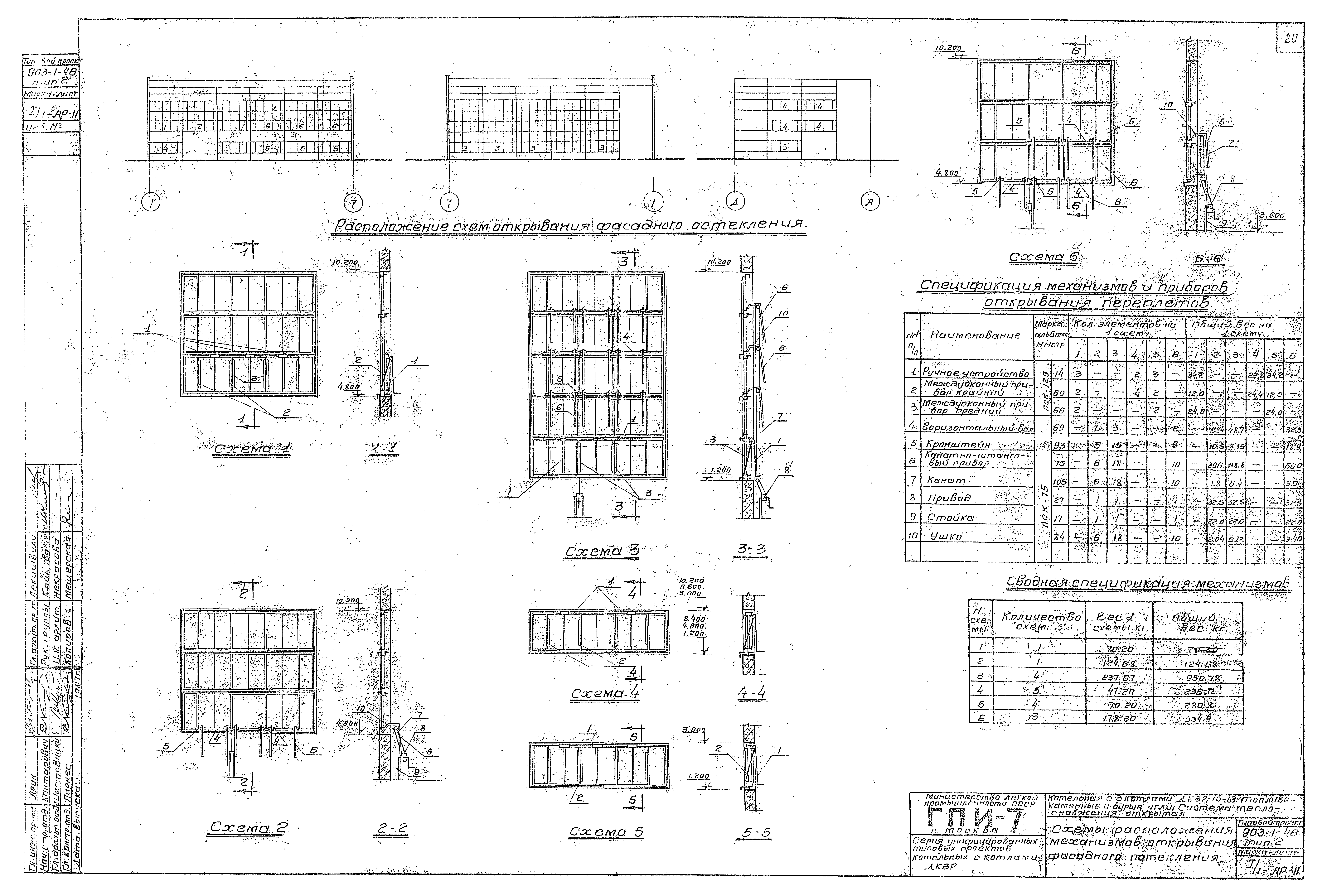
Скачать Типовой проект 903-1-46 Альбом I/1. Общие чертежи здания с панельными стенамиДата актуализации: 10.08.2017 Типовой проект 903-1-46
Альбом I/1. Общие чертежи здания с панельными стенамиОбозначение: | Типовой проект 903-1-46 | Обозначение англ: | 903-1-46 | Статус: | заменен | Название рус.: | Альбом I/1. Общие чертежи здания с панельными стенами | Дата добавления в базу: | 21.05.2015 | Дата актуализации: | 05.05.2017 | Дата введения: | 01.12.1973 | Разработан: | ГПИ-7 Госкомлегпрома
| Утверждён: | 01.05.1968 Сантехниипроект
| Расположен в: |
| Чем заменён: | |
                                                     
|