Информационная система
«Ёшкин Кот»

Скачать базу одним архивом
Скачать обновления
История создания базы
Карта сайта

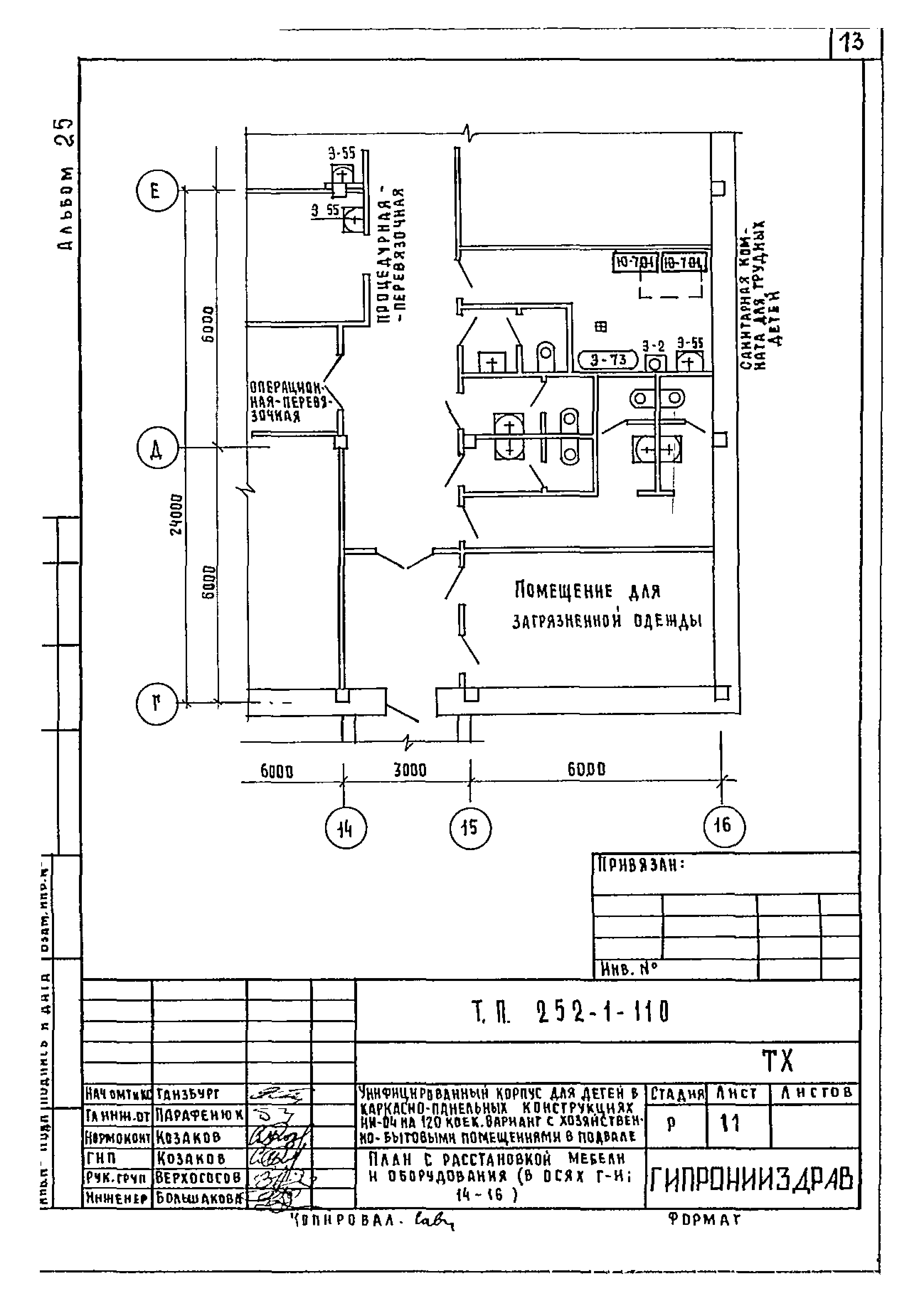
Скачать Типовой проект 252-1-110 Альбом 25. Проектная документация по переводу хозяйственно-бытовых помещений в подвале для использования под ПРУ

Дата актуализации: 10.08.2017

Типовой проект 252-1-110

Альбом 25. Проектная документация по переводу хозяйственно-бытовых помещений в подвале для использования под ПРУ

Обозначение: Типовой проект 252-1-110
Обозначение англ: 252-1-110
Статус:не определен законодательством
Название рус.:Альбом 25. Проектная документация по переводу хозяйственно-бытовых помещений в подвале для использования под ПРУ
Дата добавления в базу:21.05.2015
Дата актуализации:05.05.2017
Дата введения:12.02.1982
Разработан: ГипроНИИздрав Минздрава СССР
Утверждён:27.02.1980 Минздрав СССР (USSR Minzdrav 198)
Расположен в:Техническая документация Строительство Справочные документы Типовые строительные конструкции, изделия и узлы Общероссийский строительный каталог Защитные сооружения гражданской обороны Типовые проекты защитных сооружений гражданской обороны для жилищно-гражданского строительства Для строительства в городах и поселках городского типа Встроенные помещения, приспособленные под убежища в общественных зданиях Убежища в лечебно-профилактических учреждениях Общественные здания в городах и поселках городского типа Лечебно-профилактические учреждения Больницы
Типовой проект 252-1-110Типовой проект 252-1-110Типовой проект 252-1-110Типовой проект 252-1-110Типовой проект 252-1-110Типовой проект 252-1-110Типовой проект 252-1-110Типовой проект 252-1-110Типовой проект 252-1-110Типовой проект 252-1-110Типовой проект 252-1-110Типовой проект 252-1-110Типовой проект 252-1-110Типовой проект 252-1-110Типовой проект 252-1-110Типовой проект 252-1-110Типовой проект 252-1-110Типовой проект 252-1-110Типовой проект 252-1-110Типовой проект 252-1-110Типовой проект 252-1-110Типовой проект 252-1-110Типовой проект 252-1-110

© 2013 Ёшкин Кот :-) Карта сайта