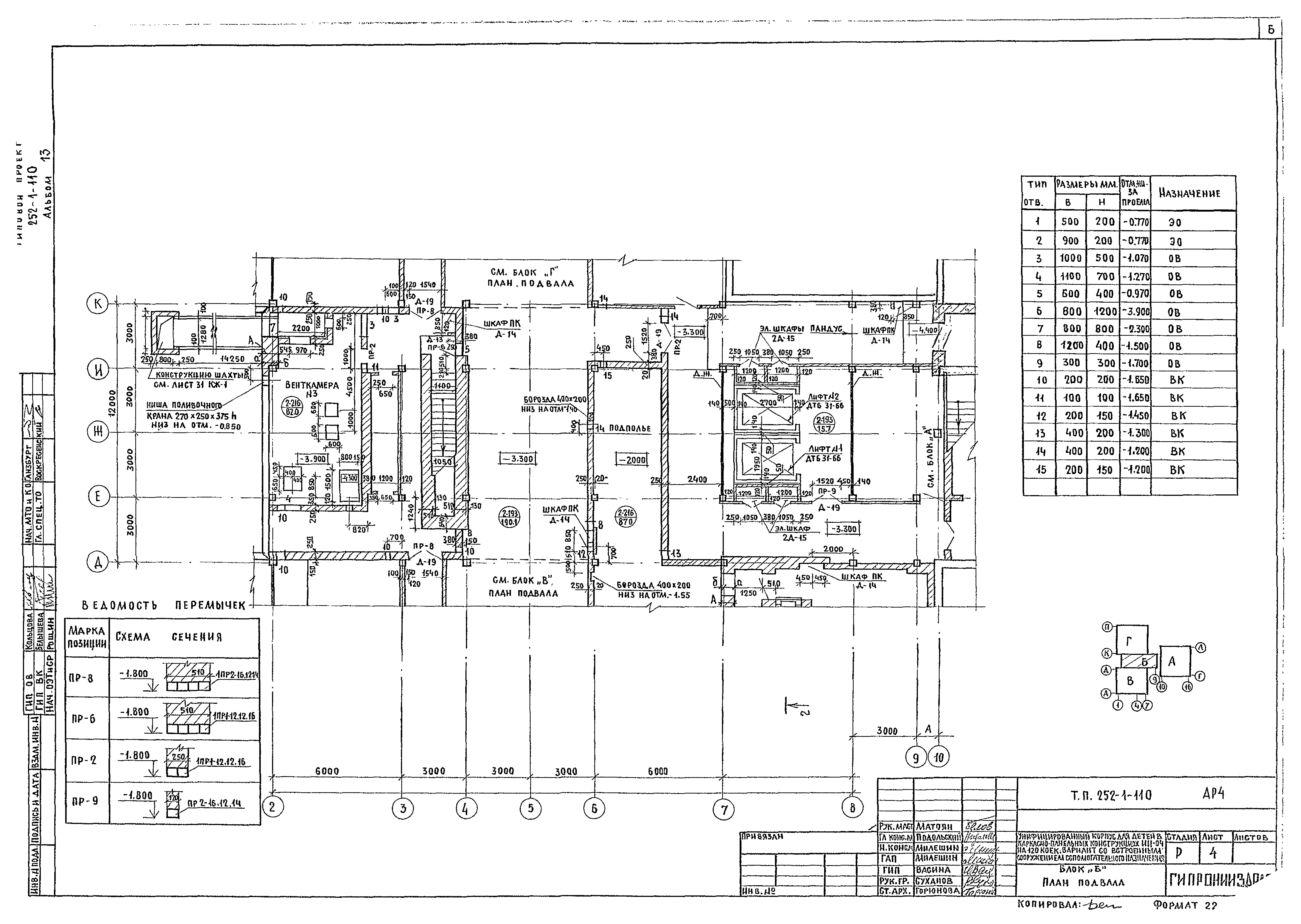
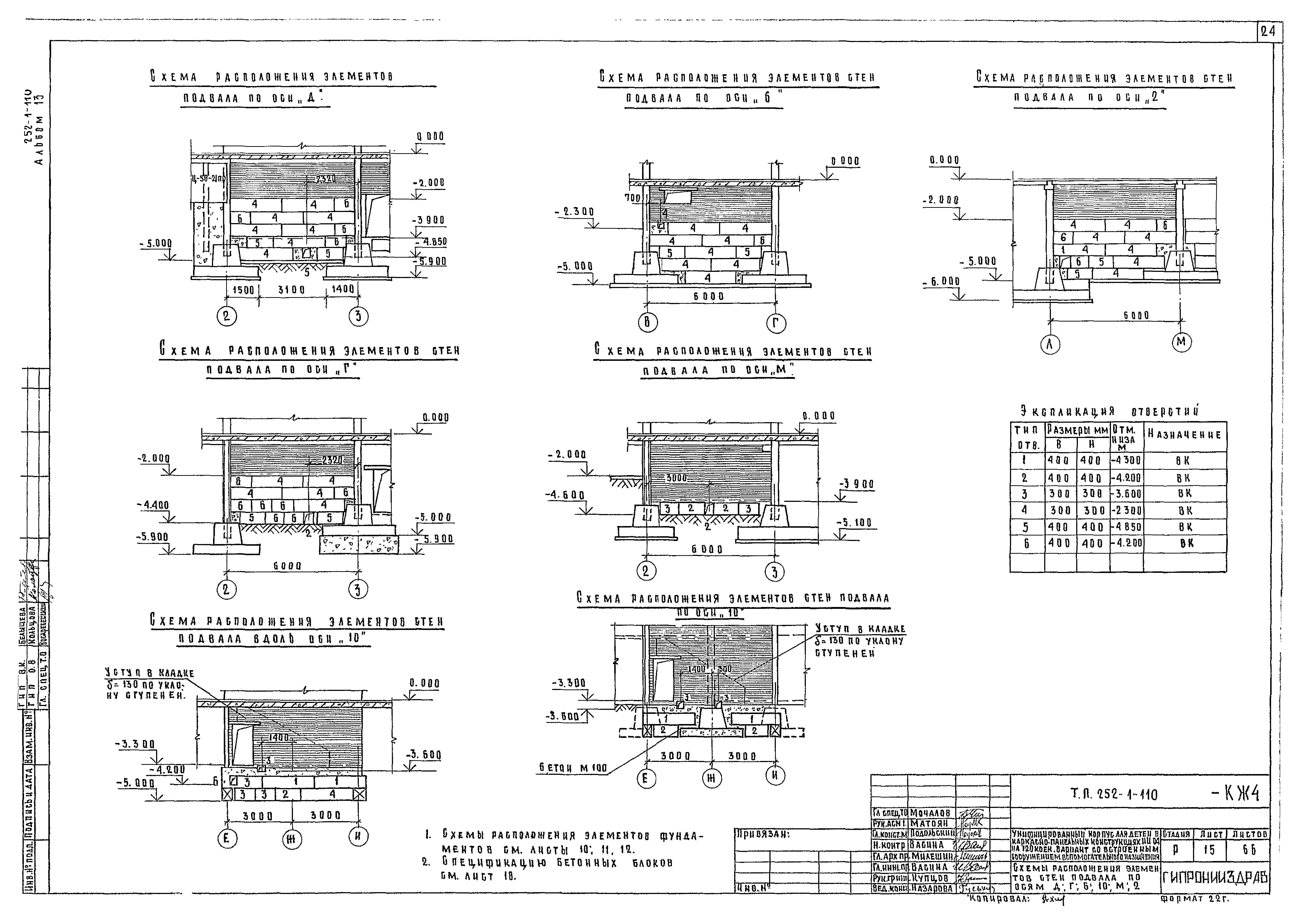
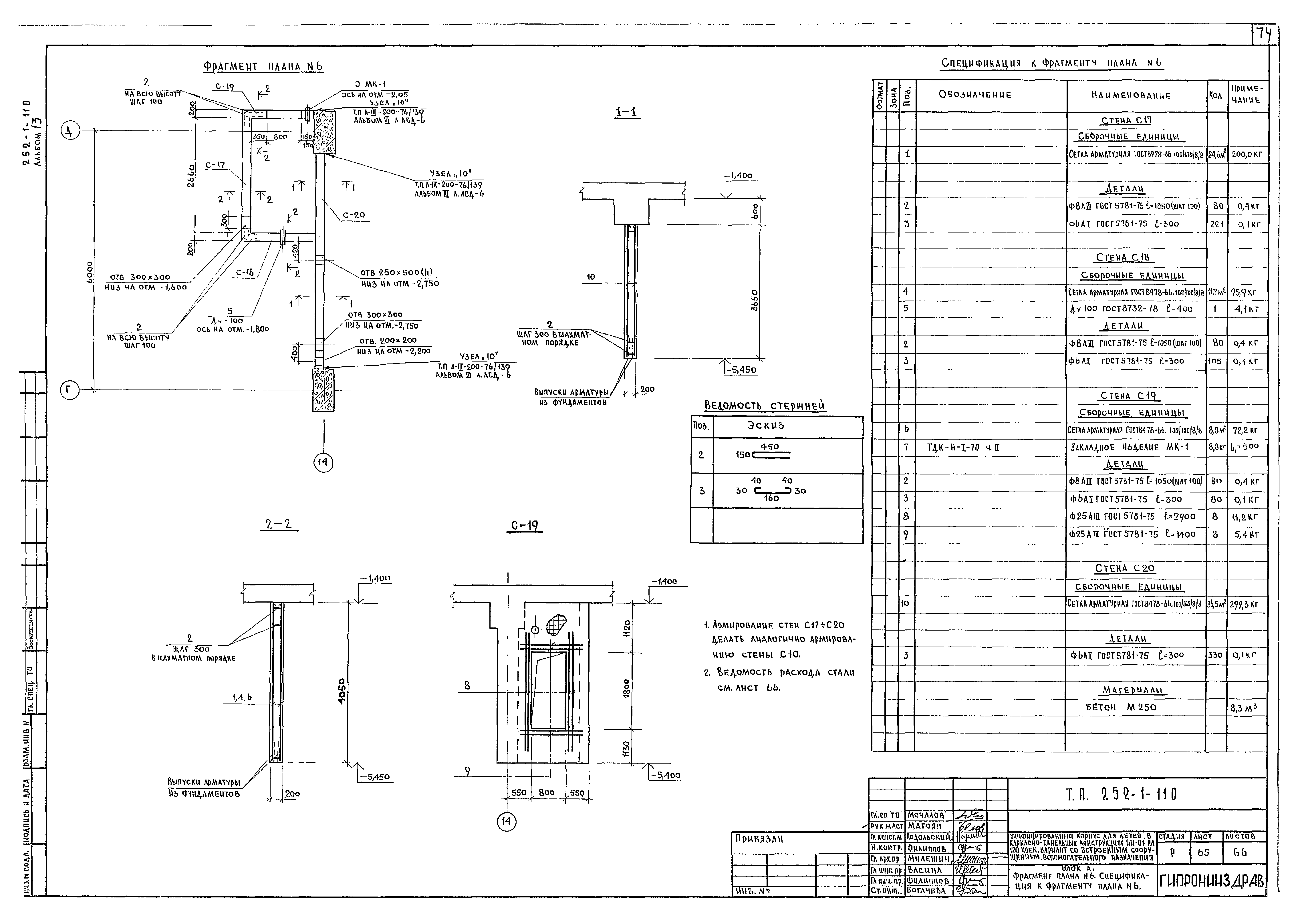
Скачать Типовой проект 252-1-110 Альбом 13. Архитектурные решения, конструкции железобетонные ниже отм. 0.000. Технология. Вариант с помещениями вспомогательного назначения, приспособленными под убежищеДата актуализации: 10.08.2017 Типовой проект 252-1-110
Альбом 13. Архитектурные решения, конструкции железобетонные ниже отм. 0.000. Технология. Вариант с помещениями вспомогательного назначения, приспособленными под убежищеОбозначение: | Типовой проект 252-1-110 | Обозначение англ: | 252-1-110 | Статус: | не определен законодательством | Название рус.: | Альбом 13. Архитектурные решения, конструкции железобетонные ниже отм. 0.000. Технология. Вариант с помещениями вспомогательного назначения, приспособленными под убежище | Дата добавления в базу: | 21.05.2015 | Дата актуализации: | 05.05.2017 | Дата введения: | 12.02.1982 | Разработан: | ГипроНИИздрав Минздрава СССР
| Утверждён: | 27.02.1980 Минздрав СССР (USSR Minzdrav 198)
| Расположен в: |
|
                                                                               
|