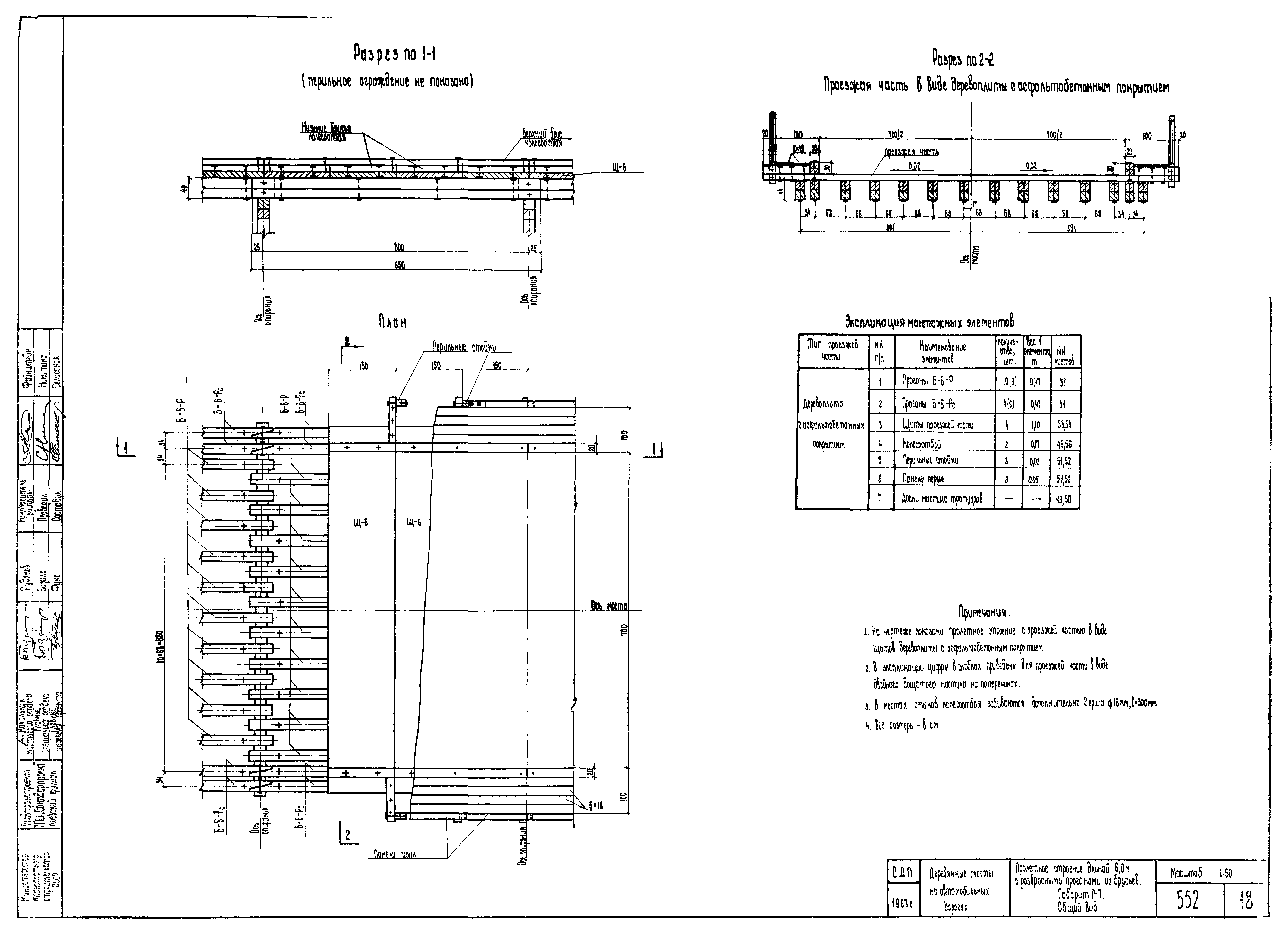
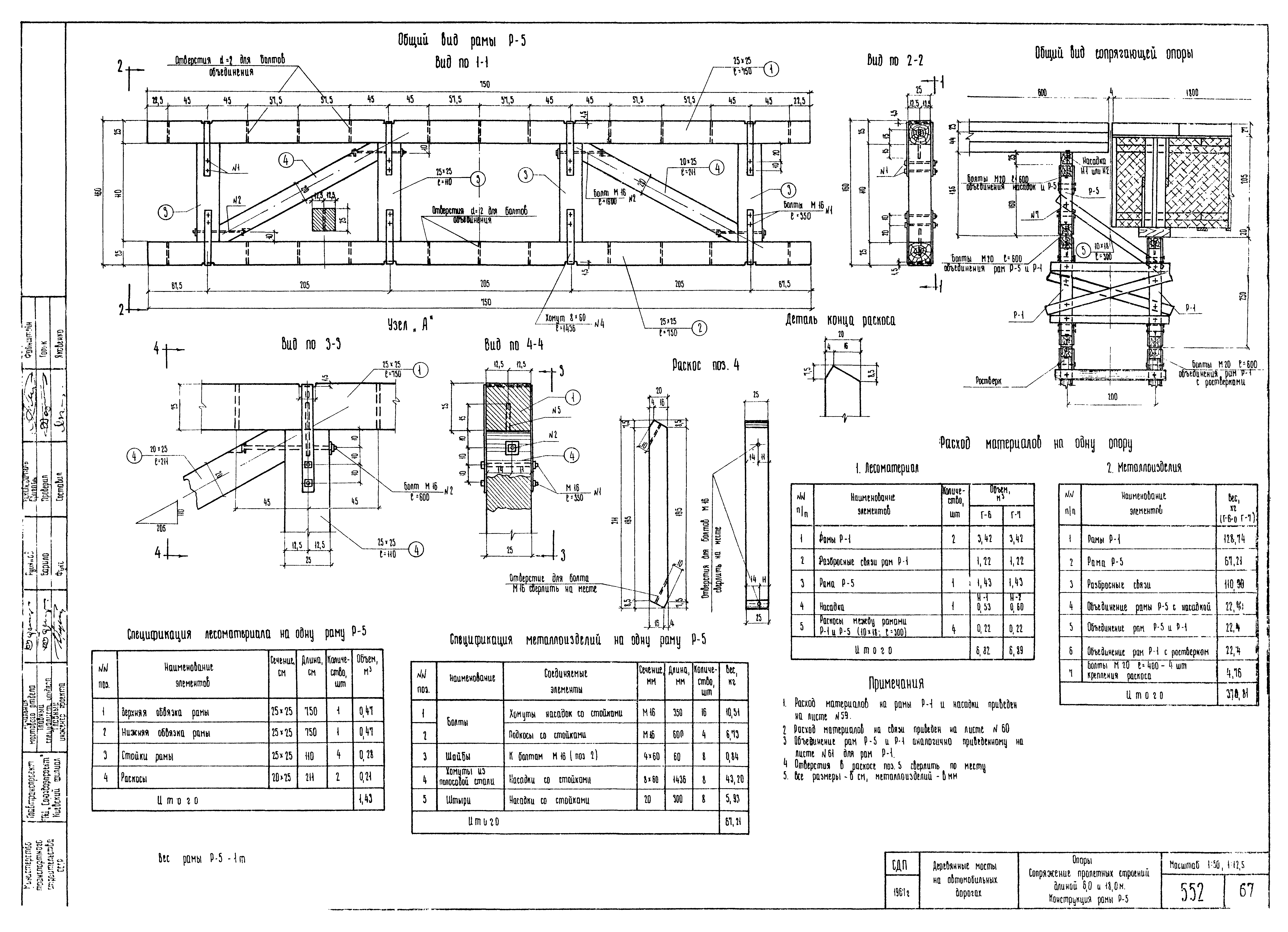
Скачать Типовой проект 503-58 Типовой проект деревянных мостов на автомобильных дорогах. Пролетные строения длиной 6, 9, 12, 18 м и опоры. Габариты Г-6 и Г-7. Нагрузки Н-10 и НГ-60. Рабочие чертежиДата актуализации: 10.08.2017 Типовой проект 503-58
Типовой проект деревянных мостов на автомобильных дорогах. Пролетные строения длиной 6, 9, 12, 18 м и опоры. Габариты Г-6 и Г-7. Нагрузки Н-10 и НГ-60. Рабочие чертежиОбозначение: | Типовой проект 503-58 | Обозначение англ: | 503-58 | Статус: | не действует | Название рус.: | Типовой проект деревянных мостов на автомобильных дорогах. Пролетные строения длиной 6, 9, 12, 18 м и опоры. Габариты Г-6 и Г-7. Нагрузки Н-10 и НГ-60. Рабочие чертежи | Дата добавления в базу: | 21.05.2015 | Дата актуализации: | 05.05.2017 | Дата введения: | 01.12.1988 | Разработан: | Киевский филиал Союздорпроекта
| Утверждён: | 13.10.1967 ГПИ Союздорпроект (Soyuzdorproject GPI 200пр)
| Расположен в: |
|
                                                                   
|