| ||||||||||||||||||||||||
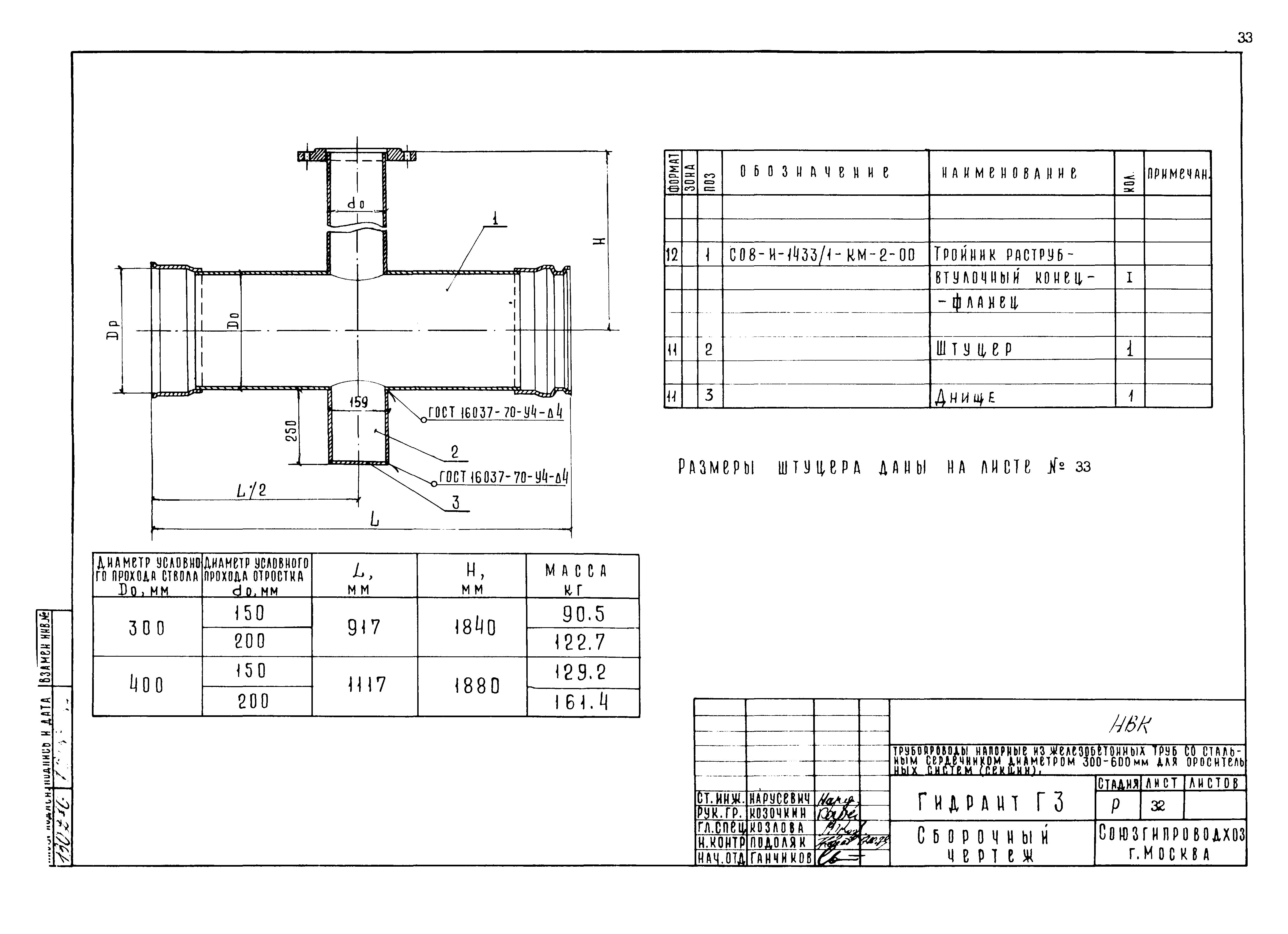
Скачать Типовые проектные решения 820-02-5 Альбом I. Пояснительная записка и чертежиДата актуализации: 10.08.2017
|
| Обозначение: | Типовые проектные решения 820-02-5 |
| Обозначение англ: | 820-02-5 |
| Статус: | cправочные материалы, мп, тпр |
| Название рус.: | Альбом I. Пояснительная записка и чертежи |
| Дата добавления в базу: | 21.05.2015 |
| Дата актуализации: | 05.05.2017 |
| Дата введения: | 09.06.1980 |
| Разработан: | Союзгипроводхоз им. Е.Е. Алексеевского |
| Утверждён: | 09.06.1980 Минводхоз СССР (USSR Minvodkhoz 378) |
| Расположен в: |





































