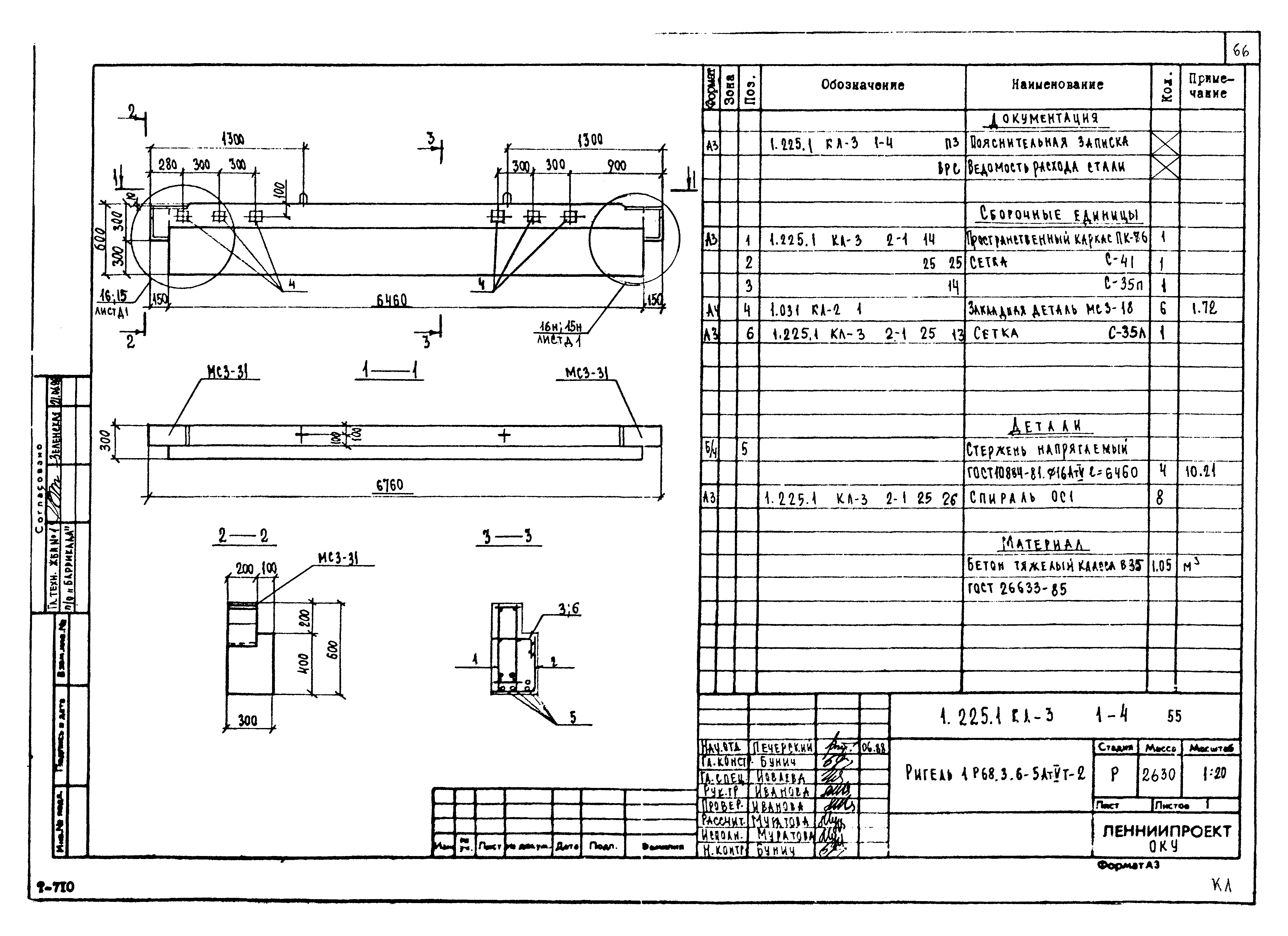
Скачать Серия 1.225.1 КЛ-3 Выпуск 1-4. Ригели длиной 6760 мм с нагрузками 5,2; 7,2; 9,0; 11,0 тс/м и длиной 8560 мм с нагрузками 5,2; 7,2 тс/м с предварительно-напрягаемой арматурной из стали класса АIV; АтIV; АтVДата актуализации: 10.08.2017 Серия 1.225.1 КЛ-3
Выпуск 1-4. Ригели длиной 6760 мм с нагрузками 5,2; 7,2; 9,0; 11,0 тс/м и длиной 8560 мм с нагрузками 5,2; 7,2 тс/м с предварительно-напрягаемой арматурной из стали класса АIV; АтIV; АтV| Обозначение: | Серия 1.225.1 КЛ-3 | | Обозначение англ: | Series 1.225.1 КЛ-3 | | Статус: | действует | | Название рус.: | Выпуск 1-4. Ригели длиной 6760 мм с нагрузками 5,2; 7,2; 9,0; 11,0 тс/м и длиной 8560 мм с нагрузками 5,2; 7,2 тс/м с предварительно-напрягаемой арматурной из стали класса АIV; АтIV; АтV | | Дата добавления в базу: | 01.10.2014 | | Дата актуализации: | 05.05.2017 | | Разработан: | Ленниипроект
| | Утверждён: | 25.07.1988 Ленниипроект (84-у)
| | Расположен в: |
|
                                                                     
|