| ||||||||||||||||||||||||||||
Скачать ТТК К-III-32-1 Установка унифицированных стальных промежуточных опор типа П220-1 краном К-162 и тремя тракторами Т-100МДата актуализации: 10.08.2017
|
| Обозначение: | ТТК К-III-32-1 |
| Обозначение англ: | К-III-32-1 |
| Статус: | не установлен срок действия |
| Название рус.: | Установка унифицированных стальных промежуточных опор типа П220-1 краном К-162 и тремя тракторами Т-100М |
| Дата добавления в базу: | 01.10.2014 |
| Дата актуализации: | 05.05.2017 |
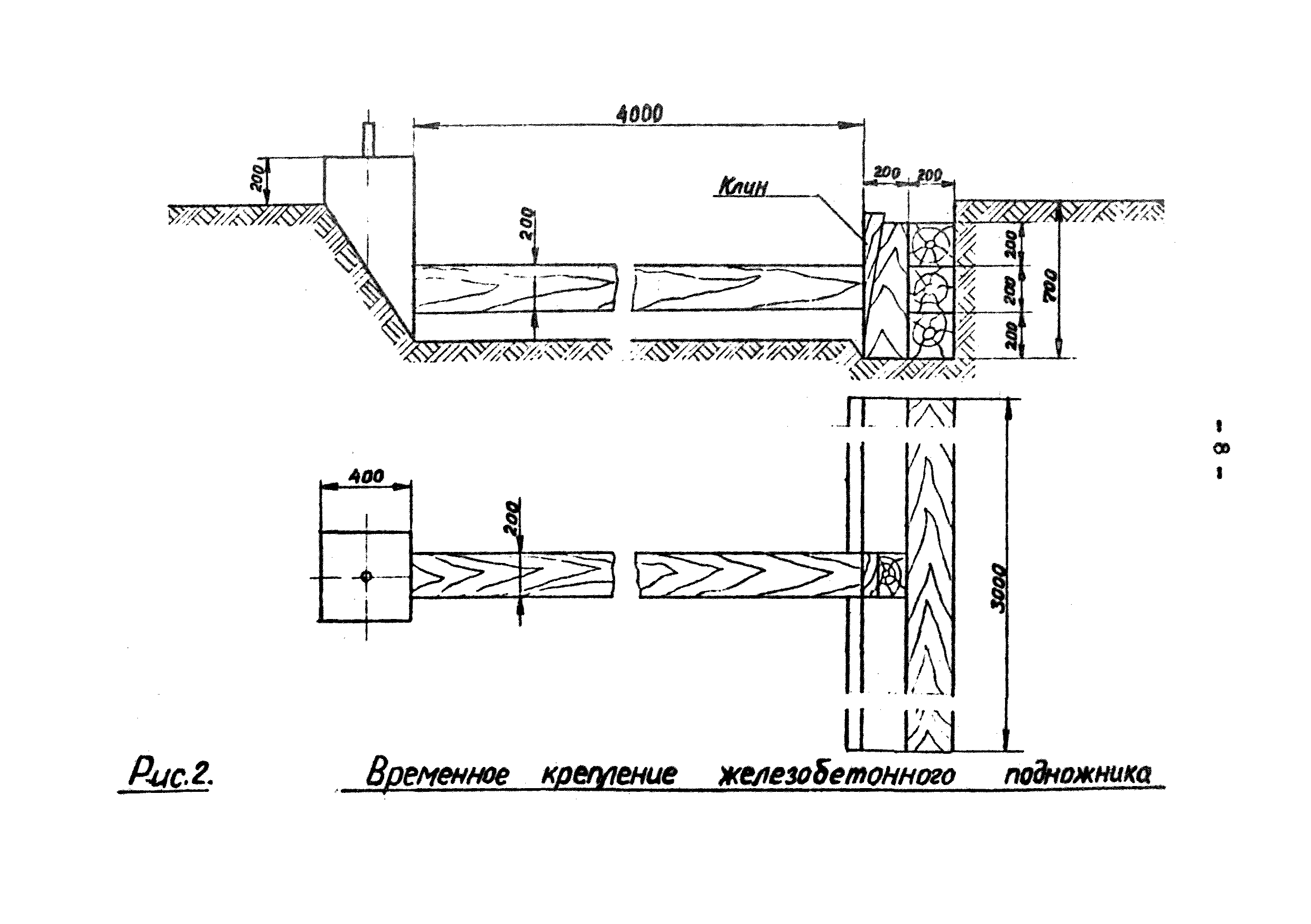
| Область применения: | Карта служит руководством для установки на фундаменты унифицированных стальных промежуточных опор типа П220-1 краном К-162 и тремя тракторами Т-100М |
| Оглавление: | 1 Область применения 2 Технико-экономические показатели на установку одной опоры 3 Материально-технические ресурсы (для одной бригады) Механизмы Приспособления и инструменты Материалы для временного крепления железобетонных подножников |
| Разработан: | Институт Оргэнергострой |
| Утверждён: | Институт Оргэнергострой |
| Издан: | Оргэнергострой (1974 г. ) |
| Расположен в: |



















